Bildegalleri

Privatmegleren Aksept v/ Agathe Nässelqvist har gleden av å presentere Sofies gate 37!
Lys & stor 2-roms | Moderniseringsbehov | Solrik forhage & frodig bakgård | Peis | Sentralt | Ingen dok.avgift
Nøkkelinfo
- Boligtype
- Leilighet
- Eieform
- Andel
- Soverom
- 1
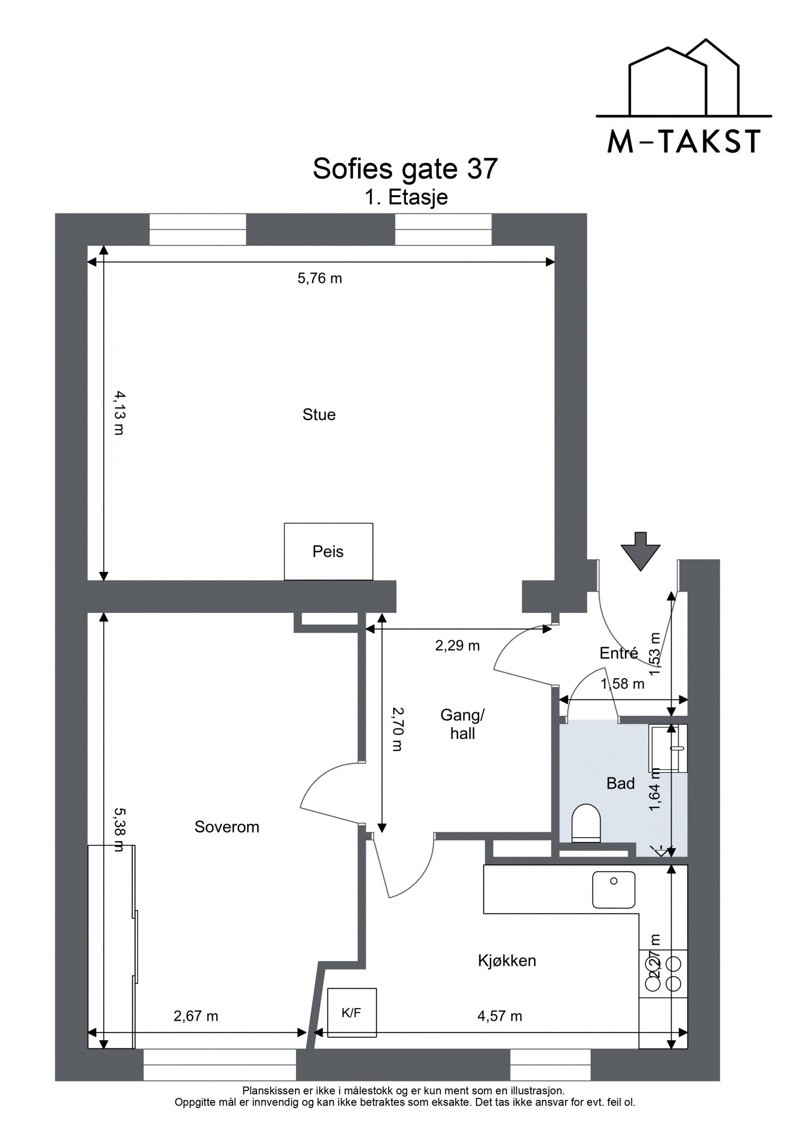
- Internt bruksareal
- 66 m² (BRA-i)
- Bruksareal
- 78 m²
- Eksternt bruksareal
- 12 m² (BRA-e)
- Etasje
- 1
- Byggeår
- 1930
- Energimerking
- G - Oransje
- Rom
- 2
- Tomteareal
- 449 m²
- Boligselgerforsikring
- Ja
Fasiliteter
Om boligen
Velkommen til Sofies gate 37!
Stor og attraktiv 2-roms andelsleilighet i populære Sofies gate i hjertet av St. Hanshaugen / Bislett. Leiligheten er beliggende i en høy 1. etasje som oppleves som 2. etasje. Leiligheten har et fantastisk potensialet der du kan skape din drømmebolig.
Borettslaget har en velholdt, solrik forhage, videre disponerer borettslaget en skjermet og frodig bakgård.
Her bor du i umiddelbar nærhet til "alt" du behøver i hverdagen. Hyggelige kafèer, bakerier og restauranter, samt flotte tur- og rekreasjons muligheter.
F A S I L I T E T E R:
- Peis
- Rikelig med naturlig lys
- Solrik forhage og skjermet bakgård
- Høy 1. etasje som oppleves som 2. etasje
- To kjellerboder under oppføring
- Sentral og attraktiv beliggenhet
- Ingen dokumentavgift
Salgsoppgaven beskriver vesentlig og lovpålagt informasjon om eiendommen
Se komplett salgsoppgaveNyttige lenker
Nærområdet

PrivatMegleren Aksept
Annonseinformasjon
| FINN-kode | 397002095 |
|---|---|
| Sist endret | 21. mars 2025 14:59 |
| Referanse | 92240556 |
Annonsene kan være mangelfulle i forhold til lovpålagt opplysningsplikt. Før bindende avtale inngås oppfordres interessenter til å innhente komplett informasjon fra meglerforetaket, selger eller utleier.

























