Bildegalleri

Nordvik Eiendomsmegling v/Christoffer Kvalshaugen ønsker deg velkommen til Adamsrødveien 55. Foto: Fotograf Magik
Adamsrød/Volden
Tønsberg- Moderne og gjennomført (helt ny) enebolig i rekke med 5 sov. og 2 bad. | Solrikt og barnevennlig | Lav dok.avg
Prisantydning6 750 000 kr
Nøkkelinfo
- Boligtype
- Enebolig
- Eieform
- Selveier
- Soverom
- 5
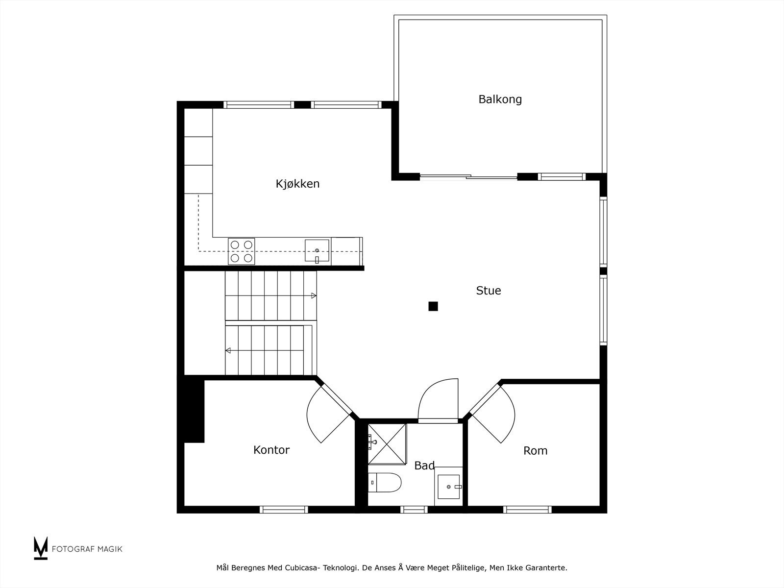
- Internt bruksareal
- 132 m² (BRA-i)
- Bruksareal
- 137 m²
- Eksternt bruksareal
- 5 m² (BRA-e)
- Balkong/Terrasse
- 22 m² (TBA)
- Byggeår
- 2023
- Energimerking
- Rom
- 6
- Tomteareal
- 466 m² (eiet)
Fasiliteter
Balkong/Terrasse
Barnevennlig
Garasje/P-plass
Hage
Kjæledyr tillatt
Offentlig vann/kloakk
Parkett
Rolig
Turterreng
Balansert ventilasjon
Visning
Alle våre visninger har påmelding. På denne måten sikrer vi at megler har god oversikt og tid til å imøtekomme alle interessenter. Meld deg på visning ved å trykke på lenken visningspåmelding.
VisningspåmeldingOm boligen
Nordvik Tønsberg v/ Christoffer Kvalshaugen presenterer Adamsrødveien 55, en råstilig, moderne enebolig i rekke med hele 5 soverom og 2 bad. Høytliggende bolig i solrike og naturskjønne omgivelser med fantastiske turområder rett utenfor døren. Med trygg og kort gangavstand til både skole og idrettsanlegg er dette et barnevennlig sted å bod!
Denne stilrene og tidsriktige boligen gir et smakfullt og tiltalende inntrykk med gode materialvalg. I tillegg til standarden er boligen svært innholdsrik med god planløsning og fine uteområder. Legg spesielt merke til allrommet med sin gode takhøyde, flotte utsyn og sosiale utforming. Gjennomgående god standard med enstavs parkett eller fliser, listefritt og delikate fargevalg. Flytt rett inn!
Velkommen til visning!
Denne stilrene og tidsriktige boligen gir et smakfullt og tiltalende inntrykk med gode materialvalg. I tillegg til standarden er boligen svært innholdsrik med god planløsning og fine uteområder. Legg spesielt merke til allrommet med sin gode takhøyde, flotte utsyn og sosiale utforming. Gjennomgående god standard med enstavs parkett eller fliser, listefritt og delikate fargevalg. Flytt rett inn!
Velkommen til visning!
NB: Knappen for å vise hele beskrivelsen har kun en visuell effekt.
NB: Knappen for å vise hele beskrivelsen har kun en visuell effekt.
Salgsoppgaven beskriver vesentlig og lovpålagt informasjon om eiendommen
Se komplett salgsoppgaveNyttige lenker
Nærområdet
Nordvik Tønsberg
Annonseinformasjon
| FINN-kode | 396940579 |
|---|---|
| Sist endret | 11. apr. 2026 08:27 |
| Referanse | 25-0008/24 |
Annonsene kan være mangelfulle i forhold til lovpålagt opplysningsplikt. Før bindende avtale inngås oppfordres interessenter til å innhente komplett informasjon fra meglerforetaket, selger eller utleier.























































