Bildegalleri

Velkommen til Grøtvedtgata 2!
Solgt
Askim
Sentrumsnær enebolig med fint potensiale - oppussingsbehov - kjøkken fra 2017 - 4 soverom - flat og fin tomt
Prisantydning3 490 000 kr
Nøkkelinfo
- Boligtype
- Enebolig
- Eieform
- Eier (Selveier)
- Soverom
- 4
- Internt bruksareal
- 193 m² (BRA-i)
- Bruksareal
- 193 m²
- Balkong/Terrasse
- 15 m² (TBA)
- Byggeår
- 1949
- Energimerking
- G - Gul
- Tomteareal
- 675 m² (eiet)
Fasiliteter
Balkong/Terrasse
Barnevennlig
Bredbåndstilknytning
Hage
Kabel-TV
Offentlig vann/kloakk
Parkett
Peis/Ildsted
Rolig
Sentralt
Turterreng
Om boligen
Velkommen til Grøtvedtgata 2!
Her har du en fantastisk mulighet til å skape ditt drømmehjem, bare 1 km fra Askim sentrum! Denne flotte eneboligen har oppussingsbehov, men har en praktisk og funksjonell planløsning.
Høydepunkter:
- 4 soverom, bad og wc i 2. etasje.
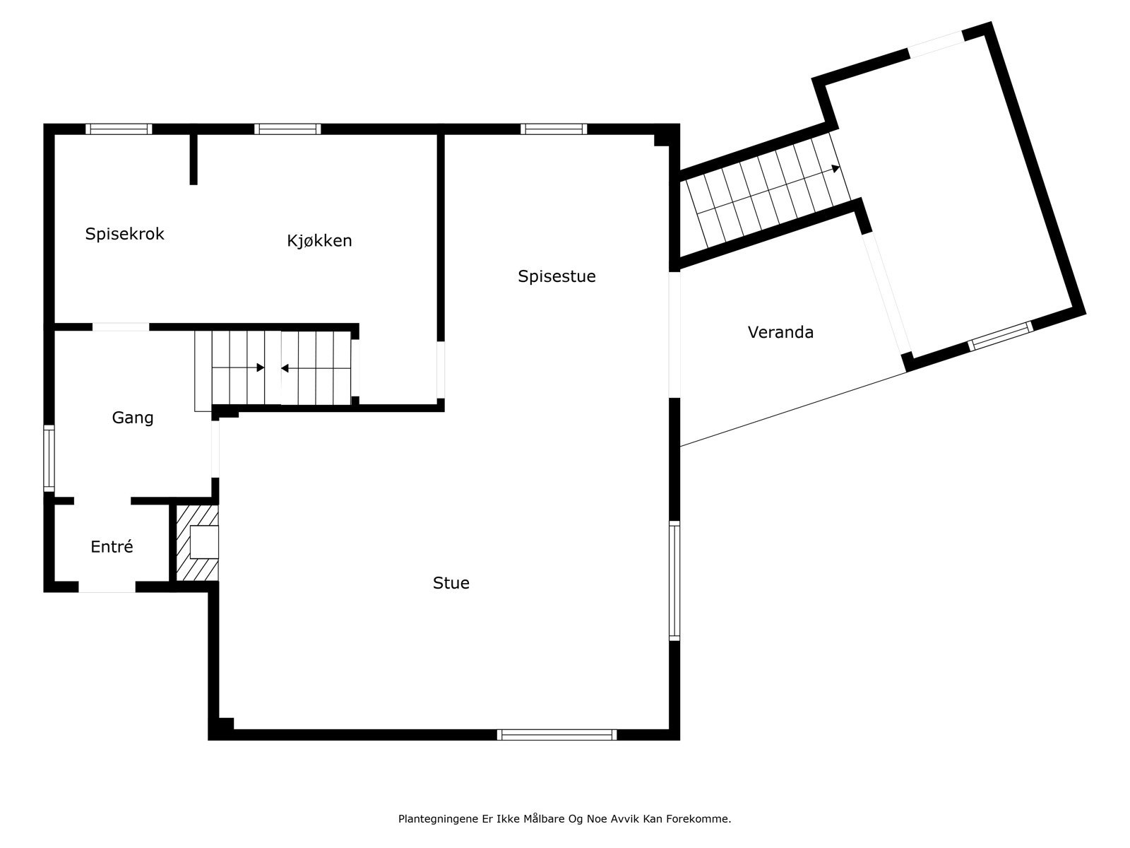
- Moderne kjøkken fra 2017 og en stor, åpen stue løsning med koselig peis i 1. etasje.
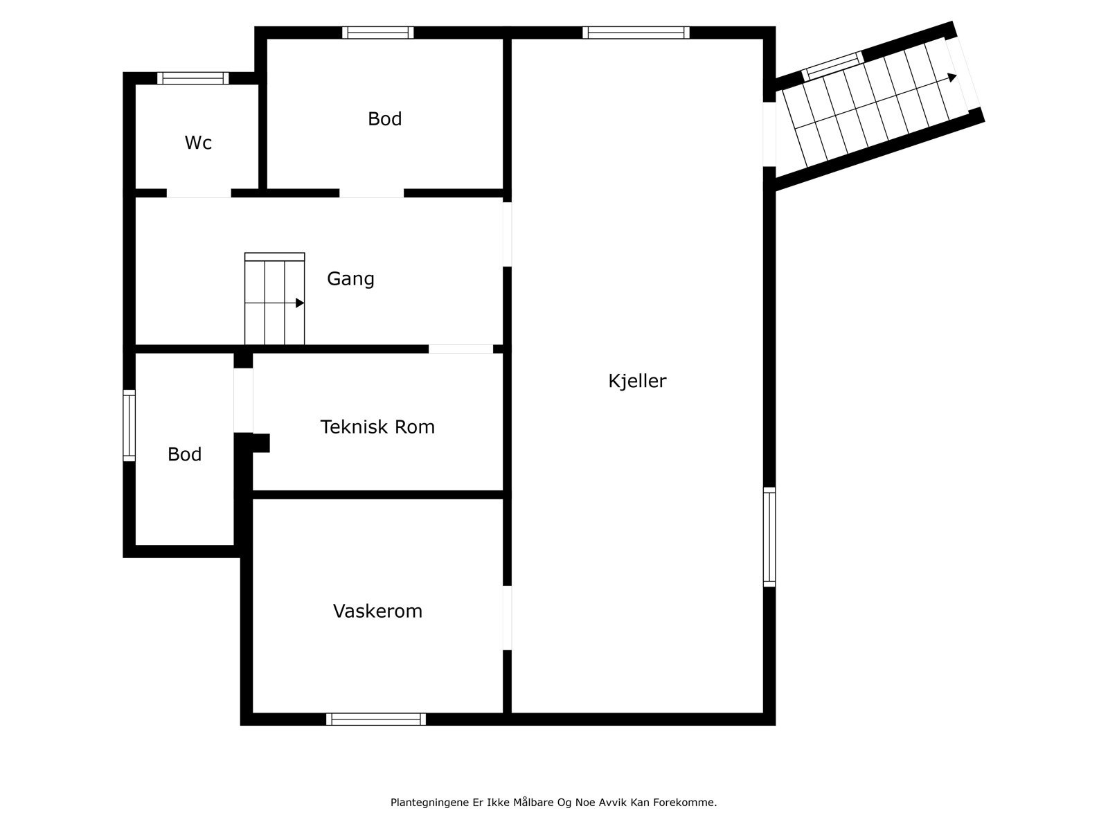
- Kjeller med store lagerrom, wc og mange muligheter.
- Vannbårne radiatorer tilknyttet luft-til-vann-varmepumpe.
Uteområdet er en drøm med en herlig hage, solrik terrasse, singlet gårdsplass og gressplen for lek og moro. Nyt bringebærbuskene og epletrærne i hagen. Tomten gir mange muligheter for ulike utforminger, og beliggenheten er svært sentrumsnær.
Gå ikke glipp av denne sjansen kom og se potensialet i Grøtvedtgata 2 i dag!
Her har du en fantastisk mulighet til å skape ditt drømmehjem, bare 1 km fra Askim sentrum! Denne flotte eneboligen har oppussingsbehov, men har en praktisk og funksjonell planløsning.
Høydepunkter:
- 4 soverom, bad og wc i 2. etasje.
- Moderne kjøkken fra 2017 og en stor, åpen stue løsning med koselig peis i 1. etasje.
- Kjeller med store lagerrom, wc og mange muligheter.
- Vannbårne radiatorer tilknyttet luft-til-vann-varmepumpe.
Uteområdet er en drøm med en herlig hage, solrik terrasse, singlet gårdsplass og gressplen for lek og moro. Nyt bringebærbuskene og epletrærne i hagen. Tomten gir mange muligheter for ulike utforminger, og beliggenheten er svært sentrumsnær.
Gå ikke glipp av denne sjansen kom og se potensialet i Grøtvedtgata 2 i dag!
NB: Knappen for å vise hele beskrivelsen har kun en visuell effekt.
NB: Knappen for å vise hele beskrivelsen har kun en visuell effekt.
Salgsoppgaven beskriver vesentlig og lovpålagt informasjon om eiendommen
Se komplett salgsoppgaveNærområdet
Attentus Eiendomsmegling
Annonseinformasjon
| FINN-kode | 396752281 |
|---|---|
| Sist endret | 24. jan. 2026 14:24 |
| Referanse | ATE1.25113 |
Annonsene kan være mangelfulle i forhold til lovpålagt opplysningsplikt. Før bindende avtale inngås oppfordres interessenter til å innhente komplett informasjon fra meglerforetaket, selger eller utleier.































































