Bildegalleri

- Velkommen til Stovegen 9 -
RYSSTAD | Innholdsrik, lys og trivelig leilighet midt i Rysstad sentrum
Prisantydning2 190 000 kr
Nøkkelinfo
- Boligtype
- Leilighet
- Eieform
- Eier (Selveier)
- Soverom
- 2
- Internt bruksareal
- 106 m² (BRA-i)
- Bruksareal
- 106 m²
- Balkong/Terrasse
- 5 m² (TBA)
- Etasje
- 2
- Byggeår
- 2004
- Rom
- 4
- Tomteareal
- 820 m² (eiet)
Fasiliteter
Balkong/Terrasse
Parkett
Peis/Ildsted
Sentralt
Visning
For å delta på visning, ber vi om at du melder deg på. Da sikrer vi at du får nødvendig informasjon og at det er satt av tilstrekkelig med tid. Kontakt megler dersom annet tidspunkt ønskes. Husk å lese salgsoppgaven før visningen, så du stiller forberedt. NB. Visning utgår dersom det ikke er noen påmeldte.
Ønsker du kun å bli holdt orientert, kan du fra eiendommens hjemmeside få varsel om solgtpris, eller kontakte megler.
VisningspåmeldingOm boligen
- Velkommen til Stovegen 9 -
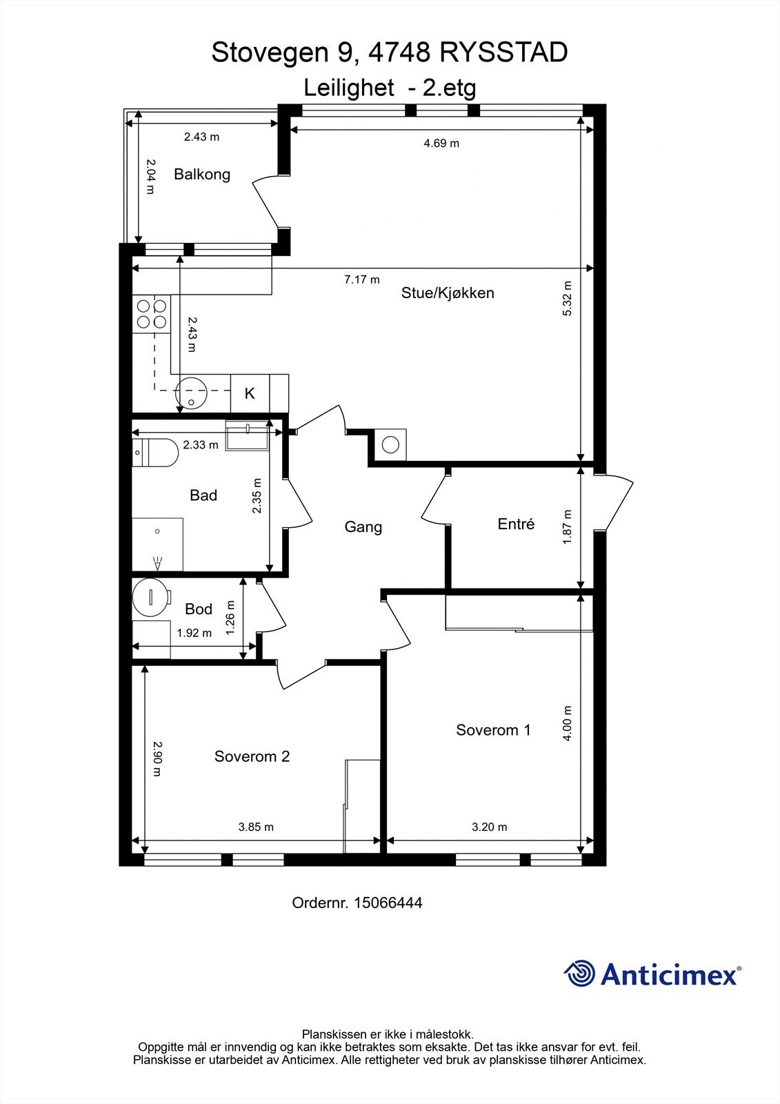
En innholdsrik leilighet midt i sentrum av Rysstad.
Denne ligger fint til i andre etasje av sentrumsbygget rett ved matbutikken og bensinstasjonen.
Lys og trivelig leilighet med god planløsning. Denne strekker seg over to plan og inneholder følgende:
Vindfang, mellomgang, stue, kjøkken, 2 soverom, bad, bod og balkong i første etasje. I andre etasje finner vi ett uinnredet loft.
Leiligheten har et bruksareal på 106 kvm.
En innholdsrik leilighet midt i sentrum av Rysstad.
Denne ligger fint til i andre etasje av sentrumsbygget rett ved matbutikken og bensinstasjonen.
Lys og trivelig leilighet med god planløsning. Denne strekker seg over to plan og inneholder følgende:
Vindfang, mellomgang, stue, kjøkken, 2 soverom, bad, bod og balkong i første etasje. I andre etasje finner vi ett uinnredet loft.
Leiligheten har et bruksareal på 106 kvm.
NB: Knappen for å vise hele beskrivelsen har kun en visuell effekt.
NB: Knappen for å vise hele beskrivelsen har kun en visuell effekt.
Salgsoppgaven beskriver vesentlig og lovpålagt informasjon om eiendommen
Se komplett salgsoppgaveNyttige lenker
Nærområdet
Krogsveen Hovden AS
Velkommen til en enklere boligreise.
Annonseinformasjon
| FINN-kode | 396645510 |
|---|---|
| Sist endret | 06. okt. 2025 09:32 |
| Referanse | KR32.256 |
Annonsene kan være mangelfulle i forhold til lovpålagt opplysningsplikt. Før bindende avtale inngås oppfordres interessenter til å innhente komplett informasjon fra meglerforetaket, selger eller utleier.





























