Bildegalleri

David Novosad v/ EiendomsMegler1 har gleden av å presentere Adolf Øiens veg 3 H.
Attraktivt rekkehus med barnevennlig beliggenhet. 3 soverom. Solrike uteplasser. Garasje. "Alt" inkl. i felleskostnader
Nøkkelinfo
- Boligtype
- Rekkehus
- Eieform
- Andel
- Soverom
- 3
- Internt bruksareal
- 111 m² (BRA-i)
- Bruksareal
- 118 m²
- Eksternt bruksareal
- 7 m² (BRA-e)
- Balkong/Terrasse
- 51 m² (TBA)
- Byggeår
- 1972
- Energimerking
- E - Mørkegrønn
- Rom
- 4
- Tomteareal
- 72 006 m² (eiet)
Fasiliteter
Om boligen
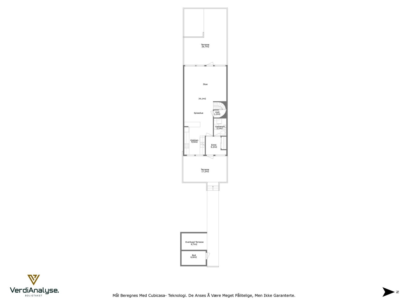
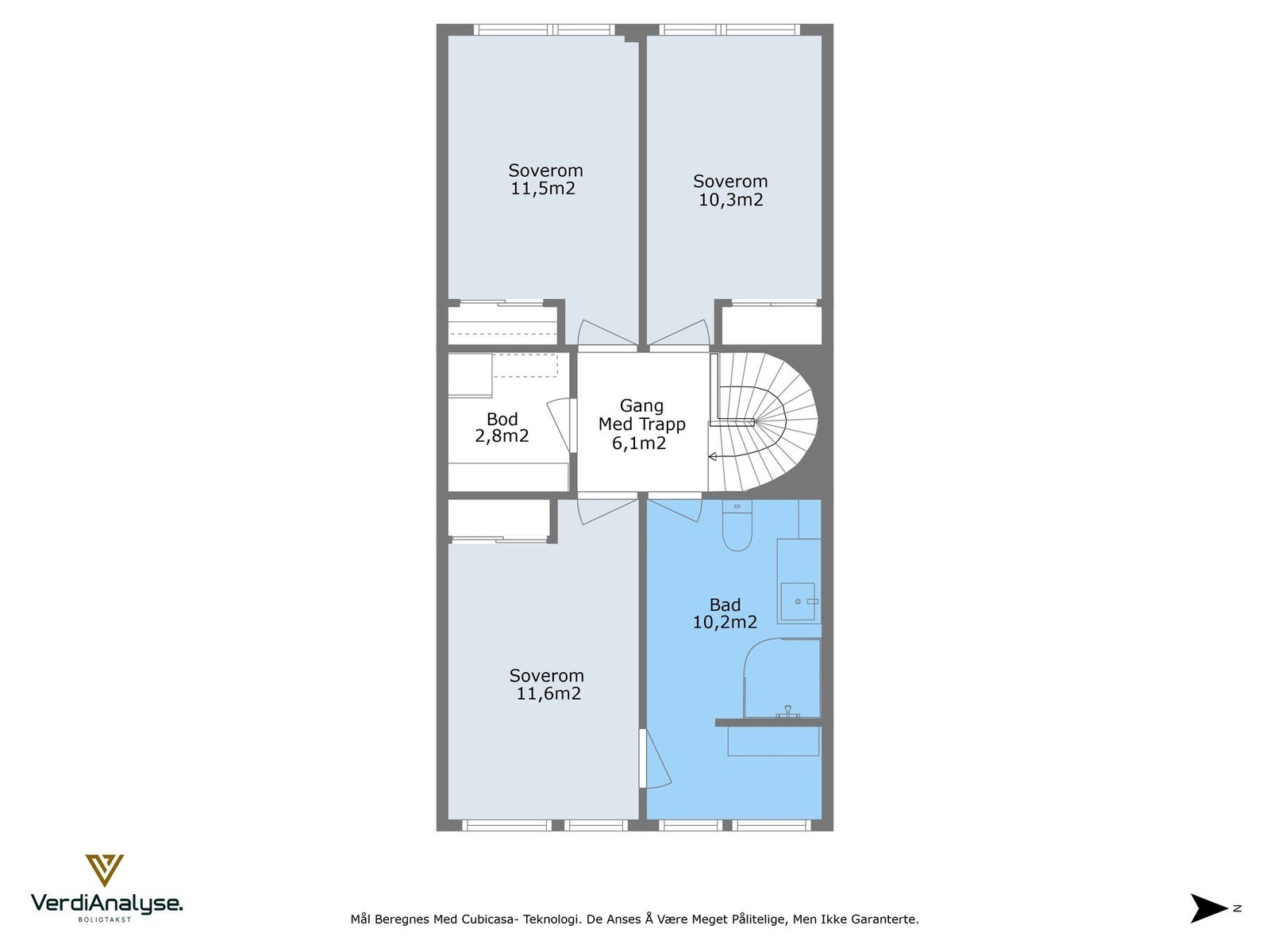
Dette er en innholdsrik, velholdt og delvis oppgradert 4-roms på hele 111m². Barnevennlig beliggenhet på med kort vei til de fleste servicefasiliteter.
Kvaliteter:
- Luftig stue på hele 34m² med flere innredningsmuligheter
- Stilrent kjøkken med mye skap- og benkeplass
- Stort flislagt bad på 10m² samt separat vaskerom
- 3 store soverom på hhv 11.6m², 11,5m² og 10,3m²
- 2 romslige uteplasser med svært gode solforhold
- Oppvarming via fjernvarme
- Rikelig med bodplass
- Fast parkeringsplass med elbillader i felles garasjeanlegg
- "Alt" inkludert i felleskostnadene
- Bilfrie internveier knytter borettslaget sammen og gir trygg skolevei for de minste
Velkommen til en hyggelig visning!
Salgsoppgaven beskriver vesentlig og lovpålagt informasjon om eiendommen
Se komplett salgsoppgaveNyttige lenker
Nærområdet
EiendomsMegler 1 Lerkendal
Prisstatistikk
Adolf Øiens veg 3 H
på annonsen
prisantydning per kvadratmeter
Prisfordeling
Pris per m² ligger 5 683 kr under snittet for rekkehus i Trondheim Øst.
Grafen viser antall rekkehus solgt i Trondheim Øst siste året fordelt på pris per m² - totalt 194 rekkehus
Antall boliger
Kvadratmeterpris tilsvarer prisantydning pluss fellesgjeld per kvadratmeter (p-rom eller BRA-i). Prisene i grafen er avrundet til nærmeste 1000 kr.
Annonseinformasjon
| FINN-kode | 396577709 |
|---|---|
| Sist endret | 20. aug. 2025 11:07 |
| Referanse | 37250057 |
Annonsene kan være mangelfulle i forhold til lovpålagt opplysningsplikt. Før bindende avtale inngås oppfordres interessenter til å innhente komplett informasjon fra meglerforetaket, selger eller utleier.




































