Bildegalleri

Rekkehus over to plan med oppussingsbehov. Meget barnevennlig og nærmest bilfritt boområde.
Prisantydning2 690 000 kr
Nøkkelinfo
- Boligtype
- Rekkehus
- Eieform
- Andel
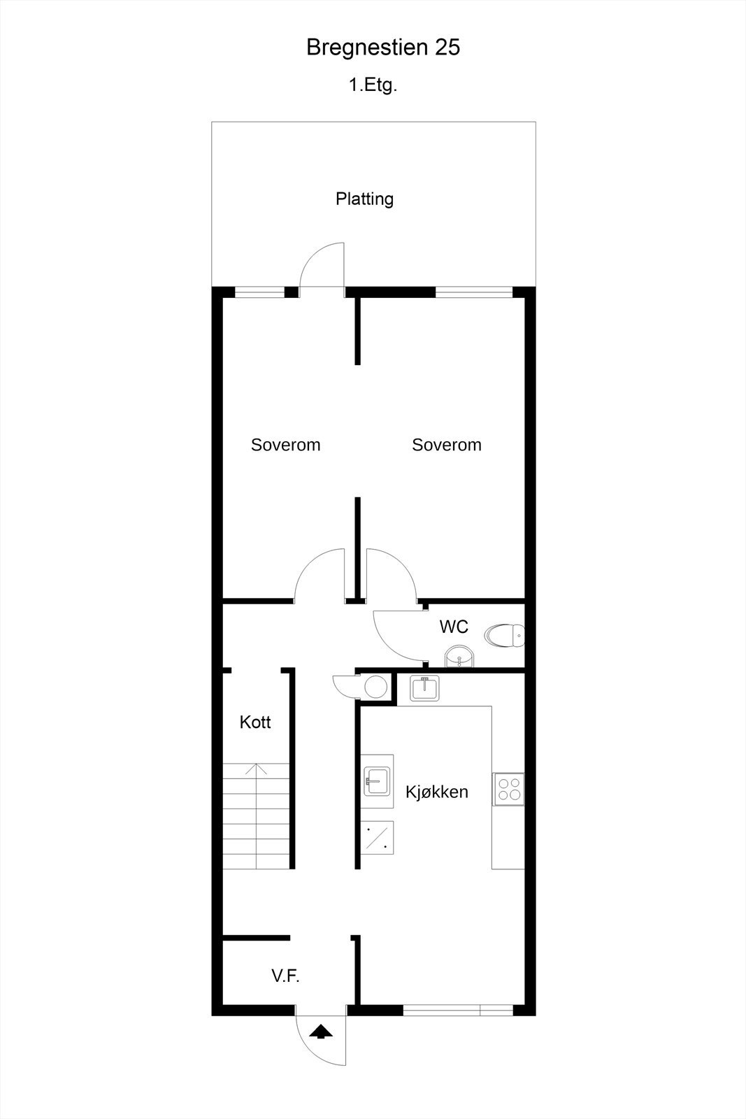
- Soverom
- 3
- Internt bruksareal
- 90 m² (BRA-i)
- Bruksareal
- 96 m²
- Eksternt bruksareal
- 6 m² (BRA-e)
- Balkong/Terrasse
- 13 m² (TBA)
- Etasje
- 2
- Byggeår
- 1976
- Rom
- 4
- Tomteareal
- 43 991 m² (eiet)
Fasiliteter
Balkong/Terrasse
Barnevennlig
Garasje/P-plass
Hage
Peis/Ildsted
Rolig
Om boligen
Bregnestien 25 er et andelsrekkehus med en populær og meget barnevennlig beliggenhet. I umiddelbar nærhet er det store grøntområder, lekeplass, fotballbane, skole, barnehager og idrettshall. Det er også nærhet til nydelig turterreng. Boligen har en skjermet terrasse og hageflekk, mens det er mulig å leie carport eller garasje. Det er p-plass for beboere. Kort gangavstand til bussholdeplass med gode bussforbindelser til Moss sentrum.
Boligen har behov for oppgraderinger.
Boligen har behov for oppgraderinger.
NB: Knappen for å vise hele beskrivelsen har kun en visuell effekt.
NB: Knappen for å vise hele beskrivelsen har kun en visuell effekt.
Salgsoppgaven beskriver vesentlig og lovpålagt informasjon om eiendommen
Se komplett salgsoppgaveNyttige lenker
Nærområdet
GARANTI Eiendomsmegling Moss
Annonseinformasjon
| FINN-kode | 396436224 |
|---|---|
| Sist endret | 04. mars 2026 12:43 |
| Referanse | GAR69.258 |
Annonsene kan være mangelfulle i forhold til lovpålagt opplysningsplikt. Før bindende avtale inngås oppfordres interessenter til å innhente komplett informasjon fra meglerforetaket, selger eller utleier.



































