Bildegalleri

Delikat og moderne 2-roms med heis, balkong og flott beliggenhet på Majorstuen
Solgt
Majorstuen/Nye Major
Delikat og moderne 2-roms m/balkong og heis - Bygg fra 2008 - Ingen dok.avgift - Varmtvann inkl.
Prisantydning3 500 000 kr
Nøkkelinfo
- Boligtype
- Leilighet
- Eieform
- Andel
- Soverom
- 1
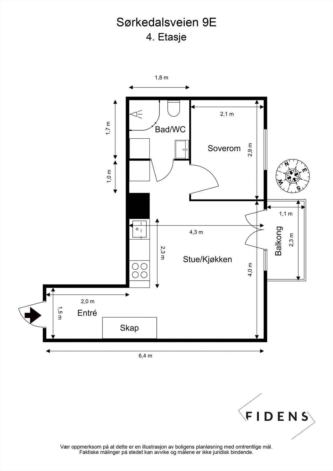
- Internt bruksareal
- 34 m² (BRA-i)
- Bruksareal
- 39 m²
- Eksternt bruksareal
- 5 m² (BRA-e)
- Balkong/Terrasse
- 2 m² (TBA)
- Etasje
- 4
- Byggeår
- 2008
- Energimerking
- C - Rød
- Rom
- 2
- Tomteareal
- 2 862 m² (eiet)
Fasiliteter
Balkong/Terrasse
Bredbåndstilknytning
Garasje/P-plass
Heis
Kabel-TV
Parkett
Sentralt
Om boligen
Delikat og moderne 2r m/etterspurt beliggenhet i Nye Major på Majorstuen. Leiligheten ligger høyt og fritt i byggets 4. etg m/heis og hyggelig balkong. Balkongen er sørøstvendt - perfekt for late sommerdager! Moderne bygg fra 2008 m/flotte fasiliteter som treningssenter og garasjeanlegg i kjelleren. Colosseum senter ligger rett over veien med en av byens beste matbutikker og Vinmonopol. Kort gange til Frognerparken, Bogstadveien og t-banen.
Meget god planløsning; åpen stue- og kjøkkenløsning med plass til sofagruppe og spisebord. Gang med stor garderobe. Romslig bad med opplegg for vaskemaskin. Soverom med plass til dobbeltseng og garderobe. Balkong. Kjellerbod.
Praktisk info/høydepunkter:
Flott 2r
In-ordning
Moderne bygg
Heis og balkong
Ingen dok.avgift
Tidvis mulig å leie/kjøpe garasje
Meget god planløsning; åpen stue- og kjøkkenløsning med plass til sofagruppe og spisebord. Gang med stor garderobe. Romslig bad med opplegg for vaskemaskin. Soverom med plass til dobbeltseng og garderobe. Balkong. Kjellerbod.
Praktisk info/høydepunkter:
Flott 2r
In-ordning
Moderne bygg
Heis og balkong
Ingen dok.avgift
Tidvis mulig å leie/kjøpe garasje
NB: Knappen for å vise hele beskrivelsen har kun en visuell effekt.
NB: Knappen for å vise hele beskrivelsen har kun en visuell effekt.
Salgsoppgaven beskriver vesentlig og lovpålagt informasjon om eiendommen
Se komplett salgsoppgaveNyttige lenker
Nærområdet
Nordvik Majorstuen
Annonseinformasjon
| FINN-kode | 396420783 |
|---|---|
| Sist endret | 27. mars 2025 11:19 |
| Referanse | 8-0018/25 |
Annonsene kan være mangelfulle i forhold til lovpålagt opplysningsplikt. Før bindende avtale inngås oppfordres interessenter til å innhente komplett informasjon fra meglerforetaket, selger eller utleier.





























