Bildegalleri

Notar v/Carolina Toro har gleden av å presentere Sandakerveien 48D - En flott leil. med herlig balkong. NB! Hovedinngang til Sandakerveien 48D er i bakgården med inngang fra Bentsebrugata

Solgt
Idyllisk på Øvre Grünerløkka/Torshov

Innbydende, lys og romslig eierleilighet med solrik balkong - Attraktiv og rolig beliggenhet - P.plass* Må ses!

Prisantydning4 320 000 kr
Totalpris
4 495 710 kr
Omkostninger
110 710 kr
Fellesgjeld
65 000 kr
Felleskost/mnd.
2 979 kr
Fellesformue
19 139 kr
Formuesverdi
1 184 068 kr

Nøkkelinfo

Boligtype
Leilighet
Eieform
Eier (Selveier)
Soverom
0
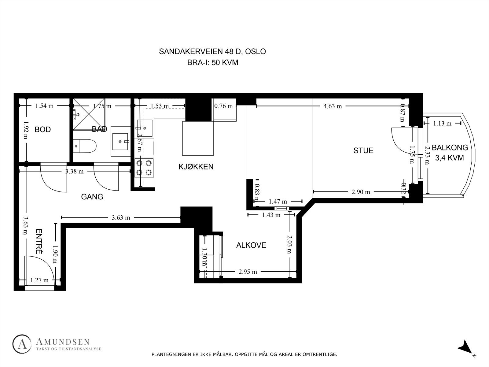
Internt bruksareal
50 m² (BRA-i)
Bruksareal
50 m²
Balkong/Terrasse
3 m² (TBA)
Etasje
2
Byggeår
1947
Energimerking
F - Rød
Rom
2
Tomteareal
856 m² (eiet)

Les mer om bruksareal her

Fasiliteter

Balkong/Terrasse
Bredbåndstilknytning
Fellesvaskeri
Garasje/P-plass
Kjæledyr tillatt
Ingen gjenboere
Offentlig vann/kloakk
Rolig
Sentralt
Vaktmester-/vektertjeneste
Turterreng

Om boligen

Carolina v/Notar har gleden av å presentere Sandakerveien 48 D - En meget pent oppusset, romslig og arealeffektiv 1-r på populære Torshov. Leiligheten har en optimal planløsning i byggets 2. etg. og vender mot indregård. Store vindusflater og balkongdører slipper inn godt m/dagslys og skaper en fin atmosfære.

Leiligheten er innflytningsklar og inneholder entré, stue, kjøkken, stor alkove m/garderobe, bad og nordvestvendt balkong med hyggelig utsikt.

Kort om boligen:

- Lave felleskostn.
- Nymalt 2025
- Balkongdør 2024
- Kjøkkenfronter 2021
- Bad 2004
- Praktisk innvendig bod på 3m²
- Felles sykkelrom/vaskeri
- Gode kollektivforbindelser
- Parkeringsleie i bakgården*

Et perfekt førstegangskjøp, pendlerleilighet eller utleieobjekt med super beliggenhet og med nærhet til "alt"!

Salgsoppgaven beskriver vesentlig og lovpålagt informasjon om eiendommen

Se komplett salgsoppgave

Nærområdet

Prisstatistikk

Sandakerveien 48D

18 852 klikk

på annonsen

87 700 kr

prisantydning per kvadratmeter

Prisfordeling

Pris per m² ligger 22 300 kr under snittet for leiligheter i Sagene - Torshov.

Grafen viser antall leiligheter solgt i Sagene - Torshov siste året fordelt på pris per m² - totalt 2 432 leiligheter

Antall boliger

020406080100120
Histogram som viser prisfordeling for boliger i Sagene - TorshovDenne boligen koster 88000 kr per kvadratmeter, mens gjennomsnittet er 110000 kr per kvadratmeter53 00091 000130 000170 000210 000Pris per m² i krDenne boligen88 000 krGjennomsnitt110 000 kr

Kvadratmeterpris tilsvarer prisantydning pluss fellesgjeld per kvadratmeter (p-rom eller BRA-i). Prisene i grafen er avrundet til nærmeste 1000 kr.

Eiendommer solgt i samme område

I løpet av de siste 12 månedene

Bilde av kartet på finn.no

Annonseinformasjon

FINN-kode396287773
Sist endret07. juli 2025 12:24
ReferanseNO17.2520

Rapporter annonse

Annonsene kan være mangelfulle i forhold til lovpålagt opplysningsplikt. Før bindende avtale inngås oppfordres interessenter til å innhente komplett informasjon fra meglerforetaket, selger eller utleier.