Bildegalleri

Svært romslig familiebolig i enden av blindvei. Gjerpen skolekrets. Sol så lenge du orker...
Skien - Langårdsfeltet
Meget romslig familiebolig med dobbel garasje. Muligheter for utleiedel. Innerst i blindvei. Solrikt og stille.
Prisantydning5 800 000 kr
Nøkkelinfo
- Boligtype
- Enebolig
- Eieform
- Eier (Selveier)
- Soverom
- 5
- Internt bruksareal
- 262 m² (BRA-i)
- Bruksareal
- 262 m²
- Balkong/Terrasse
- 38 m² (TBA)
- Byggeår
- 2012
- Energimerking
- C - Oransje
- Tomteareal
- 784 m² (eiet)
Fasiliteter
Balkong/Terrasse
Barnevennlig
Bredbåndstilknytning
Garasje/P-plass
Hage
Kjæledyr tillatt
Kabel-TV
Offentlig vann/kloakk
Parkett
Peis/Ildsted
Rolig
Sentralt
Utsikt
Utvidelsesmuligheter
Turterreng
Lademulighet
Om boligen
Flott og innholdsrik enebolig med god planløsning og praktisk romfordeling over tre etasjer. Boligen har et moderne og tidløst uttrykk, samt rikelig med vindusflater som skaper lyse og fine rom.
Her bor man i landlige omgivelser på Langårdsfeltet, men samtidig svært sentralt med kort vei til Gjerpen barne- og ungdomsskole.
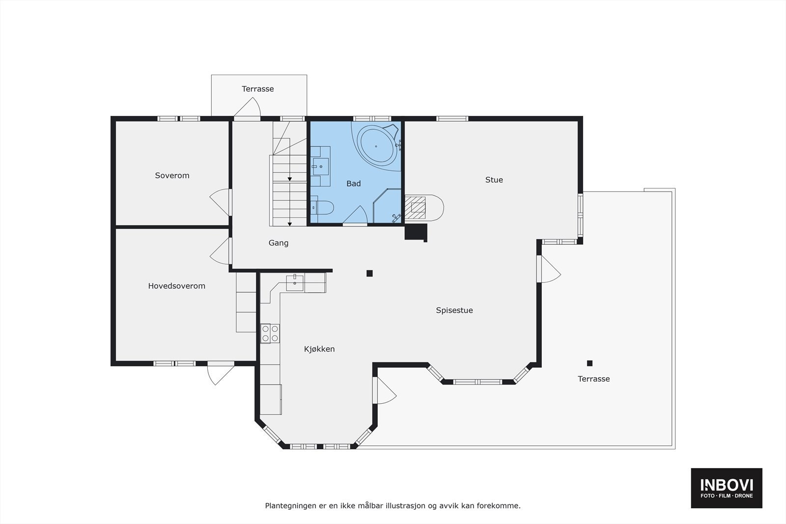
Innhold i underetasjen: hall, 3 soverom, vaskerom, bad og stue, samt dobbeltgarasje. Hovedetasjen: kjøkken/stue, 2 soverom, gang/trapperom og bad. Loftetasjen: loftstue og arbeidsrom.
Tomten på 784,30 m² er pent opparbeidet med plen, belegningsstein og asfaltert gårdsplass. Stor terrasse ut fra stuen med fantastisk utsikt og god plass til utemøblement. Fra hovedsoverommet er det utgang til overbygd balkong.
Det er kort vei til barnehager, dagligvareforretninger mm.
Her bor man i landlige omgivelser på Langårdsfeltet, men samtidig svært sentralt med kort vei til Gjerpen barne- og ungdomsskole.
Innhold i underetasjen: hall, 3 soverom, vaskerom, bad og stue, samt dobbeltgarasje. Hovedetasjen: kjøkken/stue, 2 soverom, gang/trapperom og bad. Loftetasjen: loftstue og arbeidsrom.
Tomten på 784,30 m² er pent opparbeidet med plen, belegningsstein og asfaltert gårdsplass. Stor terrasse ut fra stuen med fantastisk utsikt og god plass til utemøblement. Fra hovedsoverommet er det utgang til overbygd balkong.
Det er kort vei til barnehager, dagligvareforretninger mm.
NB: Knappen for å vise hele beskrivelsen har kun en visuell effekt.
NB: Knappen for å vise hele beskrivelsen har kun en visuell effekt.
Salgsoppgaven beskriver vesentlig og lovpålagt informasjon om eiendommen
Se komplett salgsoppgaveNyttige lenker
Nærområdet
EiendomsMegler 1 Skien
et foretak i SpareBank 1 Sør-Norge konsernet
Annonseinformasjon
| FINN-kode | 396284533 |
|---|---|
| Sist endret | 13. jan. 2026 09:34 |
| Referanse | 1410250006 |
Annonsene kan være mangelfulle i forhold til lovpålagt opplysningsplikt. Før bindende avtale inngås oppfordres interessenter til å innhente komplett informasjon fra meglerforetaket, selger eller utleier.















































