Bildegalleri

Borgundvegen 289A presenteres av Krogsveen v/eiendomsmegler Robert T. Iversen

Solgt
FAGERLIA

BUD MOTTATT!3-roms toppleilighet med innglasset balkong på 11m² | Sentral beliggenhet | Parkeringsmulighet

Prisantydning1 990 000 kr
Totalpris
2 578 040 kr
Omkostninger
11 040 kr
Fellesgjeld
577 000 kr
Felleskost/mnd.
7 055 kr
Fellesformue
18 190 kr
Formuesverdi
626 393 kr

Nøkkelinfo

Boligtype
Leilighet
Eieform
Andel
Soverom
2
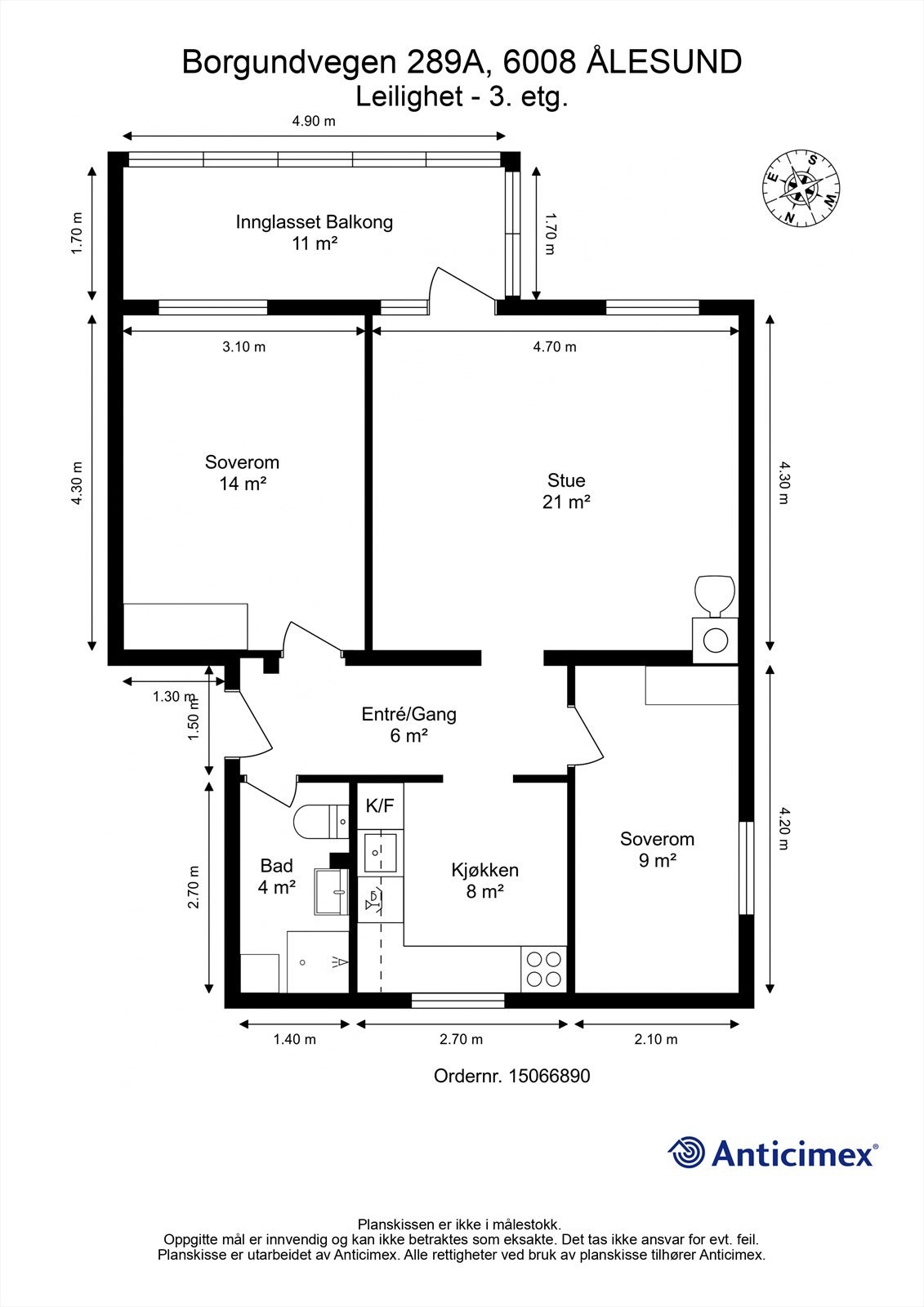
Internt bruksareal
65 m² (BRA-i)
Bruksareal
82 m²
Eksternt bruksareal
6 m² (BRA-e)
Innglasset balkong
11 m² (BRA-b)
Etasje
3
Byggeår
1956
Energimerking
G - Rød
Rom
3
Tomteareal
1 592 m² (eiet)

Les mer om bruksareal her

Fasiliteter

Balkong/Terrasse
Barnevennlig
Bredbåndstilknytning
Garasje/P-plass
Kjæledyr tillatt
Kabel-TV
Offentlig vann/kloakk
Peis/Ildsted
Sentralt
Utsikt
Turterreng

Om boligen

I toppeetasjen av Borgundvegen 289A får du flott utsikt mot Sunnmørsalpane, sjøen og Sulafjellet. Utsikten kan nytes både fra stue og den innglassede balkongen.

Innvendig holder leiligheten en trivelig standard, og er inndelt med entré/gang, stue, kjøkken, bad og 2 soverom. I tillegg disponerer leiligheten 3 boder og parkeringsmulighet på borettslagets tomt. Leiligheten er gjennomgående, noe som gir godt med naturlig lysinnslipp.
I 2015 ble en omfattende fasaderehabilitering sluttført, hvor bla. yttervegger ble etterisolert, oppgradering av avtrekksystem, utskiftning av vindu og dører m.m.

Nærområdet tilfredsstiller "alle" hverdagslige behov, med kort veg til turområder, dagligvarebutikker, treningssenter, NTNU, NMK m.m. Og kun en liten kjøretur til både Moa og bysentrum.

Salgsoppgaven beskriver vesentlig og lovpålagt informasjon om eiendommen

Se komplett salgsoppgave

Nærområdet

Annonseinformasjon

FINN-kode396151966
Sist endret05. mai 2025 16:54
ReferanseKR76.2523

Rapporter annonse

Annonsene kan være mangelfulle i forhold til lovpålagt opplysningsplikt. Før bindende avtale inngås oppfordres interessenter til å innhente komplett informasjon fra meglerforetaket, selger eller utleier.