Bildegalleri

Velkommen til Sandakerveien 67F.
Solgt
Øvre Torshov
Lys og innbydende 2-roms med balkong. Helt uten innsyn. Fyring, V.Vann & internett. Ingen dok.avg. el. forkjøpsrett
Prisantydning3 900 000 kr
Nøkkelinfo
- Boligtype
- Leilighet
- Eieform
- Aksje
- Soverom
- 1
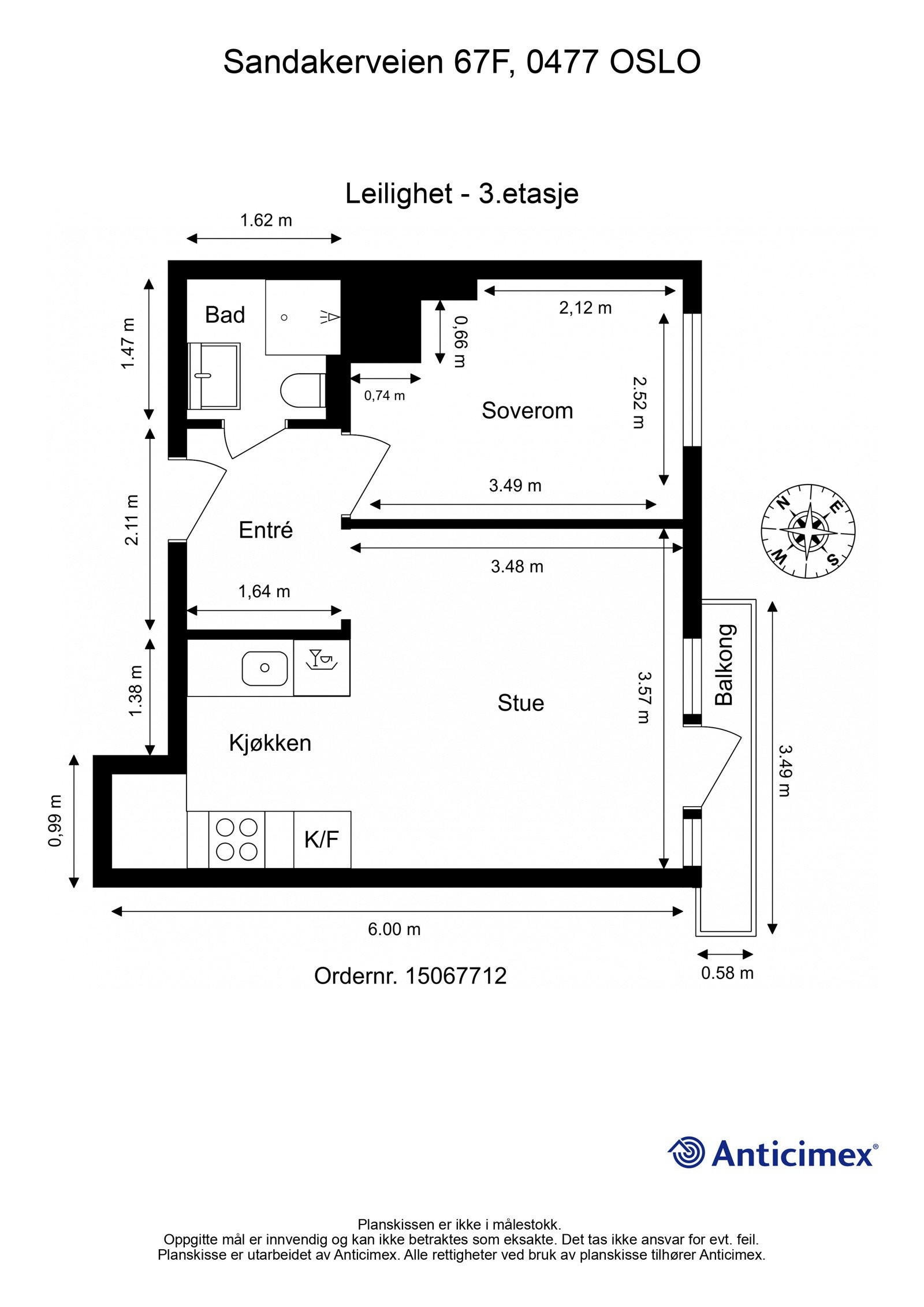
- Internt bruksareal
- 33 m² (BRA-i)
- Bruksareal
- 39 m²
- Eksternt bruksareal
- 4 m² (BRA-e)
- Balkong/Terrasse
- 2 m² (TBA)
- Etasje
- 3
- Byggeår
- 1939
- Energimerking
- G - Mørkegrønn
- Rom
- 2
- Tomteareal
- 4 203 m² (festet)
- Festeår
- 2068
- Festeavgift
- 164 860 kr
Fasiliteter
Balkong/Terrasse
Heis
Ingen gjenboere
Barnevennlig
Rolig
Kabel-TV
Moderne
Sentralt
Garasje/P-plass
Offentlig vann/kloakk
Utsikt
Vaktmester-/vektertjeneste
Bredbåndstilknytning
Lademulighet
Om boligen
Innbydende 2-roms med sentralt og attraktivt beliggende øverst på Torshov. Leiligheten ligger høyt og fritt i 3. etasje med utgang fra stue til solrik balkong. Her får du en fin og fri utsikt og mye dagslys! Boligen er oppgradert med blant annet nytt kjøkken i 2015, 1-stavs gulv og malte overflater i freshe farger. Bad/WC renovert i regi av boligselskapet i 2003, og ytterligere oppgradert med ny baderomsinnredning i 2020.
- Åpen stue og kjøkkenløsning
- Solrik balkong med fin utsikt
- Fyring, varmtvann & internett inkl.
- Oppvaskmaskin og vaskemaskin
- Veldrevet boligselskap med god vedlikeholdshistorikk
- Lave bokostnader med varmtvann og fyring inkl.
- Eget rom med plass til dobbeltseng
- P-plass til leie etter venteliste
- Offentlig kommunikasjon og et komplett servicetilbud i umiddelbar nærhet
- To eksterne boder
NB: Knappen for å vise hele beskrivelsen har kun en visuell effekt.
NB: Knappen for å vise hele beskrivelsen har kun en visuell effekt.
Salgsoppgaven beskriver vesentlig og lovpålagt informasjon om eiendommen
Se komplett salgsoppgaveNærområdet
EIE eiendomsmegling Majorstuen & St. Hanshaugen
Annonseinformasjon
| FINN-kode | 396058464 |
|---|---|
| Sist endret | 15. mars 2025 11:44 |
| Referanse | 125250172 |
Annonsene kan være mangelfulle i forhold til lovpålagt opplysningsplikt. Før bindende avtale inngås oppfordres interessenter til å innhente komplett informasjon fra meglerforetaket, selger eller utleier.




































