Bildegalleri

Nordvik v/Moestue har gleden av å presentere en lys og hyggelig 3-roms selveierleilighet over to plan med sentral og attraktiv beliggenhet på Enerhaugen/Tøyen. Husk visningspåmelding!
Solgt
ENERHAUGEN / TØYEN
Lekker og klassisk 3-roms over 2 plan - Takhøyde 3,14 m - Bad 2021 - Kjøkken oppgradert 2024/25 - Rosett og stukkatur!
Prisantydning4 750 000 kr
Nøkkelinfo
- Boligtype
- Leilighet
- Eieform
- Eier (Selveier)
- Soverom
- 2
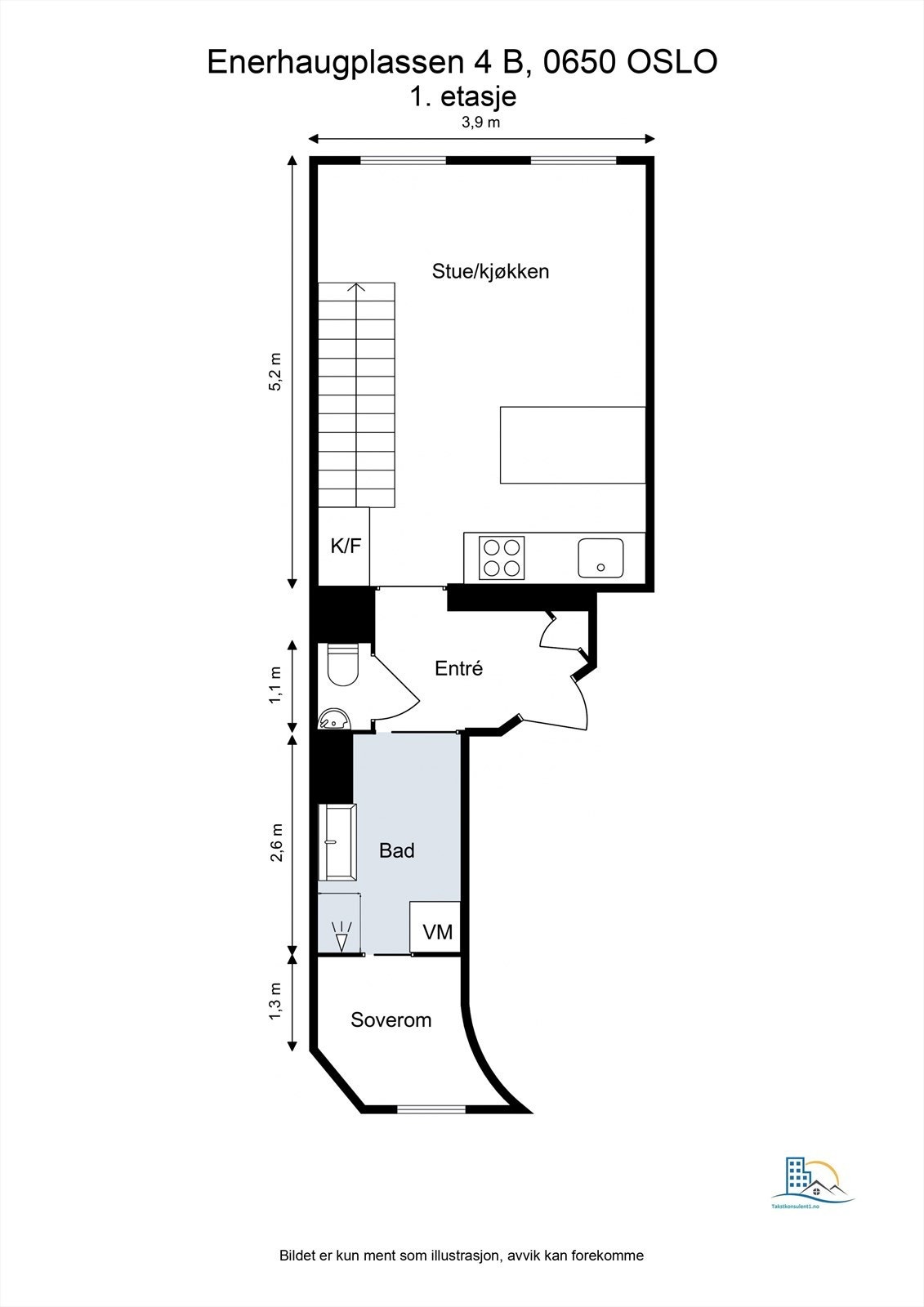
- Internt bruksareal
- 56 m² (BRA-i)
- Bruksareal
- 64 m²
- Eksternt bruksareal
- 8 m² (BRA-e)
- Etasje
- 1
- Byggeår
- 1896
- Energimerking
- G - Rød
- Rom
- 3
- Tomteareal
- 733 m² (eiet)
Fasiliteter
Barnevennlig
Bredbåndstilknytning
Kjæledyr tillatt
Offentlig vann/kloakk
Parkett
Peis/Ildsted
Rolig
Sentralt
Om boligen
Velkommen til en lys og hyggelig 3-roms selveierleilighet over to plan med sentral og attraktiv beliggenhet på Enerhaugen/Tøyen. Leiligheten har en arealeffektiv planløsning og holder god standard. Perfekt leilighet for deg som ønsker et bredt utvalg av kollektivmuligheter, matbutikker, treningssenter, spisesteder i et rolig nabolag!
- Klassisk bygård fra 1896
- Generøs takhøyde på ca. 3,14 meter
- Rosett og stukkatur
- Varmtvann og internett ink.
- Flislagt baderom og toalettrom fra 2021
- Kjøkken oppgradert 2024/2025
- Vinduer i kjeller fra 2020
- Peis i kjeller, piperørfornyelse 2023
- En-stavs parkett
- Smarte oppbevaringsløsninger
- Godt med lagringsplass i loft- og kjellerbod
Boligen er vesentlig oppgradert de siste årene. Se liste over oppgraderinger i salgsoppgaven.
- Klassisk bygård fra 1896
- Generøs takhøyde på ca. 3,14 meter
- Rosett og stukkatur
- Varmtvann og internett ink.
- Flislagt baderom og toalettrom fra 2021
- Kjøkken oppgradert 2024/2025
- Vinduer i kjeller fra 2020
- Peis i kjeller, piperørfornyelse 2023
- En-stavs parkett
- Smarte oppbevaringsløsninger
- Godt med lagringsplass i loft- og kjellerbod
Boligen er vesentlig oppgradert de siste årene. Se liste over oppgraderinger i salgsoppgaven.
NB: Knappen for å vise hele beskrivelsen har kun en visuell effekt.
NB: Knappen for å vise hele beskrivelsen har kun en visuell effekt.
Salgsoppgaven beskriver vesentlig og lovpålagt informasjon om eiendommen
Se komplett salgsoppgaveNyttige lenker
Nærområdet
Nordvik Bislett
Annonseinformasjon
| FINN-kode | 395791776 |
|---|---|
| Sist endret | 23. mai 2025 11:05 |
| Referanse | 36-0106/25 |
Annonsene kan være mangelfulle i forhold til lovpålagt opplysningsplikt. Før bindende avtale inngås oppfordres interessenter til å innhente komplett informasjon fra meglerforetaket, selger eller utleier.









































