Bildegalleri

Velkommen til Trondheimsveien 77! Her får dere et lyst og innbydende hjem dere kan flytte rett inn i, eller ved enkle grep skape deres nye drømmehjem! Vi ses på visning!
Bolig solgt! Visning avlyst. Kontakt megler for spørsmål.
Nøkkelinfo
- Boligtype
- Leilighet
- Eieform
- Andel
- Soverom
- 1
- Internt bruksareal
- 49 m² (BRA-i)
- Bruksareal
- 58 m²
- Eksternt bruksareal
- 5 m² (BRA-e)
- Innglasset balkong
- 4 m² (BRA-b)
- Etasje
- 2
- Byggeår
- 1940
- Energimerking
- F - Mørkegrønn
- Rom
- 2
- Tomteareal
- 10 210 m² (eiet)
Fasiliteter
Om boligen
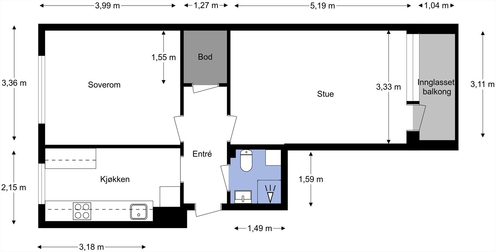
Her får dere en lys, gjennomgående leilighet med god standard og sentral beliggenhet.
De varme dagene kan nytes på den herlige balkongen eller i den fantastiske bakgården!
Her kan dere flytte rett inn!
Gjennomgående 2-roms beliggende i 2. etg:
- Gjennomtenkt og godt utnyttet planløsning - kan gjøres om til 3-roms
- Utgang fra stue til vestvendt balkong
- Store vinduer mot to himmelretninger sikrer rikelig med lys
- Separat kjøkken fra 2015 med spiseplass
- Stort soverom med garderobe
- Bad pusset opp i regi av borettslaget med plass til vaskemaskin
- Varmtvann, fyring, internett og TV inkl.
- Loft- og kjellerbod
- Gangavstand til absolutt alt!
Borettslaget er kjent for sin idylliske bakgård, sosiale facebookgruppe og gode naboskap - velkommen!
Salgsoppgaven beskriver vesentlig og lovpålagt informasjon om eiendommen
Se komplett salgsoppgaveNærområdet
Aktiv Carl Berner
Prisstatistikk
Trondheimsveien 77
på annonsen
prisantydning per kvadratmeter
Prisfordeling
Pris per m² ligger 6 041 kr under snittet for leiligheter i Grünerløkka - Sofienberg.
Grafen viser antall leiligheter solgt i Grünerløkka - Sofienberg siste året fordelt på pris per m² - totalt 2 423 leiligheter
Antall boliger
Kvadratmeterpris tilsvarer prisantydning pluss fellesgjeld per kvadratmeter (p-rom eller BRA-i). Prisene i grafen er avrundet til nærmeste 1000 kr.
Lignende boliger til salgs


Garasjeplass på Grünerløkka/Rodeløkka | Lukket annlegg | Oppvarmet | Elbil-lader






Annonseinformasjon
| FINN-kode | 395726246 |
|---|---|
| Sist endret | 15. juli 2025 20:10 |
| Referanse | 1006250020 |
Annonsene kan være mangelfulle i forhold til lovpålagt opplysningsplikt. Før bindende avtale inngås oppfordres interessenter til å innhente komplett informasjon fra meglerforetaket, selger eller utleier.











































