Bildegalleri

Velkommen til Karenslyst allé 44, presentert av Nicolay Ulvin og Emma Uhrberg ved EIE eiendomsmegling!
Solgt
Skøyen / Sjølyst
Lys & moderne 2- roms leilighet med solrik balkong | Garasje m/elbillader | Felles takterrasse | Attraktiv beliggenhet
Prisantydning6 400 000 kr
Nøkkelinfo
- Boligtype
- Leilighet
- Eieform
- Andel
- Soverom
- 1
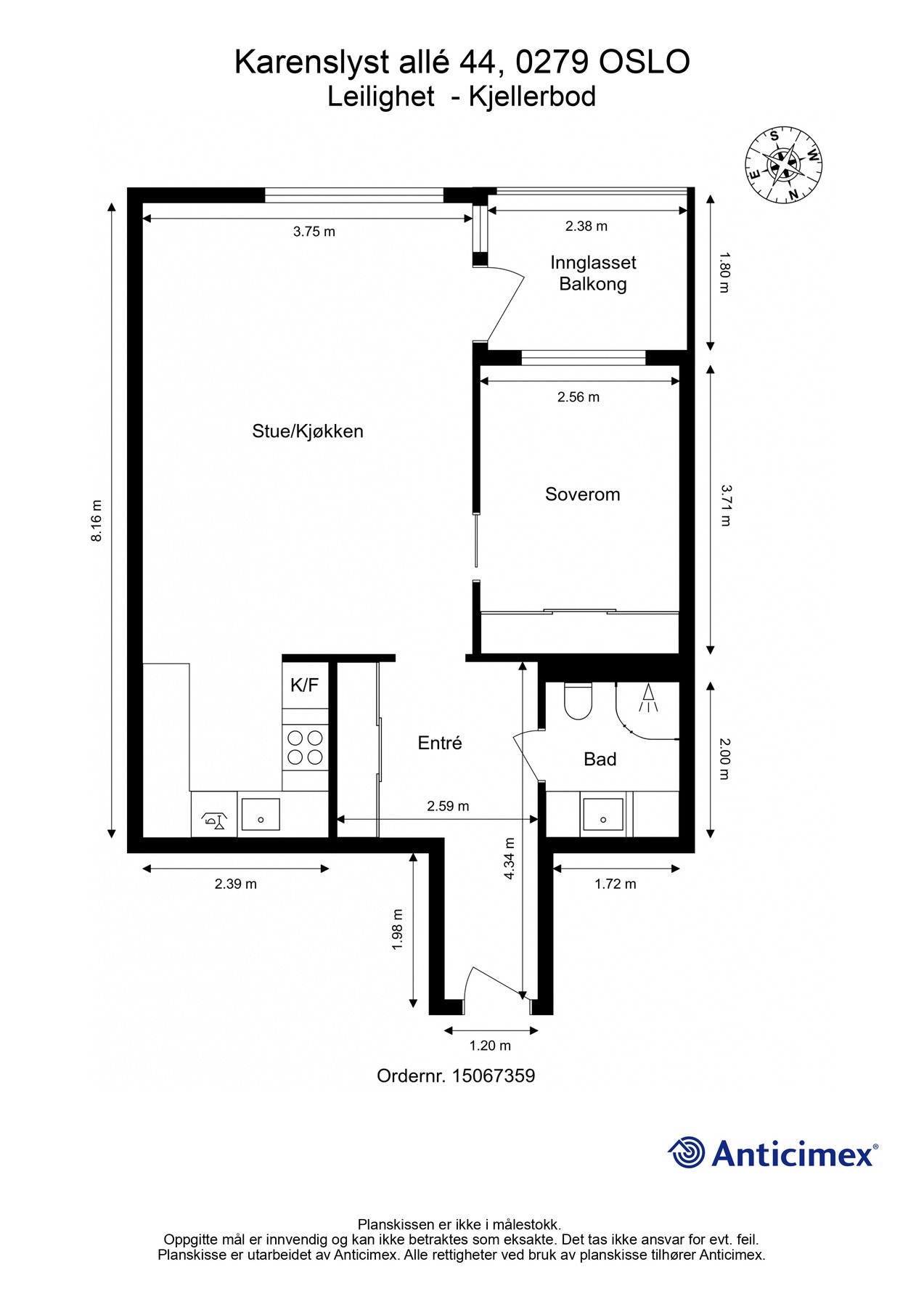
- Internt bruksareal
- 52 m² (BRA-i)
- Bruksareal
- 63 m²
- Eksternt bruksareal
- 5 m² (BRA-e)
- Innglasset balkong
- 6 m² (BRA-b)
- Etasje
- 2
- Byggeår
- 2008
- Energimerking
- B - Lysegrønn
- Rom
- 2
- Tomteareal
- 2 663 m² (eiet)
Fasiliteter
Barnevennlig
Balkong/Terrasse
Garasje/P-plass
Kabel-TV
Heis
Offentlig vann/kloakk
Parkett
Turterreng
Utsikt
Vaktmester-/vektertjeneste
Sentralt
Bredbåndstilknytning
Moderne
Rolig
Bademulighet
Lademulighet
Balansert ventilasjon
Om boligen
Velkommen til Karenslyst allé 44!
Her får du en lys og moderne leilighet av god standard, beliggende i byggets 2. etasje med heisadkomst. Leiligheten har en god planløsning bestående av entré, stue med åpen kjøkkenløsning, soverom og bad. Stuen fører ut til en solrik balkong med mulighet for innglassing, som forlenger utesesongen med hyggelig utsyn over borettslagets felles gårdsrom.
Bygget er fra 2008 og krever lite vedlikehold. Du har enkel tilgang til garasjeplassen i kjeller hvor det er montert elbillader. Beliggenheten er uslåelig med umiddelbar nærhet til Sjølyst og Skøyen, hvor du finner et rikt utvalg av butikker, serveringsteder og kollektivtransport.
Velkommen hjem!
Her får du en lys og moderne leilighet av god standard, beliggende i byggets 2. etasje med heisadkomst. Leiligheten har en god planløsning bestående av entré, stue med åpen kjøkkenløsning, soverom og bad. Stuen fører ut til en solrik balkong med mulighet for innglassing, som forlenger utesesongen med hyggelig utsyn over borettslagets felles gårdsrom.
Bygget er fra 2008 og krever lite vedlikehold. Du har enkel tilgang til garasjeplassen i kjeller hvor det er montert elbillader. Beliggenheten er uslåelig med umiddelbar nærhet til Sjølyst og Skøyen, hvor du finner et rikt utvalg av butikker, serveringsteder og kollektivtransport.
- Solrik balkong på 6 kvm
- Garasjeplass m/elbillader
- Trappefri adkomst via heis
- Felles takterrasse
- Bod i underetasje på 5 kvm
- Gangavstand til alt du trenger
Velkommen hjem!
NB: Knappen for å vise hele beskrivelsen har kun en visuell effekt.
NB: Knappen for å vise hele beskrivelsen har kun en visuell effekt.
Salgsoppgaven beskriver vesentlig og lovpålagt informasjon om eiendommen
Se komplett salgsoppgaveNyttige lenker
Nærområdet
EIE eiendomsmegling Røa, Skøyen og Ullern
Annonseinformasjon
| FINN-kode | 395700787 |
|---|---|
| Sist endret | 07. apr. 2025 09:32 |
| Referanse | 50250003 |
Annonsene kan være mangelfulle i forhold til lovpålagt opplysningsplikt. Før bindende avtale inngås oppfordres interessenter til å innhente komplett informasjon fra meglerforetaket, selger eller utleier.


























