Bildegalleri

- Har du noen spørsmål? Kontakt Christoffer Edstrøm Jacobsen - (t): 46 90 97 17 - Nordvik eiendomsmegling -
Solgt
Lys og gjennomgående 2-roms med separat kjøkken - Solrik balkong - Takhøyde på 2,65 m - "Alt" inkl. i felleskostnadene
Prisantydning4 690 000 kr
Nøkkelinfo
- Boligtype
- Leilighet
- Eieform
- Andel
- Soverom
- 1
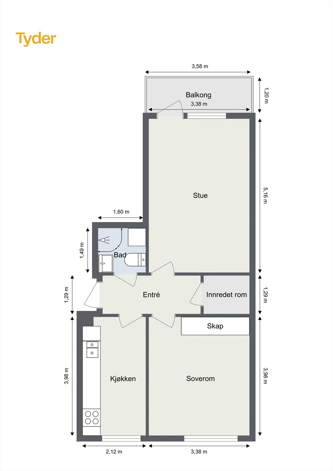
- Internt bruksareal
- 51 m² (BRA-i)
- Bruksareal
- 57 m²
- Eksternt bruksareal
- 6 m² (BRA-e)
- Balkong/Terrasse
- 4 m² (TBA)
- Etasje
- 3
- Byggeår
- 1940
- Energimerking
- F - Mørkegrønn
- Rom
- 2
- Tomteareal
- 10 223 m² (eiet)
Fasiliteter
Balkong/Terrasse
Barnevennlig
Bredbåndstilknytning
Fellesvaskeri
Garasje/P-plass
Kjæledyr tillatt
Kabel-TV
Offentlig vann/kloakk
Parkett
Rolig
Sentralt
Vaktmester-/vektertjeneste
Om boligen
Christoffer Edstrøm Jacobsen fra Nordvik eiendomsmegling har gleden av å presentere denne flotte 2-roms leiligheten beliggen midt mellom Grünerløkka og Tøyen. Her flytter du til et veldrevet borettslag med god vedlikeholdshistorikk. Boligen ligger i 3.etg, og har en gjennomgående og godt utnyttet planløsning. Fra stuen har du tilgang til en ca. 4 m² sør-østvendt balkong.
- Varmtvann, fyring, nedbetaling av gjeld, Internett / TV og drift er inkl. i felleskostnader
- To eksterne boder, og en intern, på tilsammen ca. 9 m²
- Rehabilitert bad og soilrør i regi av borettslaget
- Soverommet vender mot lukket bakgård
- Malte overflater 2022
- Vinduer byttet i 2018
- Dype vinduskarmer
- Separat kjøkken
Ta en titt på borettslaget hjemmeside: https://toyenhus.no/
NB: Knappen for å vise hele beskrivelsen har kun en visuell effekt.
NB: Knappen for å vise hele beskrivelsen har kun en visuell effekt.
Salgsoppgaven beskriver vesentlig og lovpålagt informasjon om eiendommen
Se komplett salgsoppgaveNyttige lenker
Nærområdet
Nordvik Bygdøy Allé
Annonseinformasjon
| FINN-kode | 395534617 |
|---|---|
| Sist endret | 09. juli 2025 11:10 |
| Referanse | 13-0087/25 |
Annonsene kan være mangelfulle i forhold til lovpålagt opplysningsplikt. Før bindende avtale inngås oppfordres interessenter til å innhente komplett informasjon fra meglerforetaket, selger eller utleier.





















