Bildegalleri

Påkostet og meget attraktiv gjennomgående 2 roms andelsleilighet med idyllisk beliggenhet.
Solgt
Karlsrud/Lambertseter
Påkostet og meget attraktiv 2r toppleilighet - Vestvendt balkong - Idyllisk beliggenhet og gode solforhold - Vv inkl.
Prisantydning4 200 000 kr
Nøkkelinfo
- Boligtype
- Leilighet
- Eieform
- Andel
- Soverom
- 1
- Internt bruksareal
- 53 m² (BRA-i)
- Bruksareal
- 61 m²
- Eksternt bruksareal
- 8 m² (BRA-e)
- Balkong/Terrasse
- 7 m² (TBA)
- Etasje
- 4
- Byggeår
- 1956
- Energimerking
- E - Rød
- Rom
- 2
- Tomteareal
- 16 306 m² (eiet)
Fasiliteter
Balkong/Terrasse
Barnevennlig
Bredbåndstilknytning
Fellesvaskeri
Ingen gjenboere
Kabel-TV
Rolig
Sentralt
Utsikt
Vaktmester-/vektertjeneste
Bademulighet
Turterreng
Om boligen
Meget attraktiv gjennomgående 2-roms toppleilighet som i 2021 ble betydelig påkostet!
Boligen har gjennomførte detaljer som sørger for et eksklusivt preg.
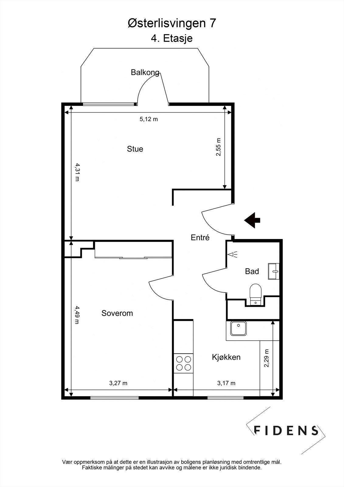
Leiligheten fremstår som pen og klar for innflytting, med velfungerende standard og praktisk planløsning. Innhold: En innbydende entré. Separat kjøkken med Norema-innredning fra 2021 og hvitevarer fra Bosch/Simens. En romslig stue med gode møbleringsmuligheter og utgang til en solrik, vestvendt balkong på ca. 7 kvm. Stort og hyggelig soverom med garderobe. Pent flislagt bad.
Høydepunkter/info:
Ingen dok.avgift
P-plasser etter ledighet
Vestvendt balkong på 7m²
V.vann, TV og bredbånd inkl.
Nærhet til service- og kollektivtilbud
Ideell for deg som ønsker en innflytningsklar bolig i et stille og attraktivt område!
Velkommen!
Boligen har gjennomførte detaljer som sørger for et eksklusivt preg.
Leiligheten fremstår som pen og klar for innflytting, med velfungerende standard og praktisk planløsning. Innhold: En innbydende entré. Separat kjøkken med Norema-innredning fra 2021 og hvitevarer fra Bosch/Simens. En romslig stue med gode møbleringsmuligheter og utgang til en solrik, vestvendt balkong på ca. 7 kvm. Stort og hyggelig soverom med garderobe. Pent flislagt bad.
Høydepunkter/info:
Ingen dok.avgift
P-plasser etter ledighet
Vestvendt balkong på 7m²
V.vann, TV og bredbånd inkl.
Nærhet til service- og kollektivtilbud
Ideell for deg som ønsker en innflytningsklar bolig i et stille og attraktivt område!
Velkommen!
NB: Knappen for å vise hele beskrivelsen har kun en visuell effekt.
NB: Knappen for å vise hele beskrivelsen har kun en visuell effekt.
Salgsoppgaven beskriver vesentlig og lovpålagt informasjon om eiendommen
Se komplett salgsoppgaveNyttige lenker
Nærområdet
Nordvik Majorstuen
Annonseinformasjon
| FINN-kode | 395467127 |
|---|---|
| Sist endret | 17. juni 2025 10:30 |
| Referanse | 8-0100/25 |
Annonsene kan være mangelfulle i forhold til lovpålagt opplysningsplikt. Før bindende avtale inngås oppfordres interessenter til å innhente komplett informasjon fra meglerforetaket, selger eller utleier.





























