Bildegalleri

Heimdal Eiendomsmegling har gleden av å presentere Starrmyra 62 - Et innholdsrikt og romslig rekkehus på Tiller.
Inaktiv
TILLER
Stort rekkehus over tre plan med flott beliggenhet| Garasjeplass | Ingen dok.avgift | Tre soverom | Sørvendt veranda
Prisantydning3 790 000 kr
Nøkkelinfo
- Boligtype
- Rekkehus
- Eieform
- Andel
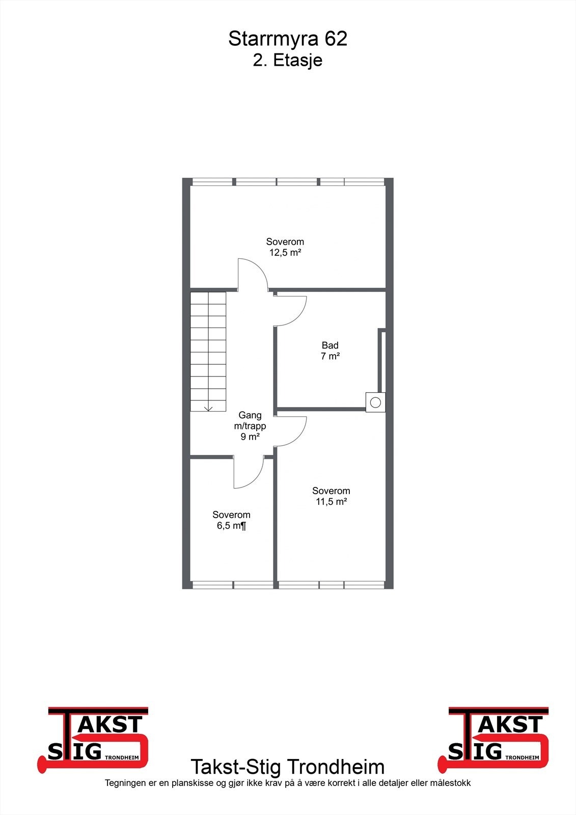
- Soverom
- 3
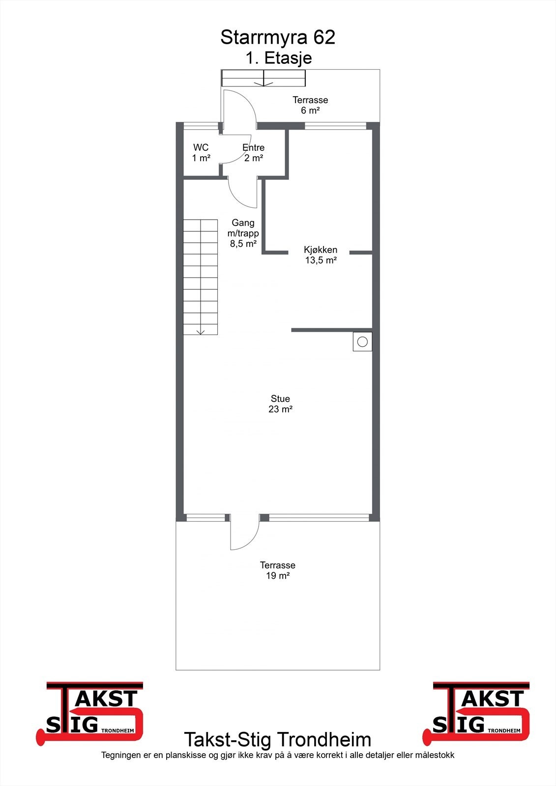
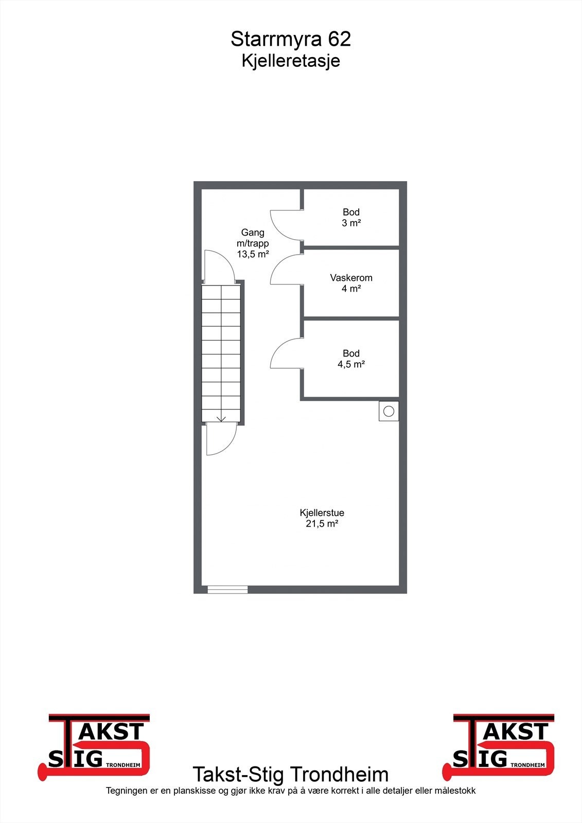
- Internt bruksareal
- 144 m² (BRA-i)
- Bruksareal
- 148 m²
- Eksternt bruksareal
- 4 m² (BRA-e)
- Balkong/Terrasse
- 25 m² (TBA)
- Etasje
- 3
- Byggeår
- 1983
- Energimerking
- F - Oransje
- Tomteareal
- 44 017 m² (eiet)
Fasiliteter
Balkong/Terrasse
Barnevennlig
Bredbåndstilknytning
Garasje/P-plass
Hage
Ingen gjenboere
Kabel-TV
Offentlig vann/kloakk
Peis/Ildsted
Rolig
Sentralt
Turterreng
Visning
Alle våre visninger har påmelding. Meld deg opp til ønsket visningstidspunkt via linken visningspåmelding , eller kontakt megler på telefon, SMS eller mail. Vi anbefaler at salgsoppgaven lastes ned digitalt, og oppfordrer alle til å lese komplett salgsoppgave før visning. Skulle det mot formodning ikke være påmeldte til angitt visningstidspunkt vil ikke visning bli gjennomført.
VisningspåmeldingOm boligen
Velkommen til Starrmyra 62 - et innholdsrikt rekkehus over tre plan med flott beliggenhet i et barnevennlig nabolag på Tiller. Området er rolig, og det er gåavstand til barnehage, skole, kjøpesenter, dagligvarebutikker, treningssenter og kollektivtransport.
Kvaliteter verdt å merke seg:
- Rekkehus over tre plan med et totalt BRA på 148m²
- Sørvendt terrasse med gode solforhold
- Fin hage på baksiden av boligen
- Separat vaskerom
- Tre gode soverom
- Egen garasjeplass i felles p-kjeller
- Veldrevet borettslag med vaktmestertjenester og hyggelige fellesarealer
- Gåavstand til barnehage, skole, kjøpesenter, søndagsåpen butikk og kollektiv transport
Velkommen på visning!
Kvaliteter verdt å merke seg:
- Rekkehus over tre plan med et totalt BRA på 148m²
- Sørvendt terrasse med gode solforhold
- Fin hage på baksiden av boligen
- Separat vaskerom
- Tre gode soverom
- Egen garasjeplass i felles p-kjeller
- Veldrevet borettslag med vaktmestertjenester og hyggelige fellesarealer
- Gåavstand til barnehage, skole, kjøpesenter, søndagsåpen butikk og kollektiv transport
Velkommen på visning!
NB: Knappen for å vise hele beskrivelsen har kun en visuell effekt.
NB: Knappen for å vise hele beskrivelsen har kun en visuell effekt.
Salgsoppgaven beskriver vesentlig og lovpålagt informasjon om eiendommen
Se komplett salgsoppgaveNyttige lenker
Nærområdet
Heimdal Eiendomsmegling avd. Heimdal
Annonseinformasjon
| FINN-kode | 395446349 |
|---|---|
| Sist endret | 15. juli 2025 12:10 |
| Referanse | 8-25-0028 |
Annonsene kan være mangelfulle i forhold til lovpålagt opplysningsplikt. Før bindende avtale inngås oppfordres interessenter til å innhente komplett informasjon fra meglerforetaket, selger eller utleier.




























