Bildegalleri

HAMAR - Strøkent rekkehus med familievennlig beliggenhet. Garasje.
Nøkkelinfo
- Boligtype
- Rekkehus
- Eieform
- Andel
- Soverom
- 3
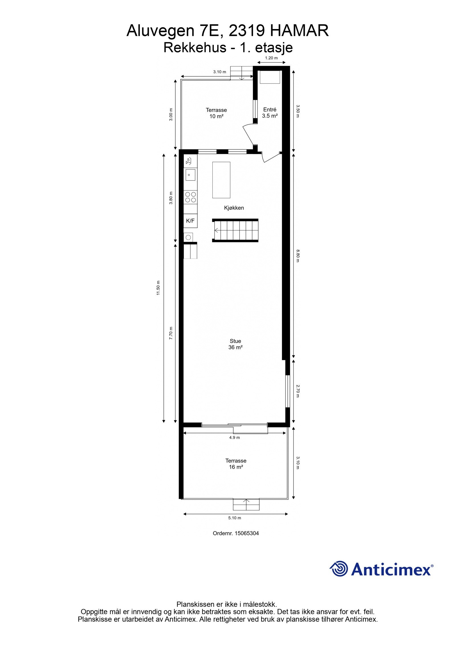
- Internt bruksareal
- 138 m² (BRA-i)
- Bruksareal
- 160 m²
- Eksternt bruksareal
- 22 m² (BRA-e)
- Balkong/Terrasse
- 43 m² (TBA)
- Byggeår
- 1956
- Energimerking
- E - Gul
- Tomteareal
- 10 254 m² (eiet)
Om boligen
Velkommen til dette særdeles flotte rekkehuset ideelt for barnefamilier!
Her bor du sentralt og rolig, med Greveløkka skole og friluftsområdet Ankerskogen rett i nærheten, samt aktiviteter som svømmehall og turstier.
Rekkehuset ble renovert i 2020/2021 med blant annet to nye bad og et kjøkken. Det ble gjort avretting av gulv, oppgradert isolering, nytt skjult elanlegg, og alle overflater i oppholdsrommene ble fornyet
I kjelleren er det et lekkert bad/vaskerom med moderne innredning og fliser, hobbyrom, samt vinkjeller.
Utvendig har du en flott hage med plen og epletrær, og flere verandaer som innbyr til avslapning. Garasjen har fjernstyrt portåpner for enkel tilgang.
Dette moderne hjemmet kombinerer kvalitet og komfort, og gir en perfekt ramme for familiens trivsel!
Velkommen til visning!
Salgsoppgaven beskriver vesentlig og lovpålagt informasjon om eiendommen
Se komplett salgsoppgaveNærområdet
EIE eiendomsmegling Innlandet
Annonseinformasjon
| FINN-kode | 395427695 |
|---|---|
| Sist endret | 09. mars 2025 21:29 |
| Referanse | 72240317 |
Annonsene kan være mangelfulle i forhold til lovpålagt opplysningsplikt. Før bindende avtale inngås oppfordres interessenter til å innhente komplett informasjon fra meglerforetaket, selger eller utleier.









































