Bildegalleri

Velkommen til denne lekre utsiktsleiligheten i Bølerlia 8.
Gjennomgående 3/4-roms med solrik balkong og fantastisk utsikt rett ved marka | Vv/fyring inkl. | Heis
Nøkkelinfo
- Boligtype
- Leilighet
- Eieform
- Andel
- Soverom
- 2
- Internt bruksareal
- 82 m² (BRA-i)
- Bruksareal
- 87 m²
- Eksternt bruksareal
- 5 m² (BRA-e)
- Balkong/Terrasse
- 5 m² (TBA)
- Etasje
- 11
- Byggeår
- 1955
- Energimerking
- G - Mørkegrønn
- Tomteareal
- 37 784 m² (eiet)
Fasiliteter
Om boligen
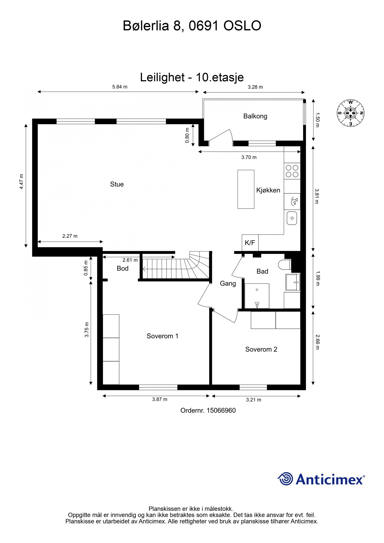
Gjennomgående og delikat 3/4-roms med solrik balkong og flott utsikt. Leiligheten ligger høyt og fritt i byggets 10.etasje (med heisadkomst). De store vindusflatene sørger for gode innvendige lysforhold og en luftig og god romfølelse.
Leiligheten har en attraktiv beliggenhet på Bøler. Det er kort gangavstand til barnehage og skole, t-bane og buss, samt Bøler senter med blant annet matbutikk, apotek, Vinmonopolet og treningssenter. Med Østmarka som nærmeste nabo har man flotte turmuligheter året rundt, lysløyper og badeplasser.
- Opprinnelig 4-roms
- Fin balkong på ca. 5m²
- Kjøkken oppgradert i 2023
- Bad fra 2017 med oppl. for vaskemaskin
- Soverom som vender mot fredelige omgivelser i marka
- Varmtvann og fyring inkl.
- Veldrevet borettslag
- Heis
- Ingen forkjøpsrett
- Nær t-bane, buss, turområder og handlesenter
Salgsoppgaven beskriver vesentlig og lovpålagt informasjon om eiendommen
Se komplett salgsoppgaveNyttige lenker
Nærområdet
Schala & Partners Carl Berner
Prisstatistikk
Bølerlia 8
på annonsen
prisantydning per kvadratmeter
Prisfordeling
Pris per m² ligger 507 kr over snittet for leiligheter i Bøler.
Grafen viser antall leiligheter solgt i Bøler siste året fordelt på pris per m² - totalt 368 leiligheter
Antall boliger
Kvadratmeterpris tilsvarer prisantydning pluss fellesgjeld per kvadratmeter (p-rom eller BRA-i). Prisene i grafen er avrundet til nærmeste 1000 kr.
Annonseinformasjon
| FINN-kode | 395163412 |
|---|---|
| Sist endret | 20. mars 2025 12:54 |
| Referanse | 17250016 |
Annonsene kan være mangelfulle i forhold til lovpålagt opplysningsplikt. Før bindende avtale inngås oppfordres interessenter til å innhente komplett informasjon fra meglerforetaket, selger eller utleier.









































