Bildegalleri

Velkommen til Hovsveien 25
Riskollen/Rishaughøgda
Stor familiebolig med hyggelig beliggenhet. 2 garasjer. Barne- og ungdomsskole innen kort gangavstand.
Prisantydning4 990 000 kr
Nøkkelinfo
- Boligtype
- Enebolig
- Eieform
- Selveier
- Soverom
- 1
- Internt bruksareal
- 205 m² (BRA-i)
- Bruksareal
- 287 m²
- Eksternt bruksareal
- 82 m² (BRA-e)
- Balkong/Terrasse
- 128 m² (TBA)
- Byggeår
- 1960
- Energimerking
- F - Gul
- Tomteareal
- 2 083 m² (festet)
- Festeavgift
- 5 641 kr
Visning
Ønsker du å delta på visningen ber vi om at du melder deg på slik at vi vet at du kommer. På den måten kan vi bistå alle best mulig, og gi deg tid på visningen. Visningen avholdes bare dersom det er påmeldte 2 timer innen oppsatt visningstidspunkt. Ta gjerne kontakt med megler på telefon 916 92 947 før visningen, hvis du har noen spørsmål. Velkommen!
VisningspåmeldingOm boligen
Populære omgivelser med nærhet til Fredriksten festning, flotte tur- og rekreasjonsområder langs Hovsfjellet og kort gangavstand til både barne- og ungdomsskole. En ideell beliggenhet for de aktive. Stor tomt på over 2 mål med fine solforhold og utsyn over nærområdet.
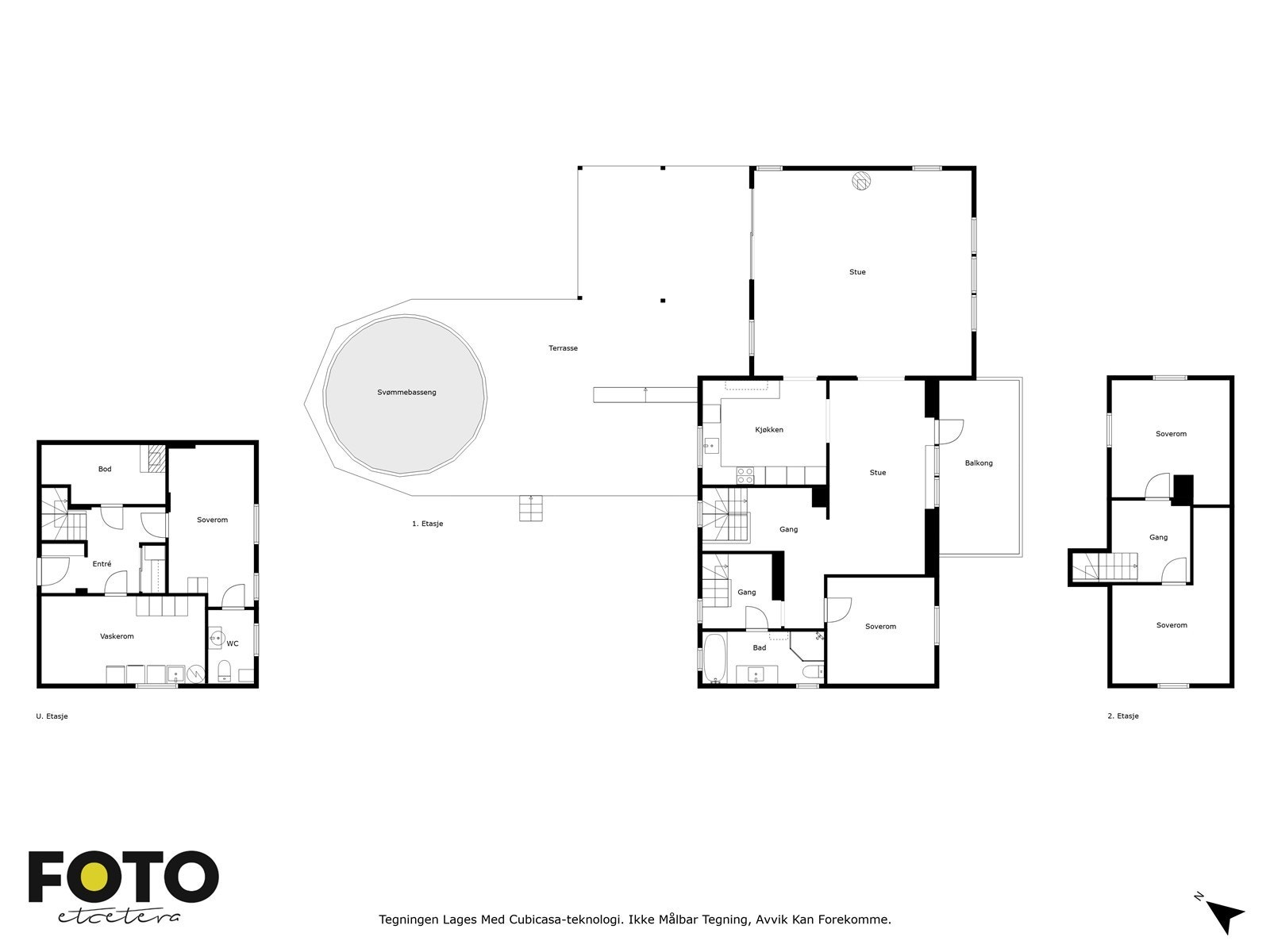
Underetasje: Entré, háll, bod, vaskerom og soverom med wc-rom.
Hovedetasje: Gang, bad/wc, soverom, kjøkken, forstue og stue.
Loftetasje: Gang og 2 soverom. Kott.
Krypkjeller.
3 garasjeplasser fordelt på 2 garasjer.
Boligen er oppgradert og fornyet i perioden 2000 og fram til dags dato. Siste årene er háll pusset opp og kjøkken er fornyet med delikat innredning fra Epoq. Terrassen er utvidet med et frittstående hagebasseng med rammeverk rundt.
Soverom i u. etasje og loft er ikke bruksendret til varig opphold.
Underetasje: Entré, háll, bod, vaskerom og soverom med wc-rom.
Hovedetasje: Gang, bad/wc, soverom, kjøkken, forstue og stue.
Loftetasje: Gang og 2 soverom. Kott.
Krypkjeller.
3 garasjeplasser fordelt på 2 garasjer.
Boligen er oppgradert og fornyet i perioden 2000 og fram til dags dato. Siste årene er háll pusset opp og kjøkken er fornyet med delikat innredning fra Epoq. Terrassen er utvidet med et frittstående hagebasseng med rammeverk rundt.
Soverom i u. etasje og loft er ikke bruksendret til varig opphold.
NB: Knappen for å vise hele beskrivelsen har kun en visuell effekt.
NB: Knappen for å vise hele beskrivelsen har kun en visuell effekt.
Salgsoppgaven beskriver vesentlig og lovpålagt informasjon om eiendommen
Se komplett salgsoppgaveNyttige lenker
Nærområdet
Eiendomsmegler 1 Halden
Vi loser deg trygt gjennom hele boligsalget
Annonseinformasjon
| FINN-kode | 395146769 |
|---|---|
| Sist endret | 23. jan. 2026 10:13 |
| Referanse | 5380250026 |
Annonsene kan være mangelfulle i forhold til lovpålagt opplysningsplikt. Før bindende avtale inngås oppfordres interessenter til å innhente komplett informasjon fra meglerforetaket, selger eller utleier.



















































