Bildegalleri

Leiligheten vender mot sydvest og har fint utsyn.
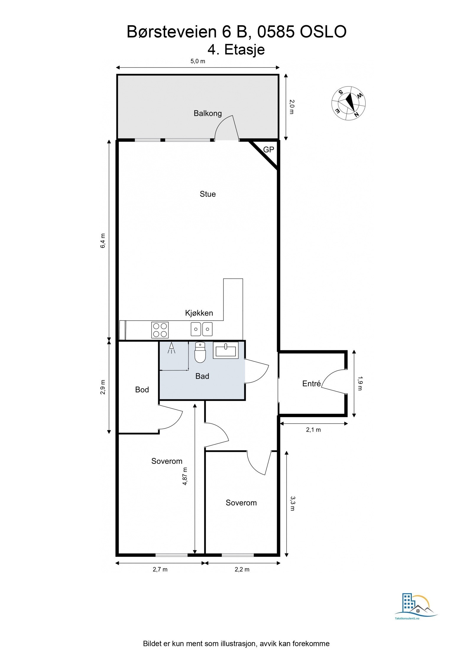
Lys, gjennomgående 3-roms | Solrik balkong | Gasspeis | Vannbåren varme | Heis | Garasjeplass | Kjellerbod m/takhøyde 3m
Nøkkelinfo
- Boligtype
- Leilighet
- Eieform
- Eier (Selveier)
- Soverom
- 2
- Internt bruksareal
- 72 m² (BRA-i)
- Bruksareal
- 77 m²
- Eksternt bruksareal
- 5 m² (BRA-e)
- Etasje
- 4
- Byggeår
- 2007
- Energimerking
- D - Mørkegrønn
- Rom
- 3
- Tomteareal
- 9 083 m² (eiet)
- Boligselgerforsikring
- Ja
Fasiliteter
Om boligen
Privatmegleren og Henrik Sjuve ønsker velkommen til Børsteveien 6 B!
Velkommen til fantastiske Løren! Dette er et relativt nytt boligområde som har gjennomgått en enorm utvikling. I dag har Løren blitt et knutepunkt og et etterspurt område i Oslo. Her bor man i et hyggelig boligstrøk som kan friste med flotte grøntarealer, flere dagligvarebutikker, restauranter og et variert servicetilbud. I tillegg er det kort vei til offentlig kommunikasjon.
Bygget var ferdig i 2007, og her får du kvaliteter som vannbåren varme, luftig beliggenhet, balkong og garasjeplass med mulighet for å montere lader. Det er god lagringsplass i innvendig bod til hovedsoverommet og i kjellerbd (takhøyde 3 meter). Oppvarming, varmtvann og strøm er inkludert i fellesutgiftene (á konto).
Velkommen til visning!
Salgsoppgaven beskriver vesentlig og lovpålagt informasjon om eiendommen
Se komplett salgsoppgaveNyttige lenker
Nærområdet

PrivatMegleren Soria Moria
Annonseinformasjon
| FINN-kode | 394693290 |
|---|---|
| Sist endret | 13. mars 2025 13:09 |
| Referanse | 154250031 |
Annonsene kan være mangelfulle i forhold til lovpålagt opplysningsplikt. Før bindende avtale inngås oppfordres interessenter til å innhente komplett informasjon fra meglerforetaket, selger eller utleier.


































