Bildegalleri

Velkommen til Åsenstubben 4 - Lekker 2-romsleilighet i 3.etasje
Sola/Forus - Lekker 2-romsleilighet med attraktiv beliggenhet | Solrik terrasse | Parkering | Heis | Ingen dok.avg
Nøkkelinfo
- Boligtype
- Leilighet
- Eieform
- Andel
- Soverom
- 1
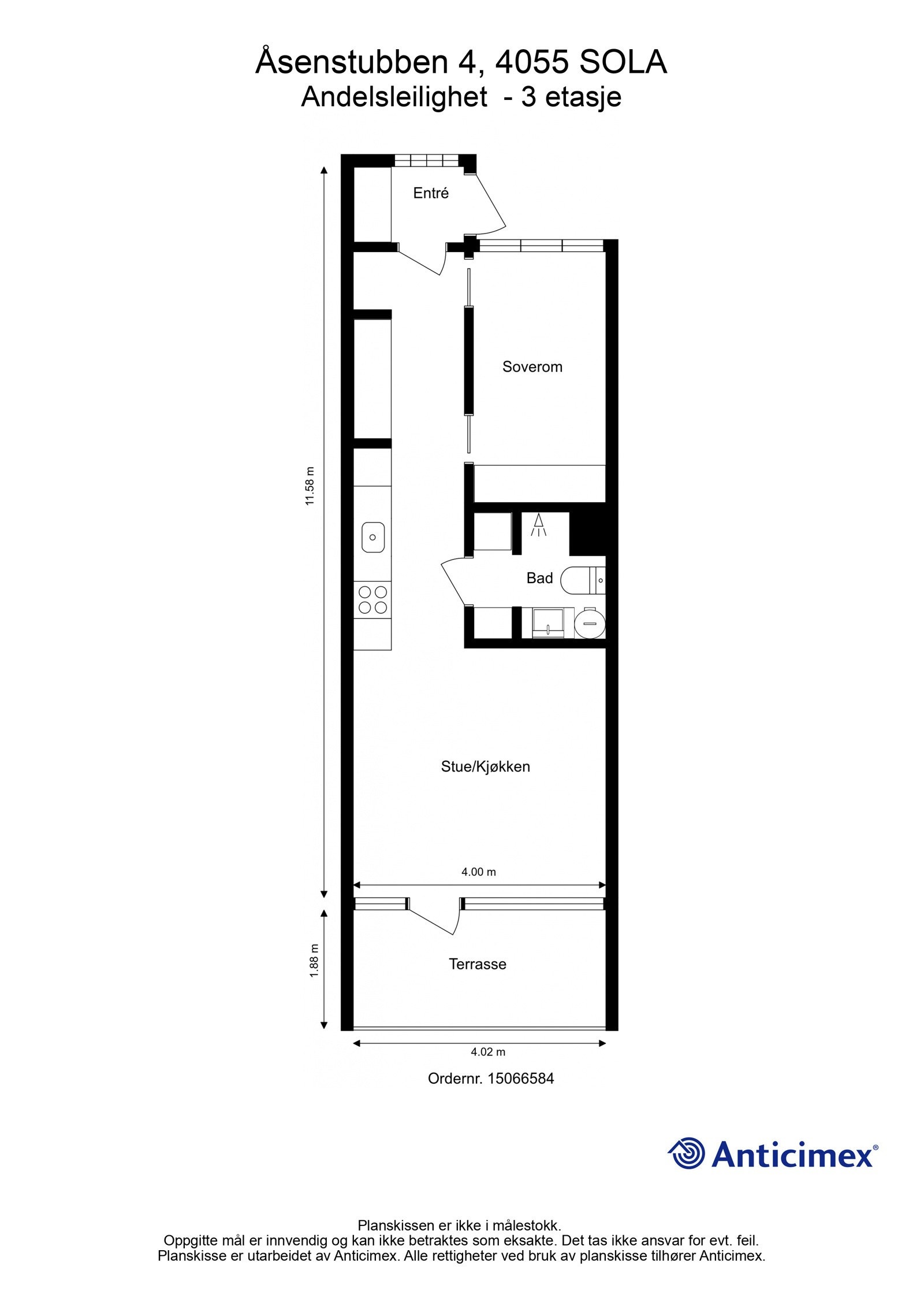
- Internt bruksareal
- 43 m² (BRA-i)
- Bruksareal
- 48 m²
- Eksternt bruksareal
- 5 m² (BRA-e)
- Balkong/Terrasse
- 8 m² (TBA)
- Etasje
- 3
- Byggeår
- 2006
- Energimerking
- D - Rød
- Tomteareal
- 1 009 m² (eiet)
Fasiliteter
Om boligen
Vi har gleden av å kunne presentere en lys og moderne 2-romsleilighet i Åsenstubben 4.
Leiligheten har en flott beliggenhet på i 3.etg, med en effektiv planløsning og en gjennomgående god standard.
Innhold:
Vindfang, gang, soverom, bad, kjøkken og stue med utgang til balkong
Fast parkeringsplass med el-billader og sportsbod i lukket garasjeanlegg
Kort fortalt:
- God standard med nyere laminatgulv og tidløse fargevalg
- Stue med utgang til solrik balkong
- Flott lyst kjøkken med hvitevarer
- Bad med fliser på gulv, gulvarme, dusj, wc og vask
- Stort soverom med skyvedørsgarderobe
- Tv og internett fra Altibox er inkl. i felleskostnadene.
Sentral beliggenhet i grensen mellom Sola og forus, med kort avstand til en rekke arbeidsplasser og fritidsaktiviter.
Velkommen til en hyggelig visning
Salgsoppgaven beskriver vesentlig og lovpålagt informasjon om eiendommen
Se komplett salgsoppgaveNærområdet
EIE eiendomsmegling Sandnes
Annonseinformasjon
| FINN-kode | 394642187 |
|---|---|
| Sist endret | 09. mars 2025 11:04 |
| Referanse | 62250008 |
Annonsene kan være mangelfulle i forhold til lovpålagt opplysningsplikt. Før bindende avtale inngås oppfordres interessenter til å innhente komplett informasjon fra meglerforetaket, selger eller utleier.































