Bildegalleri

Velkommen til Heimdalsgata 9 presentert av Kari Skottun i notar
Solgt
NEDRE GRÜNERLØKKA/BOTANISK HAGE
Meget pen 4-Roms selveiet hjørneleil. beliggende i et attraktivt omr. Totalrenovert bygård 07. Takterr. m/utsikt. Heis.
Prisantydning5 350 000 kr
Nøkkelinfo
- Boligtype
- Leilighet
- Eieform
- Eier (Selveier)
- Soverom
- 3
- Internt bruksareal
- 54 m² (BRA-i)
- Bruksareal
- 63 m²
- Eksternt bruksareal
- 9 m² (BRA-e)
- Etasje
- 2
- Byggeår
- 1898
- Rom
- 4
- Renovert år
- 2007
- Tomteareal
- 1 170 m² (eiet)
Fasiliteter
Takterrasse
Heis
Kjæledyr tillatt
Offentlig vann/kloakk
Sentralt
Om boligen
Velkommen til Heimdalsgata 9 presentert av Kari Skottun i notar.
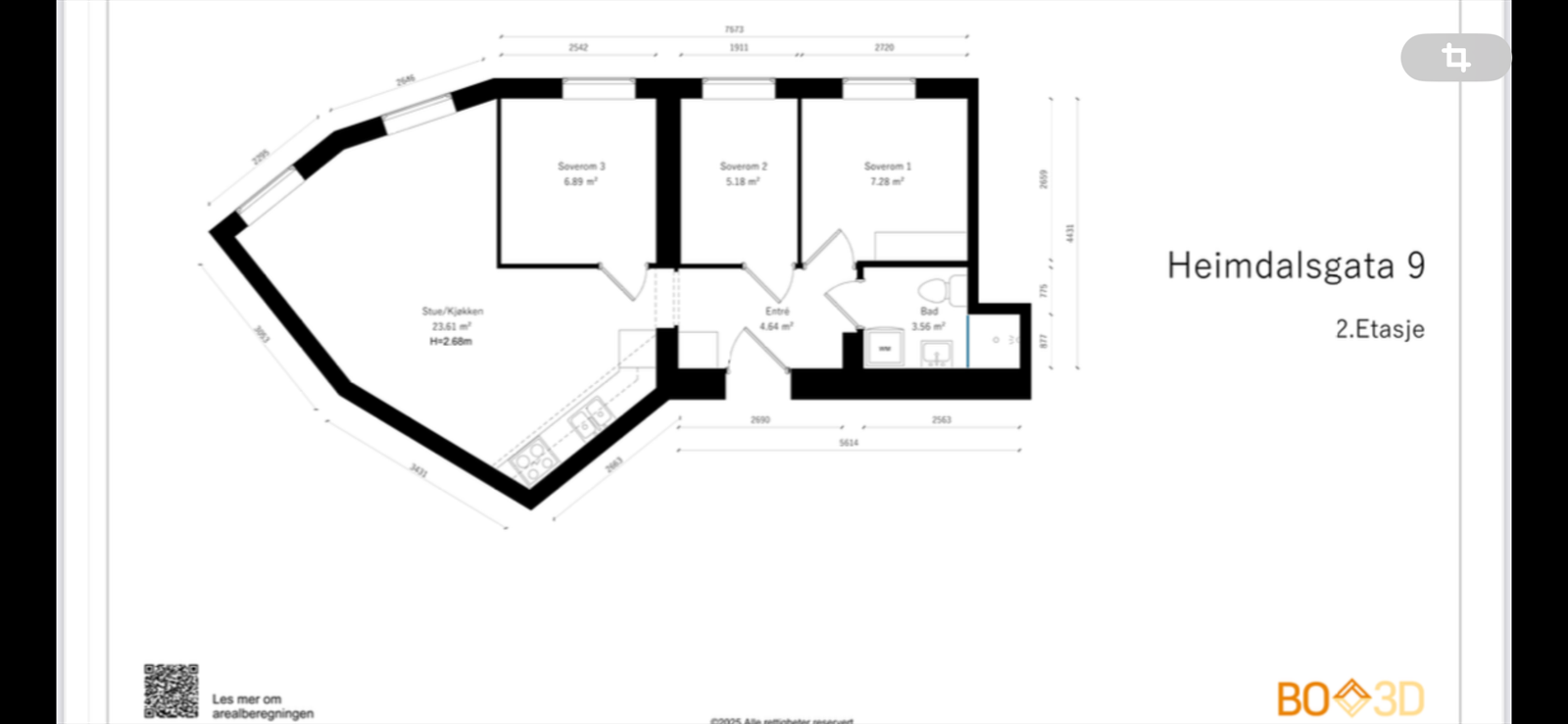
Meget pen 4-roms hjørneleilighet beliggende i et attraktivt og populært område på Grunerløkka. Boligen ligger i 2 etasje med adkomst via heis. Leiligheten har en god planløsning og oppleves lys og trivelig m/gode vindusflater og god takhøyde. Det er mulig å ta bort vegg mellom stue og soverom for større stue. Smart planløsning består av entre, 3 soverom, stue med åpen kjøkkenløsning og bad. I tillegg herlig felles takterrasse med flott utsikt og gode solforhold.
Tilgang til herlig felles takterr m/utsikt
Hjørneleili m store vinduer og god takhøyde
Felleskostn inkl. Strøm TV/Internett
Baderom m opplegg for vaskemaskin
Totalrenovert bygård fra 2007
God takhøyde 2,68 cm i stuen
Selger leid ut for 28000,- pr. mnd.
Meget pen 4-roms hjørneleilighet beliggende i et attraktivt og populært område på Grunerløkka. Boligen ligger i 2 etasje med adkomst via heis. Leiligheten har en god planløsning og oppleves lys og trivelig m/gode vindusflater og god takhøyde. Det er mulig å ta bort vegg mellom stue og soverom for større stue. Smart planløsning består av entre, 3 soverom, stue med åpen kjøkkenløsning og bad. I tillegg herlig felles takterrasse med flott utsikt og gode solforhold.
Tilgang til herlig felles takterr m/utsikt
Hjørneleili m store vinduer og god takhøyde
Felleskostn inkl. Strøm TV/Internett
Baderom m opplegg for vaskemaskin
Totalrenovert bygård fra 2007
God takhøyde 2,68 cm i stuen
Selger leid ut for 28000,- pr. mnd.
NB: Knappen for å vise hele beskrivelsen har kun en visuell effekt.
NB: Knappen for å vise hele beskrivelsen har kun en visuell effekt.
Salgsoppgaven beskriver vesentlig og lovpålagt informasjon om eiendommen
Se komplett salgsoppgaveNærområdet
Notar Gamle Oslo
God magefølelse
Prisstatistikk
Heimdalsgata 9
3 743 klikk
på annonsen
99 170 kr
prisantydning per kvadratmeter
Prisfordeling
Pris per m² ligger 3 830 kr under snittet for leiligheter i Gamle Oslo.
Grafen viser antall leiligheter solgt i Gamle Oslo siste året fordelt på pris per m² - totalt 2 067 leiligheter
Antall boliger
Kvadratmeterpris tilsvarer prisantydning pluss fellesgjeld per kvadratmeter (p-rom eller BRA-i). Prisene i grafen er avrundet til nærmeste 1000 kr.
Annonseinformasjon
| FINN-kode | 394577790 |
|---|---|
| Sist endret | 03. juni 2025 11:00 |
| Referanse | NO18.2515 |
Annonsene kan være mangelfulle i forhold til lovpålagt opplysningsplikt. Før bindende avtale inngås oppfordres interessenter til å innhente komplett informasjon fra meglerforetaket, selger eller utleier.






























