Bildegalleri

Velkommen til Darres gate 10 - presentert av Torstein Kirud.
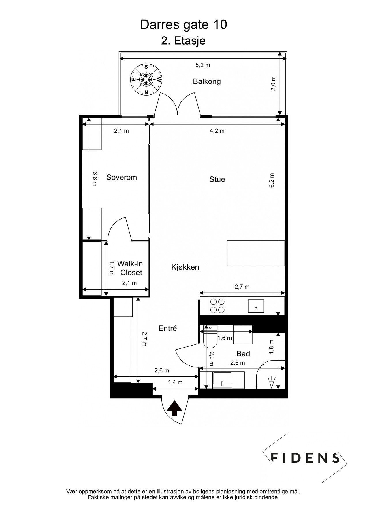
Attraktiv, lys og stor 2-roms selveier. Solrik, sydvendt balkong på 10 kvm. Heis. V.vann/ fyring og strøm inkl. Garasje*
Nøkkelinfo
- Boligtype
- Leilighet
- Eieform
- Eier (Selveier)
- Soverom
- 1
- Internt bruksareal
- 53 m² (BRA-i)
- Bruksareal
- 59 m²
- Eksternt bruksareal
- 6 m² (BRA-e)
- Balkong/Terrasse
- 10 m² (TBA)
- Etasje
- 2
- Byggeår
- 2009
- Energimerking
- D - Mørkegrønn
- Rom
- 2
- Tomteareal
- 3 313 m² (eiet)
Fasiliteter
Om boligen
Lys og romslig 2-roms selveierleilighet med svært god takhøyde og optimal planløsning. Attraktiv beliggenhet i Waldemars Hage på Alexander Kiellands plass, med umiddelbar nærhet til parker, kollektivtransport og servicetilbud.
KVALITETER:
- Herlig takhøyde på hele 2,74 meter
- Solrik, sydvendt balkong på 10 kvm
- Store vindusflater som gir rikelig med naturlig lys
- Hele leiligheten i sin helhet vender inn mot gårdsrommet
- Smakfulle farge- og materialvalg
- Heis
- A-konto strøm/ fyring/ varmtvann er inkludert i fellesutgiftene
- Walk-in-closet/ innvendig bod
- Rikelig med garderobeplass på soverom og i gang
- Praktisk ekstern bod på 6 kvm i samme etasje som leiligheten
- Felles takterrasse
- Selger eier en garasjeplass med EL. Kan kjøpes for kr. 325.000,-
Leilighetene inneholder entrè, åpen stue- og kjøkkenløsning, bad, soverom, walk-in-closet og balkong.
Salgsoppgaven beskriver vesentlig og lovpålagt informasjon om eiendommen
Se komplett salgsoppgaveNærområdet
TINHOLT Eiendomsmegling
Prisstatistikk
Darres gate 10
på annonsen
prisantydning per kvadratmeter
Prisfordeling
Pris per m² ligger 471 kr over snittet for leiligheter i Grünerløkka - Sofienberg.
Grafen viser antall leiligheter solgt i Grünerløkka - Sofienberg siste året fordelt på pris per m² - totalt 2 420 leiligheter
Antall boliger
Kvadratmeterpris tilsvarer prisantydning pluss fellesgjeld per kvadratmeter (p-rom eller BRA-i). Prisene i grafen er avrundet til nærmeste 1000 kr.
Annonseinformasjon
| FINN-kode | 394523797 |
|---|---|
| Sist endret | 19. mars 2025 06:44 |
| Referanse | 201250049 |
Annonsene kan være mangelfulle i forhold til lovpålagt opplysningsplikt. Før bindende avtale inngås oppfordres interessenter til å innhente komplett informasjon fra meglerforetaket, selger eller utleier.

























