Bildegalleri

Velkommen til Arendalsgata 20C - Dette er en lys og stilren 2-roms selveierleilighet med en attraktiv beliggenhet som byr på en flott kombinasjon av nærhet til både badeplasser, tur-stier og marka, samtidig som det er sentralt og bynært
Lys, moderne og åpen 2-roms selveier fra 2004 med gjennomgående planløsning - Fransk balkong - Heis - Felles takterrasse
Nøkkelinfo
- Boligtype
- Leilighet
- Eieform
- Eier (Selveier)
- Soverom
- 1
- Internt bruksareal
- 42 m² (BRA-i)
- Bruksareal
- 45 m²
- Eksternt bruksareal
- 3 m² (BRA-e)
- Etasje
- 2
- Byggeår
- 2004
- Energimerking
- D - Rød
- Rom
- 2
- Tomteareal
- 2 213 m² (eiet)
- Boligselgerforsikring
- Ja
Fasiliteter
Om boligen
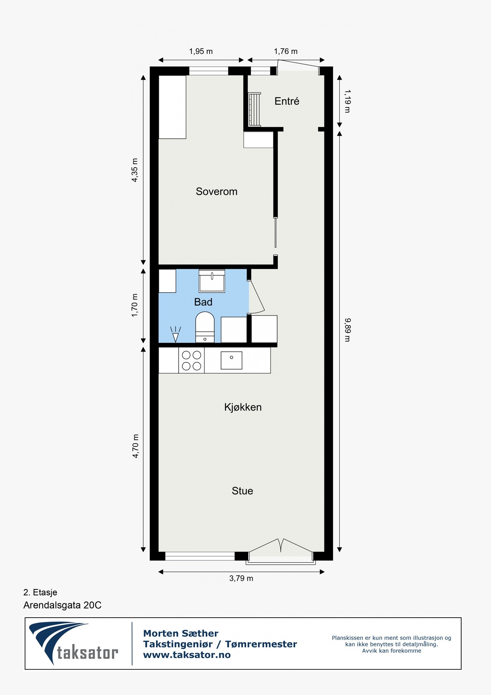
Velkommen til Arendalsgata 20C - Dette er en lys og stilren 2-roms selveierleilighet med en attraktiv beliggenhet som byr på en flott kombinasjon av nærhet til både badeplasser, tur-stier og marka, samtidig som det er sentralt og bynært. Leiligheten ligger i andre etasjen i et moderne bygg fra 2004. Leiligheten har store vindusflater som slipper inn rikelig med naturlig lys, og en fransk balkong som bidrar til en luftig og behagelig atmosfære. Leiligheten har en praktisk planløsning som inkluderer en innbydende entré, en romslig stue med åpen kjøkkenløsning, et soverom vendt mot rolige omgivelser og et pent, flislagt bad.
Kvaliteter:
- To felles takterrasser
- Moderne bygg fra 2004
- Lave felleskostnader
- Heisadkomst
- Attraktiv belligenhet
- Nærhet til Akerselva
- Kort vei til offentlig kommunikasjon
Salgsoppgaven beskriver vesentlig og lovpålagt informasjon om eiendommen
Se komplett salgsoppgaveNyttige lenker
Nærområdet

PrivatMegleren Aksept
Annonseinformasjon
| FINN-kode | 394507794 |
|---|---|
| Sist endret | 06. mars 2025 14:14 |
| Referanse | 92250041 |
Annonsene kan være mangelfulle i forhold til lovpålagt opplysningsplikt. Før bindende avtale inngås oppfordres interessenter til å innhente komplett informasjon fra meglerforetaket, selger eller utleier.
























