Bildegalleri

Laila Flinterud har gleden av å presentere Hjalmar Brantingsveg 115!
Solgt
Fyllingsdalen v/Oasen | Stor og sentralt 3-roms med vestvendt balkong | Inkludert varmtvann | Enkel adkomst
Prisantydning2 950 000 kr
Nøkkelinfo
- Boligtype
- Leilighet
- Eieform
- Andel
- Soverom
- 2
- Internt bruksareal
- 92 m² (BRA-i)
- Bruksareal
- 97 m²
- Eksternt bruksareal
- 5 m² (BRA-e)
- Balkong/Terrasse
- 14 m² (TBA)
- Etasje
- 1
- Byggeår
- 1972
- Energimerking
- G - Rød
- Rom
- 3
- Tomteareal
- 61 267 m² (eiet)
Fasiliteter
Balkong/Terrasse
Kabel-TV
Offentlig vann/kloakk
Sentralt
Utsikt
Turterreng
Lademulighet
Om boligen
Laila Flinterud ønsker velkommen til Hjalmar Brantingsveg 115!
Meget sentralt beliggende 3 roms i et etterspurt borettslag. Selv om den har opprinnelig standard og trenger rehabilitering, har den stort potensiale. Gode muligheter for innvendige forandringer. Ligger ideelt til i 1. etasje med enkel adkomst.
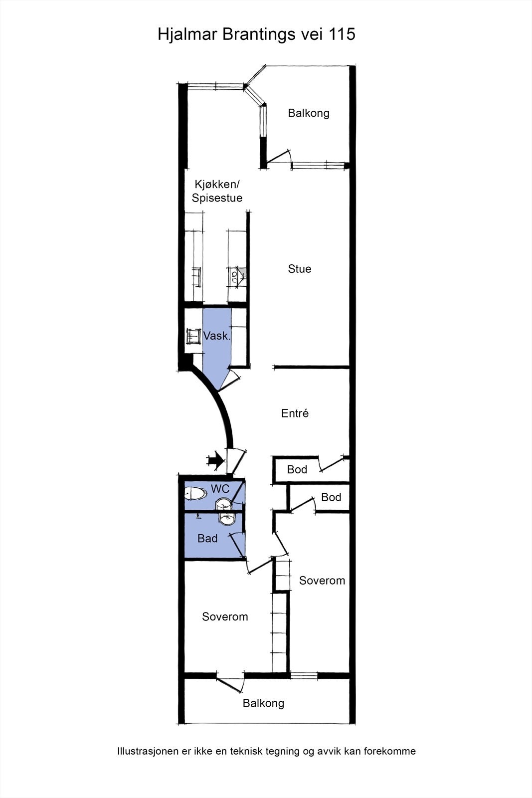
Inneholder: entre, hall bod, 2 soverom, bad, wc, separat vaskerom, kjøkken og stue. 2 boder i samme plan som leiligheten.
Høydepunkt:
-Like ved Oasen, bybane og bussforbindelse
-God parkeringsløsning i borettslaget, el-bil lading
-Garasjeplass, venteliste/søknad
-Super enkel adkomst
-Boligen har stort potensiale
Her kan du skape din nye drømmebolig.
Brett opp ermene, så vi sees på visning!
Velkommen.
Meget sentralt beliggende 3 roms i et etterspurt borettslag. Selv om den har opprinnelig standard og trenger rehabilitering, har den stort potensiale. Gode muligheter for innvendige forandringer. Ligger ideelt til i 1. etasje med enkel adkomst.
Inneholder: entre, hall bod, 2 soverom, bad, wc, separat vaskerom, kjøkken og stue. 2 boder i samme plan som leiligheten.
Høydepunkt:
-Like ved Oasen, bybane og bussforbindelse
-God parkeringsløsning i borettslaget, el-bil lading
-Garasjeplass, venteliste/søknad
-Super enkel adkomst
-Boligen har stort potensiale
Her kan du skape din nye drømmebolig.
Brett opp ermene, så vi sees på visning!
Velkommen.
NB: Knappen for å vise hele beskrivelsen har kun en visuell effekt.
NB: Knappen for å vise hele beskrivelsen har kun en visuell effekt.
Salgsoppgaven beskriver vesentlig og lovpålagt informasjon om eiendommen
Se komplett salgsoppgaveNyttige lenker
Nærområdet
Fana Sparebank Eiendom
Annonseinformasjon
| FINN-kode | 394395448 |
|---|---|
| Sist endret | 03. mars 2025 14:49 |
| Referanse | 01250037 |
Annonsene kan være mangelfulle i forhold til lovpålagt opplysningsplikt. Før bindende avtale inngås oppfordres interessenter til å innhente komplett informasjon fra meglerforetaket, selger eller utleier.































