Bildegalleri

David Novosad v/ EiendomsMegler1 presenterer Innherredsveien 61 D.
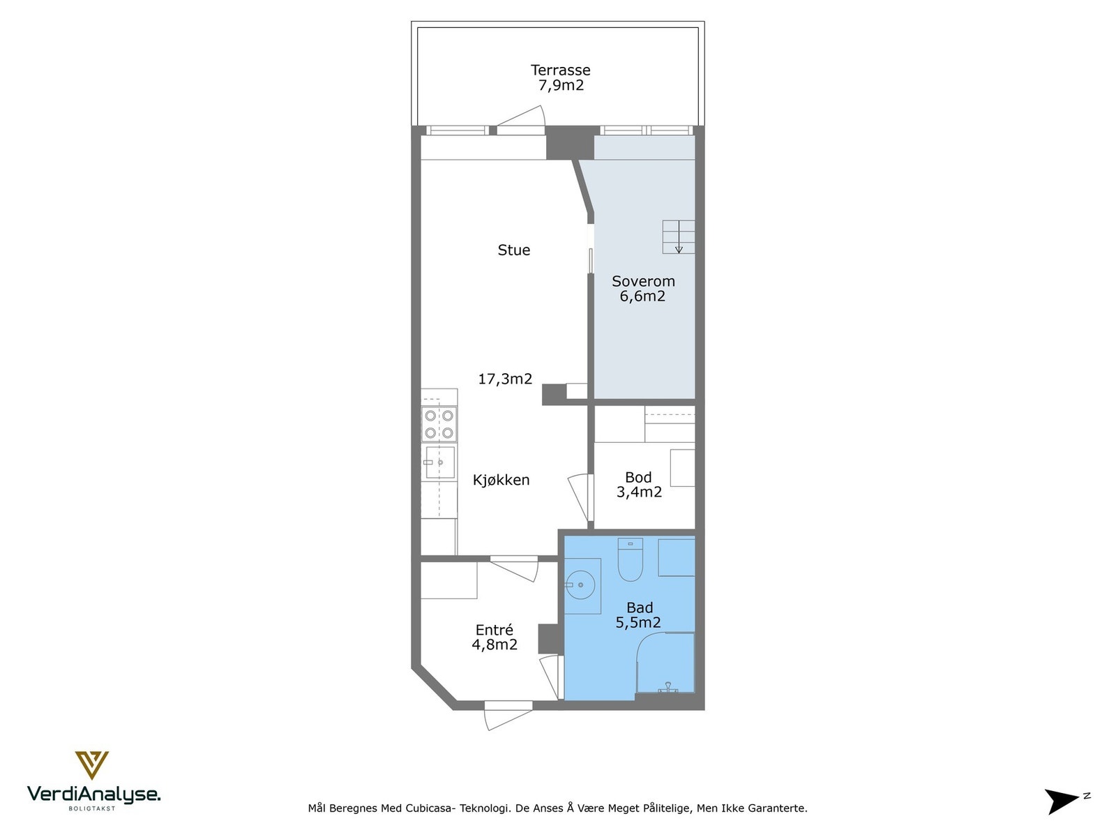
Urban og sjarmerende 2-roms. Svært raus takhøyde. Romslig terrasse. Soverom med hems. Bod i kjeller. Ingen forkjøpsrett.
Nøkkelinfo
- Boligtype
- Leilighet
- Eieform
- Andel
- Soverom
- 1
- Internt bruksareal
- 40 m² (BRA-i)
- Bruksareal
- 44 m²
- Eksternt bruksareal
- 4 m² (BRA-e)
- Balkong/Terrasse
- 8 m² (TBA)
- Etasje
- 1
- Byggeår
- 1900
- Energimerking
- F - Rød
- Rom
- 2
- Tomteareal
- 4 290 m² (eiet)
Fasiliteter
Om boligen
En sentral og fin 2-roms på 40m² med gjennomgående god standard og takhøyde på ca. 3,5 meter. Her bor du urbant men tilbaketrukket, med kort vei til de fleste sentrale studiesteder.
Kvaliteter:
- TG1 på de fleste punkter
- Privat vestvendt terrasse, vendt mot rolig bakgård
- Pent kjøkken med gode lagringsmuligheter
- Flislagt bad med opplegg for vaskemaskin
- IN-ordning. Ved individuell nedbetaling av felles lån vil nye felleskostnader være ca. kr 4 363,- pr mnd.
- Egen bod i kjeller. Veldrevet borettslag med bl.a. pent opparbeidede fellesarealer
- Gangavstand til Midtbyen, Solsiden, BI Trondheim, Dronning Mauds Minne og flere NTNU-campuser
Velkommen til en hyggelig visning!
Salgsoppgaven beskriver vesentlig og lovpålagt informasjon om eiendommen
Se komplett salgsoppgaveNyttige lenker
Nærområdet
EiendomsMegler 1 Lerkendal
Prisstatistikk
Innherredsveien 61 D
på annonsen
prisantydning per kvadratmeter
Prisfordeling
Pris per m² ligger 9 165 kr under snittet for leiligheter i Trondheim Øst.
Grafen viser antall leiligheter solgt i Trondheim Øst siste året fordelt på pris per m² - totalt 2 545 leiligheter
Antall boliger
Kvadratmeterpris tilsvarer prisantydning pluss fellesgjeld per kvadratmeter (p-rom eller BRA-i). Prisene i grafen er avrundet til nærmeste 1000 kr.
Annonseinformasjon
| FINN-kode | 394340531 |
|---|---|
| Sist endret | 25. aug. 2025 06:40 |
| Referanse | 37250014 |
Annonsene kan være mangelfulle i forhold til lovpålagt opplysningsplikt. Før bindende avtale inngås oppfordres interessenter til å innhente komplett informasjon fra meglerforetaket, selger eller utleier.































