Bildegalleri

Velkommen til denne lyse og arealeffektive 2-romsleiligheten med generøs takhøyde presentert av Anne Aartun.
Solgt
St.hanshaugen
Klassisk og innbydende 2-roms m/god planløsning og generøs takhøyde. Bel. mot rolig bakgård. V.vann og internett inkl.
Prisantydning4 350 000 kr
Nøkkelinfo
- Boligtype
- Leilighet
- Eieform
- Andel
- Soverom
- 1
- Internt bruksareal
- 36 m² (BRA-i)
- Bruksareal
- 39 m²
- Eksternt bruksareal
- 3 m² (BRA-e)
- Etasje
- 2
- Byggeår
- 1889
- Energimerking
- F - Rød
- Rom
- 2
- Tomteareal
- 443 m² (festet)
- Festeavgift
- 305 000 kr
Fasiliteter
Bredbåndstilknytning
Fellesvaskeri
Kjæledyr tillatt
Offentlig vann/kloakk
Parkett
Rolig
Sentralt
Vaktmester-/vektertjeneste
Turterreng
Om boligen
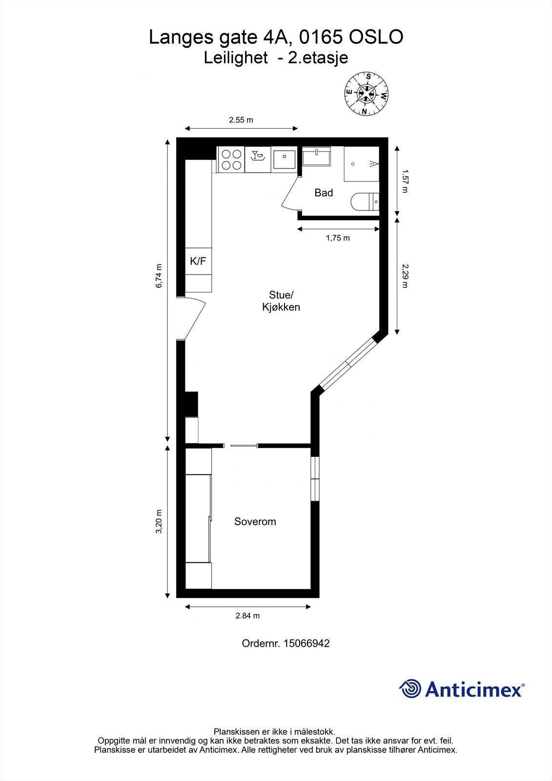
Velkommen til denne flotte og arealeffektive 2-roms leiligheten med generøs takhøyde. Her har du en godt utnyttet 2-roms med attraktiv beliggenhet på St. Hanshaugen. Boligen ligger i 2. etasje og byr på moderne kjøkken med integrerte hvitevarer, sosial stue med gode vindusflater, et lunt og fint soverom vendt mot rolig bakgård og et flislagt, delikat bad med varmekabler. Leiligheten er oppusset fra 2020 og frem til i dag og fremstår som stilfull og innbydende. Leiligheten vender i sin helhet mot rolig bakgård. Her får du en fredelig atmosfære samtidig som du er nær alle byens fasiliteter.
En-stavs parkett og nymalte overflater
Nytt kjøkken (2020)
Rikelig garderobeplass
Generøs takhøyde
Nye vinduer (2018)
Ingen forkjøpsrett eller dok. avgift
Veldrevet borettslag med hyggelig bakgård
En-stavs parkett og nymalte overflater
Nytt kjøkken (2020)
Rikelig garderobeplass
Generøs takhøyde
Nye vinduer (2018)
Ingen forkjøpsrett eller dok. avgift
Veldrevet borettslag med hyggelig bakgård
NB: Knappen for å vise hele beskrivelsen har kun en visuell effekt.
NB: Knappen for å vise hele beskrivelsen har kun en visuell effekt.
Salgsoppgaven beskriver vesentlig og lovpålagt informasjon om eiendommen
Se komplett salgsoppgaveNyttige lenker
Nærområdet
Krogsveen Majorstuen og Oslo Vest
Verdien av en god megler.
Annonseinformasjon
| FINN-kode | 394244544 |
|---|---|
| Sist endret | 19. juni 2025 06:28 |
| Referanse | KR40.2518 |
Annonsene kan være mangelfulle i forhold til lovpålagt opplysningsplikt. Før bindende avtale inngås oppfordres interessenter til å innhente komplett informasjon fra meglerforetaket, selger eller utleier.

























