Bildegalleri

Kristoffer Mjåtveit har gleden av å presentere Dalsbergstien 3!
Solgt
ST. HANSHAUGEN
Svært arealeffektiv leilighet med generøs takhøyde - To hemser - IN-ordning (FK 2 849,-) - Vender mot stille bakgård.
Prisantydning2 530 000 kr
Nøkkelinfo
- Boligtype
- Leilighet
- Eieform
- Andel
- Soverom
- 0
- Internt bruksareal
- 23 m² (BRA-i)
- Bruksareal
- 23 m²
- Etasje
- 2
- Byggeår
- 1895
- Energimerking
- G - Rød
- Rom
- 1
- Tomteareal
- 568 m² (eiet)
Fasiliteter
Barnevennlig
Bredbåndstilknytning
Fellesvaskeri
Ingen gjenboere
Kabel-TV
Offentlig vann/kloakk
Parkett
Rolig
Sentralt
Turterreng
Om boligen
En lys, pen og arealeffektiv leilighet med attraktiv beliggenhet. Her bor du sentralt på populære St. Hanshaugen med kort vei til flere av byens fineste parker, alt av servicefasiliteter og god tilknytning til offentlig kommunikasjon.
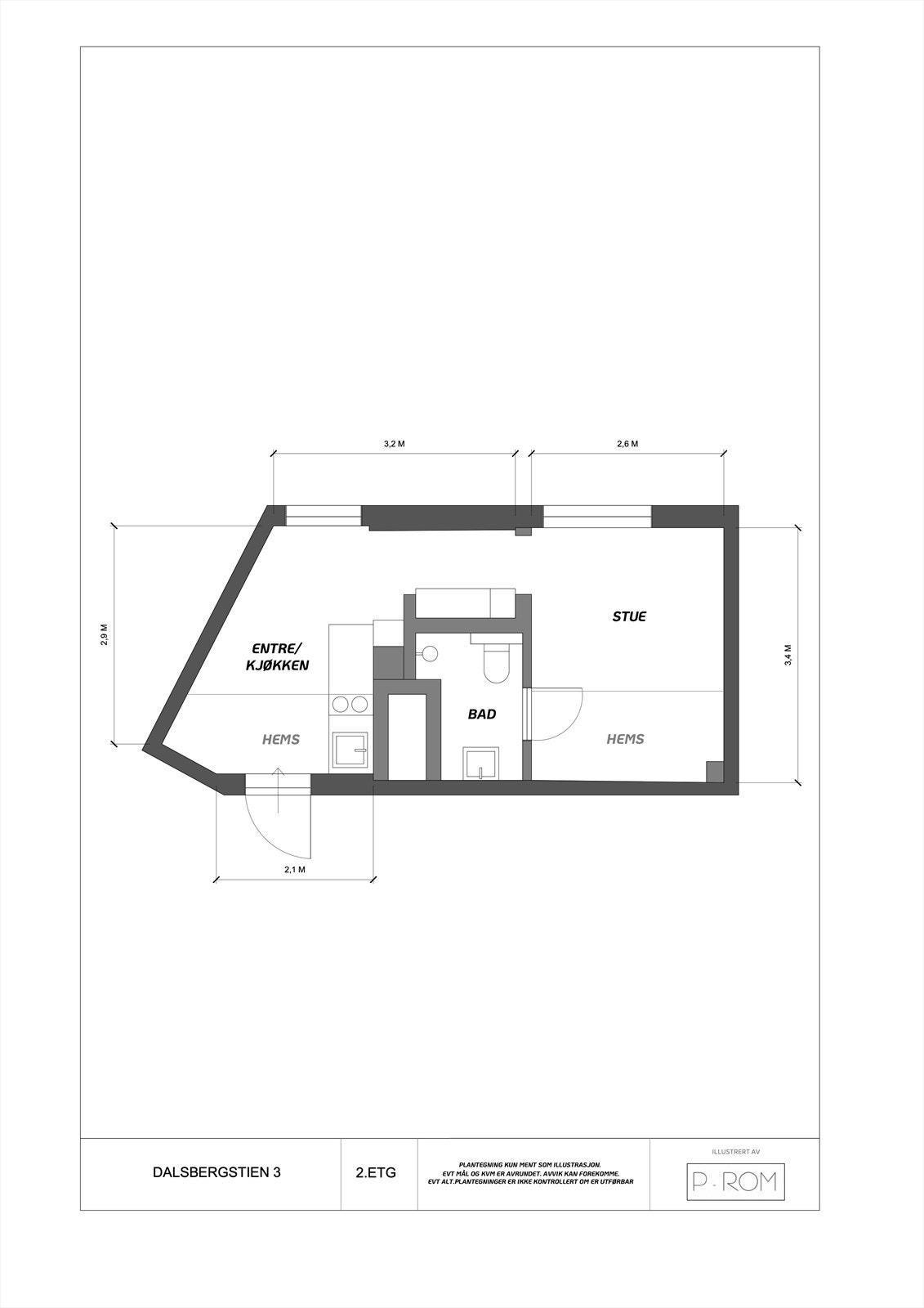
Leiligheten har en svært effektiv planløsning, og inneholder separat kjøkken med spiseplass, god stue med praktisk sovehems og flislagt bad.
Leiligheten har en svært effektiv planløsning, og inneholder separat kjøkken med spiseplass, god stue med praktisk sovehems og flislagt bad.
- To hemser på hhv 2,6 og 3 kvm.
- Generøs takhøyde på hele 3,2m og store vindusflater
- Vinduer fra 2015
- Fellesvaskeri og tørkerom
- Internett, a-konto strøm og varmtvann inkludert i felleskostnadene
- IN-ordning ved innfrielse av fellesgjelden vil felleskostnadene utgjøre ca. 2 849,-
- Lave kjøpsomkostninger
- Bakgård med sykkelparkering og sittegrupper
- Bod i kjelleren.
NB: Knappen for å vise hele beskrivelsen har kun en visuell effekt.
NB: Knappen for å vise hele beskrivelsen har kun en visuell effekt.
Salgsoppgaven beskriver vesentlig og lovpålagt informasjon om eiendommen
Se komplett salgsoppgaveNyttige lenker
Nærområdet
Nordvik St.Hanshaugen
Annonseinformasjon
| FINN-kode | 394241287 |
|---|---|
| Sist endret | 28. apr. 2025 10:30 |
| Referanse | 5-0051/25 |
Annonsene kan være mangelfulle i forhold til lovpålagt opplysningsplikt. Før bindende avtale inngås oppfordres interessenter til å innhente komplett informasjon fra meglerforetaket, selger eller utleier.



























