Bildegalleri

Fasade
Solgt
Innholdsrik enebolig på Vestad. 4 soverom. Tilbygget og oppgradert.
Prisantydning2 300 000 kr
Nøkkelinfo
- Boligtype
- Enebolig
- Eieform
- Eier (Selveier)
- Soverom
- 4
- Internt bruksareal
- 125 m² (BRA-i)
- Bruksareal
- 154 m²
- Eksternt bruksareal
- 29 m² (BRA-e)
- Balkong/Terrasse
- 80 m² (TBA)
- Byggeår
- 1976
- Energimerking
- F - Oransje
- Rom
- 5
- Tomteareal
- 464 m² (eiet)
Om boligen
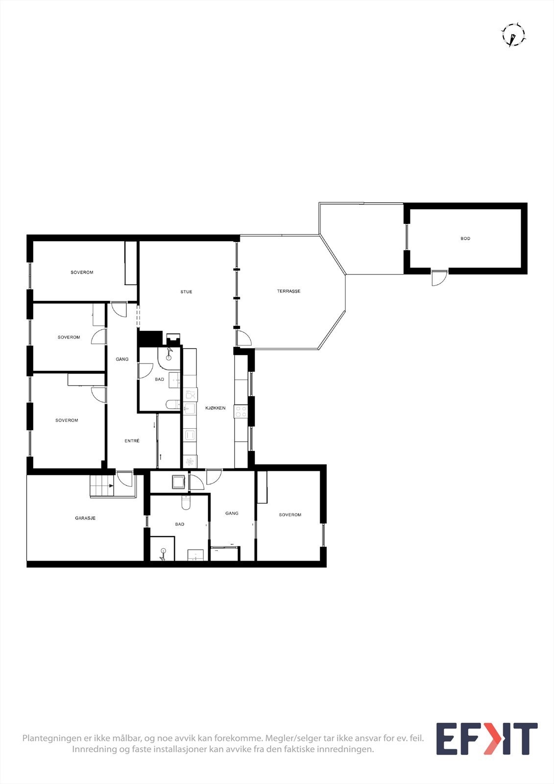
Innholdsrik enebolig med sentral beliggenhet på Grindalsmoen. Opprinnelig oppført i 1976, tilbygget med bad, soverom og vaskerom i 2017.
Boligen har bl.a. 4 soverom, to bad og åpen stue-/kjøkkenløsning.
Overbygget inngang/carport. Vestvendt og solrik veranda.
Boligen har nærhet til flott turområde med stier og oppkjørte skiløyper.
Ca 850 meter gangavstand til barneskole.
Ca 700 meter gangavstand til dagligvarebutikk.
Boligen har bl.a. 4 soverom, to bad og åpen stue-/kjøkkenløsning.
Overbygget inngang/carport. Vestvendt og solrik veranda.
Boligen har nærhet til flott turområde med stier og oppkjørte skiløyper.
Ca 850 meter gangavstand til barneskole.
Ca 700 meter gangavstand til dagligvarebutikk.
NB: Knappen for å vise hele beskrivelsen har kun en visuell effekt.
NB: Knappen for å vise hele beskrivelsen har kun en visuell effekt.
Salgsoppgaven beskriver vesentlig og lovpålagt informasjon om eiendommen
Se komplett salgsoppgaveNyttige lenker
Nærområdet
EiendomsMegler 1 Elverum
Vi loser deg trygt gjennom hele boligsalget
Prisstatistikk
Grevlingvegen 27
7 026 klikk
på annonsen
18 400 kr
prisantydning per kvadratmeter
Prisfordeling
Pris per m² ligger 1 600 kr under snittet for eneboliger i Elverum.
Grafen viser antall eneboliger solgt i Elverum siste året fordelt på pris per m² - totalt 184 eneboliger
Antall boliger
Kvadratmeterpris tilsvarer prisantydning pluss fellesgjeld per kvadratmeter (p-rom eller BRA-i). Prisene i grafen er avrundet til nærmeste 1000 kr.
Annonsene kan være mangelfulle i forhold til lovpålagt opplysningsplikt. Før bindende avtale inngås oppfordres interessenter til å innhente komplett informasjon fra meglerforetaket, selger eller utleier.






















