Bildegalleri

Velkommen til Rimstadvegen 3 - Stue med utsikt mot fjorden
Tingvoll
Romslig enebolig med historisk sus og sjønær beliggenhet. Stor tomt og kort vei til sentrum.
Prisantydning1 490 000 kr
Nøkkelinfo
- Boligtype
- Enebolig
- Eieform
- Eier (Selveier)
- Soverom
- 3
- Internt bruksareal
- 202 m² (BRA-i)
- Bruksareal
- 214 m²
- Eksternt bruksareal
- 12 m² (BRA-e)
- Balkong/Terrasse
- 52 m² (TBA)
- Byggeår
- 1890
- Energimerking
- G - Rød
- Rom
- 4
- Tomteareal
- 1 567 m² (eiet)
Fasiliteter
Barnevennlig
Balkong/Terrasse
Garasje/P-plass
Offentlig vann/kloakk
Peis/Ildsted
Utsikt
Om boligen
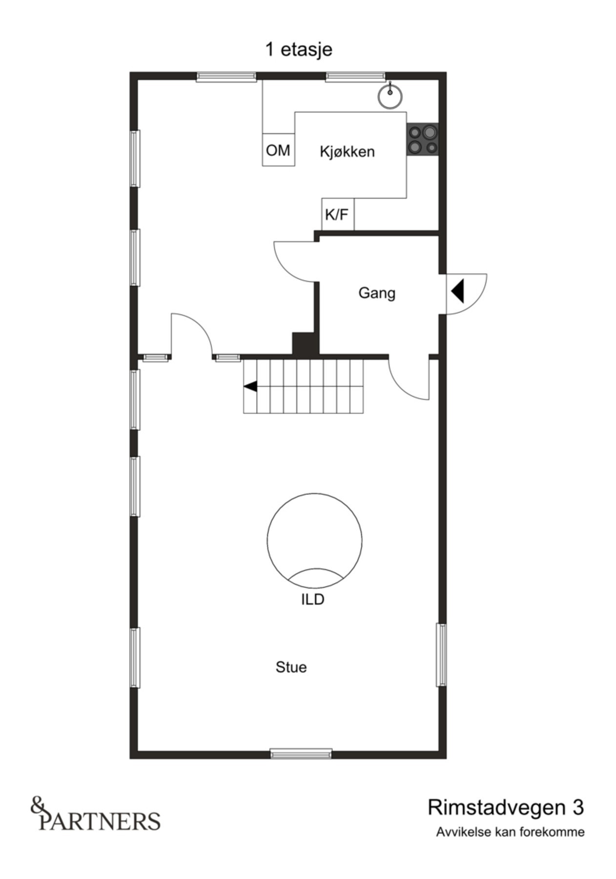
Velkommen til Rimstadvegen 3! En romslig enebolig i tradisjonell stil med god romfølelse og stor tomt. Huset går over flere plan og inneholder blant annet en lys stue med flere møbleringsmuligheter, et flott kjøkken fra 2023 med plass til spisestue. Gode soverom, bad og godt med lagringsplass. Huset er hjemmekoselig innredet og her kan man nyte lang kveldssol mens det knitrer i peisen. Beliggenheten byr på utsikt over fjorden og kort vei til Tingvoll sentrum.
Det er i tillegg en utvendig bod med mulighet til diverse oppbevaring og lagring. Boligen har en generøs balkong med plass til utemøblement.
Eiendommen ligger i et rolig og familievennlig område med kort avstand til det meste. Tingvoll sentrum er kun noen minutter unna med bil, men det er også fint å spasere langs Rimstadbukta og Sortdalsstien. Området har gode turmuligheter med nærhet til skog og mark.
Oppgraderinger av boligen må påregnes.
Velkommen på visning!
Det er i tillegg en utvendig bod med mulighet til diverse oppbevaring og lagring. Boligen har en generøs balkong med plass til utemøblement.
Eiendommen ligger i et rolig og familievennlig område med kort avstand til det meste. Tingvoll sentrum er kun noen minutter unna med bil, men det er også fint å spasere langs Rimstadbukta og Sortdalsstien. Området har gode turmuligheter med nærhet til skog og mark.
Oppgraderinger av boligen må påregnes.
Velkommen på visning!
NB: Knappen for å vise hele beskrivelsen har kun en visuell effekt.
NB: Knappen for å vise hele beskrivelsen har kun en visuell effekt.
Salgsoppgaven beskriver vesentlig og lovpålagt informasjon om eiendommen
Se komplett salgsoppgaveNærområdet
Nedal & Partners
Verdien av lokalkunnskap
Annonseinformasjon
| FINN-kode | 394206615 |
|---|---|
| Sist endret | 21. okt. 2025 12:15 |
| Referanse | 191240171 |
Annonsene kan være mangelfulle i forhold til lovpålagt opplysningsplikt. Før bindende avtale inngås oppfordres interessenter til å innhente komplett informasjon fra meglerforetaket, selger eller utleier.










































