Bildegalleri

Velkommen til Blessum Terrasse og leil 401
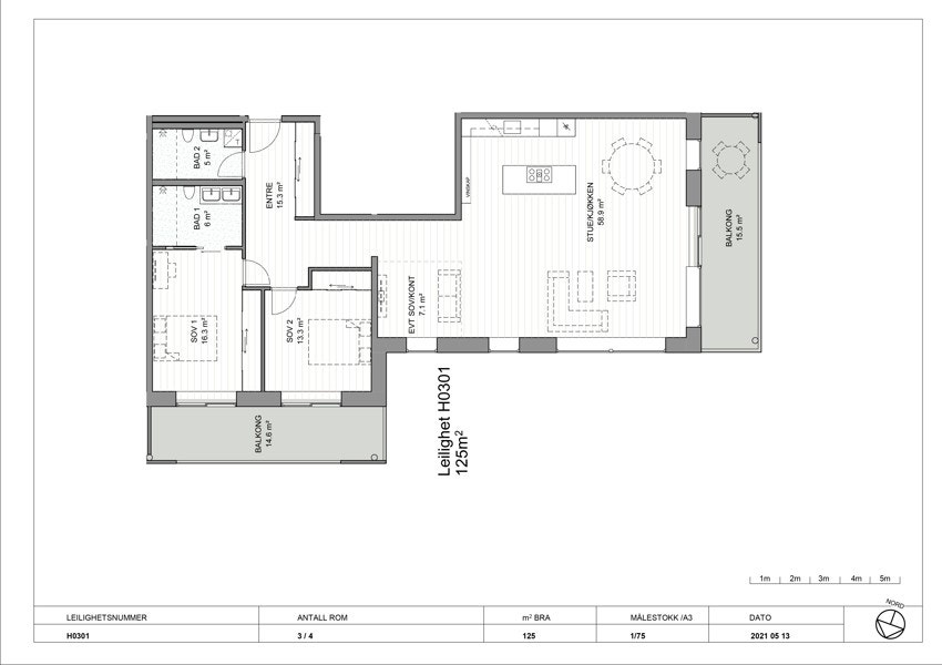
Eksklusiv leilighet fra 2024 med fantastisk utsikt i Blessum Terrasse - Garasjeplass - 2 uteplasser - 2 bad - 2 sov
Prisantydning13 900 000 kr
Nøkkelinfo
- Boligtype
- Leilighet
- Eieform
- Eier (Selveier)
- Soverom
- 2
- Internt bruksareal
- 126 m² (BRA-i)
- Bruksareal
- 131 m²
- Eksternt bruksareal
- 5 m² (BRA-e)
- Balkong/Terrasse
- 30 m² (TBA)
- Etasje
- 4
- Byggeår
- 2024
- Energimerking
- B - Mørkegrønn
- Tomteareal
- 852 m² (eiet)
Fasiliteter
Balkong/Terrasse
Garasje/P-plass
Heis
Kabel-TV
Moderne
Offentlig vann/kloakk
Parkett
Utsikt
Vaktmester-/vektertjeneste
Visning
Alle våre visninger har påmelding. På denne måten sikrer vi at megler har god oversikt og tid til å imøtekomme alle interessenter på beste måte. Dette er veldig verdifullt for boligkjøpere og for oss. Det er enkelt å melde seg på, og du kan like enkelt melde deg av.
Kontakt også gjerne megler i forkant av visning dersom du har spørsmål.
VisningspåmeldingOm boligen
Privatmegleren Lillehammer har gleden av å presentere en sjeldent flott leilighet i Blessum Terrasse, i Lillehammer sentrum. Her kombineres skreddersøm og særegen design på en unik måte.
Noen av leilighetens kvaliteter:
- To romslige verandaer/uteplasser med meget god solgang og fantastisk utsikt.
- Felles treningsrom og skiprepareringsrom.
- Parkeringsplass i felles garasjeanlegg.
- Bod ca. 5 kvm.
- 2 plassbygde bad med porcelenato fliser med marmor struktur, i kombinasjon med glatte, malte flater og innredninger fra Strai.
- To romslige soverom hvor det ene er et Master bedroom en Suite.
- Kvalitetskjøkken fra Strai.
- Vannbåren gulvvarme i alle rom.
- Store vinduer med mørke karmer.
- En-stavs eikeparkett
- Solskjerming på solutsatte vinduer på stuedel
- Integrerte garderober med hyller og heng m.m.
NB: Knappen for å vise hele beskrivelsen har kun en visuell effekt.
NB: Knappen for å vise hele beskrivelsen har kun en visuell effekt.
Salgsoppgaven beskriver vesentlig og lovpålagt informasjon om eiendommen
Se komplett salgsoppgaveNyttige lenker
Nærområdet

PrivatMegleren Lillehammer
Kun det beste på dine vegne
Annonseinformasjon
| FINN-kode | 394104522 |
|---|---|
| Sist endret | 29. juni 2025 02:08 |
| Referanse | 55240464 |
Annonsene kan være mangelfulle i forhold til lovpålagt opplysningsplikt. Før bindende avtale inngås oppfordres interessenter til å innhente komplett informasjon fra meglerforetaket, selger eller utleier.



































































