Bildegalleri

Velkommen til Eikebergveien 22 og 24! En innholdsrik boligeiendom med to eneboliger, låve og stabbur. Foto: Svein Michaelsen
Aurskog
Landlig tun på 3,5 mål med 2 pene tømmerhus i sveitserstil, velholdt sjarm, stabbur og låve. Solrikt med idyllisk utsikt
Prisantydning9 290 000 kr
Nøkkelinfo
- Boligtype
- Enebolig
- Eieform
- Eier (Selveier)
- Soverom
- 9
- Internt bruksareal
- 496 m² (BRA-i)
- Bruksareal
- 776 m²
- Eksternt bruksareal
- 280 m² (BRA-e)
- Balkong/Terrasse
- 20 m² (TBA)
- Byggeår
- 1800
- Energimerking
- G - Rød
- Rom
- 12
- Tomteareal
- 3 592 m² (eiet)
Om boligen
Velkommen til Eikebergveien 22 og 24 - en landlig eiendom på 3592,4 kvm med to store tømmerhus i sveitserstil, en låve og et stabbur samlet rundt et solrikt tun. Utsikten strekker seg over åpent åkerlandskap med nærhet til skog og mark.
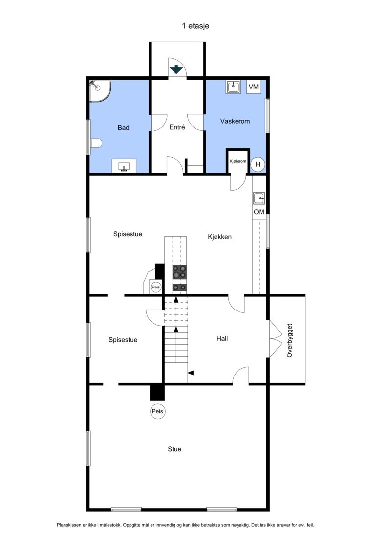
Det største huset har mest sannsynlig opprinnelse fra 1780 og ble flyttet til tunet og påbygd med to bad, vaskerom, ett soverom og kontor i 1995. Huset er ca. 318 kvm og betydelig påkostet gjennom de siste 20 årene. Det har blant annet flere stuer, stort spisekjøkken med grue, luftig bibliotek og fem soverom.
Det andre huset er fra ca. 1900, og med påbygg fra 2006. Huset er innholdsrikt med flere stuer, fire soverom og flere våtrom. Huset er utleid. Moderniseringer med fokus på gjenbruk har gitt to unike hus med sjarm, sjel og tidsmessig komfort
Det største huset har mest sannsynlig opprinnelse fra 1780 og ble flyttet til tunet og påbygd med to bad, vaskerom, ett soverom og kontor i 1995. Huset er ca. 318 kvm og betydelig påkostet gjennom de siste 20 årene. Det har blant annet flere stuer, stort spisekjøkken med grue, luftig bibliotek og fem soverom.
Det andre huset er fra ca. 1900, og med påbygg fra 2006. Huset er innholdsrikt med flere stuer, fire soverom og flere våtrom. Huset er utleid. Moderniseringer med fokus på gjenbruk har gitt to unike hus med sjarm, sjel og tidsmessig komfort
NB: Knappen for å vise hele beskrivelsen har kun en visuell effekt.
NB: Knappen for å vise hele beskrivelsen har kun en visuell effekt.
Salgsoppgaven beskriver vesentlig og lovpålagt informasjon om eiendommen
Se komplett salgsoppgaveNærområdet
Aktiv Bjørkelangen
Annonseinformasjon
| FINN-kode | 394096310 |
|---|---|
| Sist endret | 17. jan. 2026 17:40 |
| Referanse | 1107250011 |
Annonsene kan være mangelfulle i forhold til lovpålagt opplysningsplikt. Før bindende avtale inngås oppfordres interessenter til å innhente komplett informasjon fra meglerforetaket, selger eller utleier.




































































