Bildegalleri

Eiendomsmegler Emilie Fredriksen v/ Meglerhuset & Partners Drammen presenterer Sørensvingen 16!
ÅSSIDEN - Strøken 3-roms leilighet - Moderne kjøkken - Innglasset balkong på 11 kvm - Mulighet for parkering!
Nøkkelinfo
- Boligtype
- Leilighet
- Eieform
- Andel
- Soverom
- 2
- Internt bruksareal
- 62 m² (BRA-i)
- Bruksareal
- 78 m²
- Eksternt bruksareal
- 5 m² (BRA-e)
- Innglasset balkong
- 11 m² (BRA-b)
- Etasje
- 8
- Byggeår
- 1971
- Energimerking
- F - Mørkegrønn
- Tomteareal
- 21 539 m² (eiet)
Fasiliteter
Om boligen
Eiendomsmegler Emilie Fredriksen v/ Meglerhuset & Partners Drammen presenterer Sørensvingen 16!
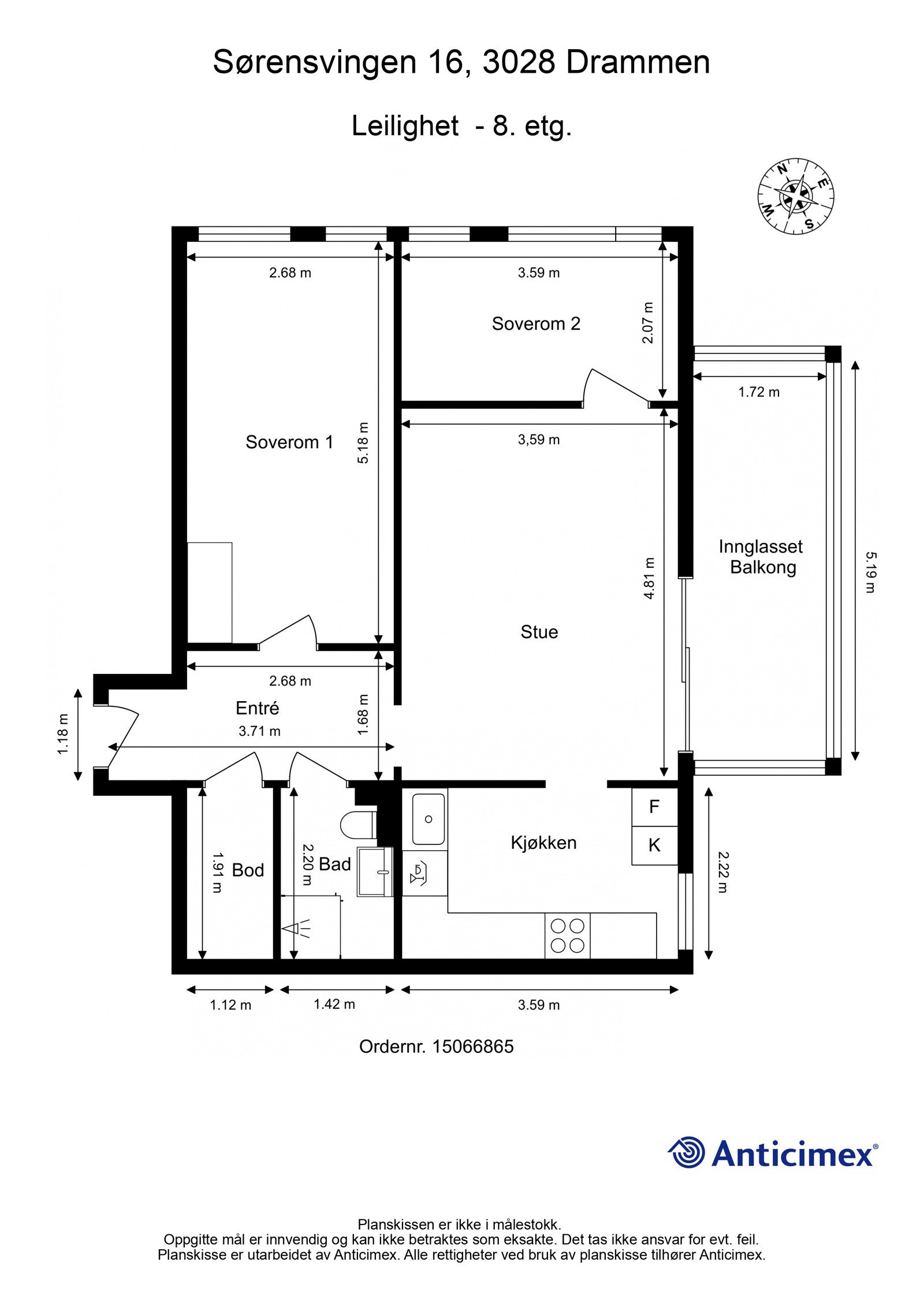
En moderne og innbydende 3 -roms borettslagsleilighet i 8. etasje i Åshøgda borettslag.
Leiligheten har 2 soverom, stue med adkomst til kjøkken, romslig gang og moderne bad med vaskemaskinopplegg.
Åshøgda borettslag ligger sentralt på Åssiden, med kort gangavstand til butikker og servicetilbud.
Transport er lett tilgjengelig med hyppige bussavganger til sentrum, samt TimesEkspressen mot Oslo og Kongsberg.
Velkommen på visning!
Salgsoppgaven beskriver vesentlig og lovpålagt informasjon om eiendommen
Se komplett salgsoppgaveNyttige lenker
Nærområdet
Meglerhuset & Partners Drammen
Prisstatistikk
Sørensvingen 16
på annonsen
prisantydning per kvadratmeter
Prisfordeling
Pris per m² ligger 9 783 kr under snittet for leiligheter i Gamle Drammen.
Grafen viser antall leiligheter solgt i Gamle Drammen siste året fordelt på pris per m² - totalt 1 088 leiligheter
Antall boliger
Kvadratmeterpris tilsvarer prisantydning pluss fellesgjeld per kvadratmeter (p-rom eller BRA-i). Prisene i grafen er avrundet til nærmeste 1000 kr.
Annonsene kan være mangelfulle i forhold til lovpålagt opplysningsplikt. Før bindende avtale inngås oppfordres interessenter til å innhente komplett informasjon fra meglerforetaket, selger eller utleier.



















