Bildegalleri

Her får du en romslig 2-roms leilighet med gode lys forhold og innglasset balkong.
Solgt
Hamar sentrum
Stor og romslig 2-roms leilighet med sentrumsnær beliggenhet | Bad fra 2024 | Innglasset balkong på 9 kvm |
Prisantydning2 350 000 kr
Nøkkelinfo
- Boligtype
- Leilighet
- Eieform
- Andel
- Soverom
- 1
- Internt bruksareal
- 69 m² (BRA-i)
- Bruksareal
- 78 m²
- Innglasset balkong
- 9 m² (BRA-b)
- Etasje
- 1
- Byggeår
- 1960
- Energimerking
- F - Lysegrønn
- Tomteareal
- 2 966 m² (eiet)
Om boligen
Velkommen til Heidmanns gate 31!
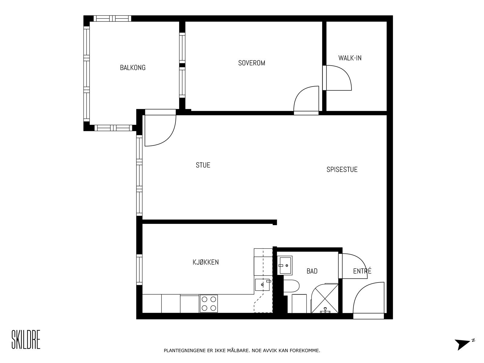
Her får du en lys og romslig 2-roms leilighet i et sentralt og veletablert boligfelt i Hamar sentrum. Boligen byr på et romslig soverom med walk-in garderobe, nyrenovert bad, romslig stue/spisestue og inglasset balkong.
Kort fortalt:
- Innglasset balkong på ca. 9 kvm
- Renovert bad med gulvvarme
- Soverom med direkte adkomst til walk-in
- Sentral beliggenhet i Hamar sentrum
- Lys og romslig kjøkken
- Stue med flere møblerinsmuligheter
- Nytt el-anlegg i 2024
NB: Knappen for å vise hele beskrivelsen har kun en visuell effekt.
NB: Knappen for å vise hele beskrivelsen har kun en visuell effekt.
Salgsoppgaven beskriver vesentlig og lovpålagt informasjon om eiendommen
Se komplett salgsoppgaveNyttige lenker
Nærområdet
PrivatMegleren Hamar
Kun det beste på dine vegne
Annonseinformasjon
| FINN-kode | 393630969 |
|---|---|
| Sist endret | 24. juli 2025 10:54 |
| Referanse | 320250014 |
Annonsene kan være mangelfulle i forhold til lovpålagt opplysningsplikt. Før bindende avtale inngås oppfordres interessenter til å innhente komplett informasjon fra meglerforetaket, selger eller utleier.
























