
Bildegalleri

Storhaug + partnere med Stian Mathiassen presenterer denne flotte eiendommen i Merkurvegen 4!
Har du noen spørsmål rundt salget av denne eiendommen?
Megler for dette salget
Jeg svarer gjerne på spørsmål om eiendommen og området.
Tiltalende enebolig i rekke | Utleiedel | Flott utsikt og gode solforhold | Garasje | Barnevennlig
Pris på lån: fra 26 308 kr/mnd
Eff.rente 5,00 %. 4 550 000 o/25 år. Kostnad: 3 342 400 kr. Totalt 7 892 400 kr.
LånekalkulatorNøkkelinfo
- Boligtype
- Enebolig
- Eieform
- Eier (Selveier)
- Soverom
- 3
- Internt bruksareal
- 170 m² (BRA-i)
- Bruksareal
- 190 m²
- Eksternt bruksareal
- 20 m² (BRA-e)
- Balkong/Terrasse
- 12 m² (TBA)
- Byggeår
- 1974
- Energimerking
- E - Gul
- Rom
- 4
- Tomteareal
- 277 m² (eiet)
Om boligen
Storhaug + Partnere med Stian Mathiassen presenterer en sjelden mulighet i Merkurvegen 4!
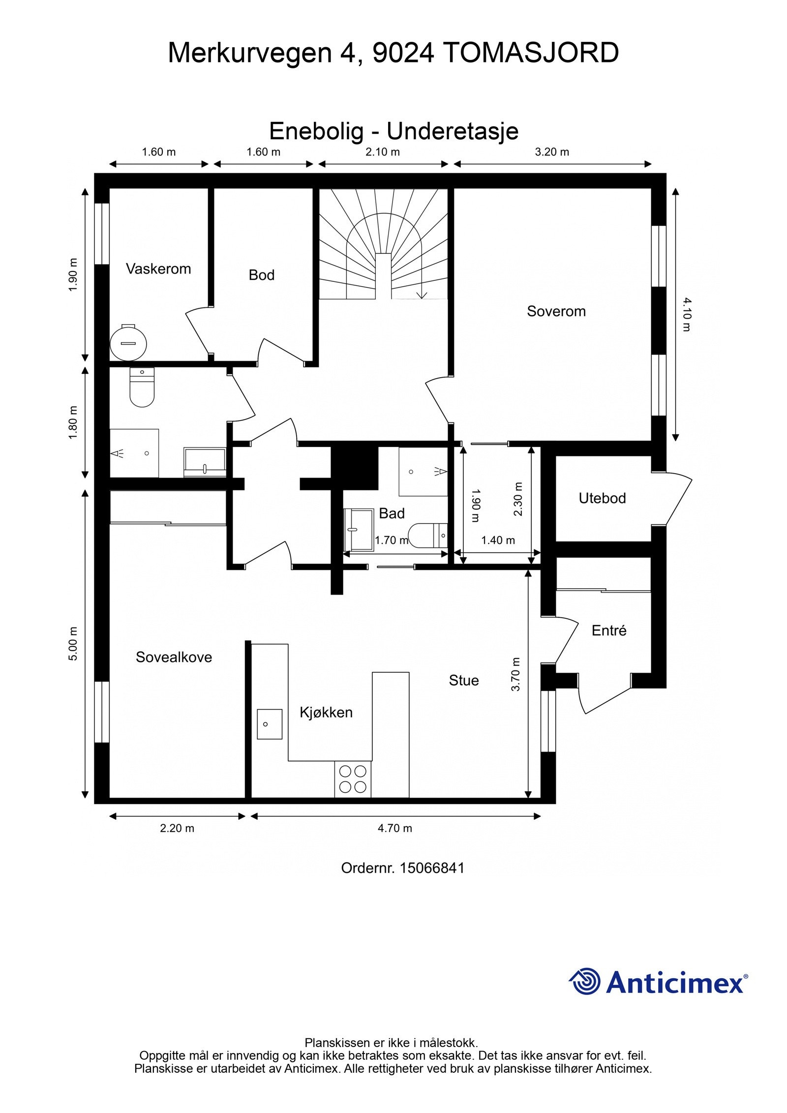
Flott enebolig med attraktiv beliggenhet med nydelig utsikt og gode solforhold. Boligen går over 2 plan og inneholder i 1. plan entré, bad, 2 store soverom, kjøkken, spiestue og stue. Utgang til vestvendt balkong fra stuen. I underetasjen er det i hoveddel gang, 1 soverom med walk-in.closet, bad, vaskerom og bod. Egen utleiedel med egen entré, stue, kjøkken, bad og sovealkove. Parkering utenfor boligen samt i garasje i garasjerekke. Rolig område og gate med kort vei til skoler, barnehage, butikk, bussforbindelser, TUIL arena og lysløype.
For mer info ta kontakt med eiendomsmegler Stian Mathiassen!
Salgsoppgaven beskriver vesentlig og lovpålagt informasjon om eiendommen
Se komplett salgsoppgaveNærområdet
STORHAUG + PARTNERE AS
Prisstatistikk
Merkurvegen 4
på annonsen
prisantydning per kvadratmeter
Prisfordeling
Pris per m² ligger 3 235 kr over snittet for eneboliger i Tromsdalen/Tomasjord/Kroken/Ramfjord.
Grafen viser antall eneboliger solgt i Tromsdalen/Tomasjord/Kroken/Ramfjord siste året fordelt på pris per m² - totalt 102 eneboliger
Antall boliger
Kvadratmeterpris tilsvarer prisantydning pluss fellesgjeld per kvadratmeter (p-rom eller BRA-i). Prisene i grafen er avrundet til nærmeste 1000 kr.
Lignende boliger til salgs


Innholdsrik enebolig på hjørnetomt | Midt i hjertet av Tromsdalen | Romslig garasje med loft/ arbeidsrom |

FLOTT FAMILIEBOLIG MED TO UTLEIEDELER | Dobbelgarasje | Fantastiske sol- og utsiktsforhold | Innerst i blindvei

Stor og svært innholdsrik bolig i landlige omgivelser | 4 soverom i hoveddel | 2 bad | mulighet for leieinntekter

Isrenna - Praktisk enebolig med garasje, utsikt, 3 soverom, 2 stuer og 2 kjøkken. Moderniseringsbehov.

Lys og pen andelsleilighet over to plan | To soverom | Fine utsiktsforhold | Terrasse og balkong | Garasjeplass
Annonsene kan være mangelfulle i forhold til lovpålagt opplysningsplikt. Før bindende avtale inngås oppfordres interessenter til å innhente komplett informasjon fra meglerforetaket, selger eller utleier.
















































