Bildegalleri

Velkommen til Rathkes gate 9A, presentert av Henrik Munkvold v/EIE eiendomsmegling!
Solgt
Sofienberg / Grünerløkka
Lys & smakfull 2-roms med vinduer mot rolig bakgård - Moderne standard (2018) - Varmtvann inkl.- Ingen dok.avg.
Prisantydning4 600 000 kr
Nøkkelinfo
- Boligtype
- Leilighet
- Eieform
- Andel
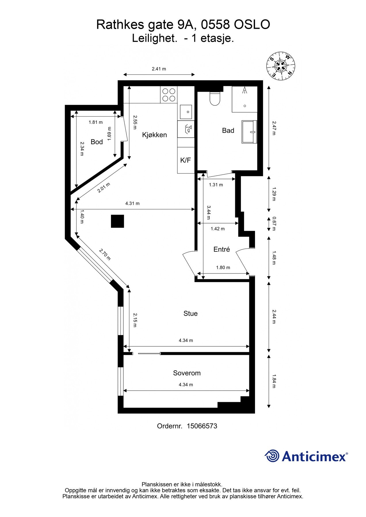
- Soverom
- 1
- Internt bruksareal
- 54 m² (BRA-i)
- Bruksareal
- 57 m²
- Eksternt bruksareal
- 3 m² (BRA-e)
- Etasje
- 1
- Byggeår
- 2018
- Energimerking
- C - Mørkegrønn
- Tomteareal
- 531 m² (eiet)
Fasiliteter
Kabel-TV
Alarm
Offentlig vann/kloakk
Parkett
Vaktmester-/vektertjeneste
Sentralt
Bredbåndstilknytning
Moderne
Rolig
Balansert ventilasjon
Om boligen
Velkommen til Rathkes gate 9A!
En smakfull og moderne 2-roms i bygård som ble renovert i 2018. Leiligheten ligger fint til i 1. etasje og har kun vinduer inn mot stille og skjermet bakgård. God og luftig planløsning med flere soner i oppholdsrom. Flytt rett inn!
Fantastisk beliggenhet i enveiskjørt gate nedenfor Sofienbergparken. Grünerløkka er kjent for sin unike sjarm, kreative energi og mangfoldige tilbud. Her finner du et rikt utvalg av koselige kaféer, anerkjente restauranter og spennende vinbarer, perfekt for enhver anledning. I nærområdet har du flere parker hvor du kan nyte late sommerdager eller en rolig spasertur året rundt.
Høydepunkter:
- Luftig planløsning
- Moderne standard fra 2018
- Bygg totalrenovert i 2018
- Skjermet 1. etg i indre gårdsrom
- Store tre-lags vinduer
- Rolig & sentral beliggenhet
- Kort vei til kollektiv transport
- Varmtvann & fyring inkludert i felleskostnader
- Ingen dok.avg eller forkjøpsrett
En smakfull og moderne 2-roms i bygård som ble renovert i 2018. Leiligheten ligger fint til i 1. etasje og har kun vinduer inn mot stille og skjermet bakgård. God og luftig planløsning med flere soner i oppholdsrom. Flytt rett inn!
Fantastisk beliggenhet i enveiskjørt gate nedenfor Sofienbergparken. Grünerløkka er kjent for sin unike sjarm, kreative energi og mangfoldige tilbud. Her finner du et rikt utvalg av koselige kaféer, anerkjente restauranter og spennende vinbarer, perfekt for enhver anledning. I nærområdet har du flere parker hvor du kan nyte late sommerdager eller en rolig spasertur året rundt.
Høydepunkter:
- Luftig planløsning
- Moderne standard fra 2018
- Bygg totalrenovert i 2018
- Skjermet 1. etg i indre gårdsrom
- Store tre-lags vinduer
- Rolig & sentral beliggenhet
- Kort vei til kollektiv transport
- Varmtvann & fyring inkludert i felleskostnader
- Ingen dok.avg eller forkjøpsrett
NB: Knappen for å vise hele beskrivelsen har kun en visuell effekt.
NB: Knappen for å vise hele beskrivelsen har kun en visuell effekt.
Salgsoppgaven beskriver vesentlig og lovpålagt informasjon om eiendommen
Se komplett salgsoppgaveNyttige lenker
Nærområdet
EIE eiendomsmegling Røa, Skøyen og Ullern
Annonseinformasjon
| FINN-kode | 393500621 |
|---|---|
| Sist endret | 26. juni 2025 11:48 |
| Referanse | 50250030 |
Annonsene kan være mangelfulle i forhold til lovpålagt opplysningsplikt. Før bindende avtale inngås oppfordres interessenter til å innhente komplett informasjon fra meglerforetaket, selger eller utleier.





































