Bildegalleri

Krogsveen v/Simen Grevskott har gleden av å presentere denne moderne og attraktive 3(4)-roms* toppleiligheten beliggende med to romslige balkonger
Solgt
Ensjø
Stilren og tiltalende 3(4)-roms* toppleilighet med to balkonger - Høy standard - Ettertraktet beliggenhet - Garasjeplass
Prisantydning5 950 000 kr
Nøkkelinfo
- Boligtype
- Leilighet
- Eieform
- Andel
- Soverom
- 2
- Internt bruksareal
- 87 m² (BRA-i)
- Bruksareal
- 93 m²
- Eksternt bruksareal
- 6 m² (BRA-e)
- Balkong/Terrasse
- 22 m² (TBA)
- Etasje
- 6
- Byggeår
- 2015
- Energimerking
- C - Mørkegrønn
- Rom
- 3
- Tomteareal
- 1 501 m² (eiet)
Fasiliteter
Balkong/Terrasse
Barnevennlig
Bredbåndstilknytning
Garasje/P-plass
Heis
Kjæledyr tillatt
Kabel-TV
Offentlig vann/kloakk
Parkett
Rolig
Sentralt
Balansert ventilasjon
Om boligen
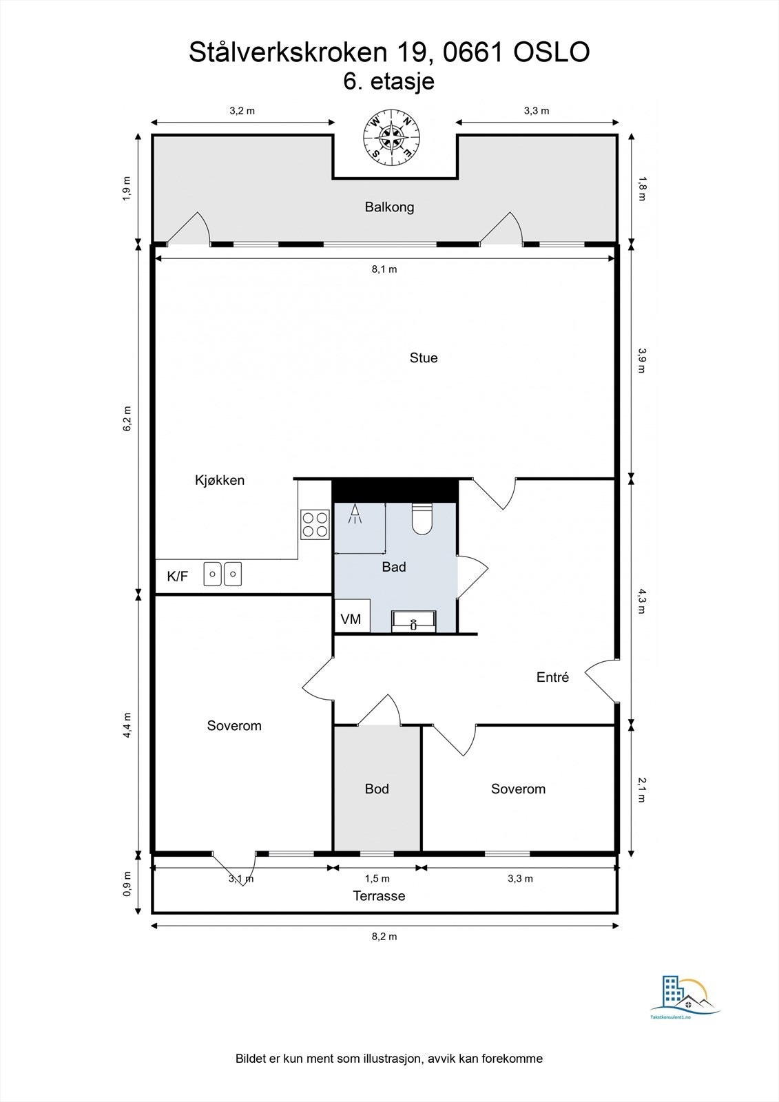
Krogsveen v/Simen Grevskott har gleden av å presentere denne moderne og attraktive 3(4)-roms* toppleiligheten beliggende i 6. etg med heis. Boligen har to romslige balkonger. Store vindusflater skaper en lys og luftig atmosfære. Boligen holder svært høy standard, noe som gjenspeiler seg i TG 1 på samtlige elementer i tilstandsrapporten. Denne vil du ikke gå glipp av!
Kvaliteter
Kvaliteter
- God planløsning med høy standard
- Innvendig bod med vindu og gode innredningsmuligheter
- To balkonger med morgen- og kveldssol
- Garasjeplass
- Felles takterrasse
- Fyring, Vv, TV og internett ink.
- IN-ordning
- Nærhet til offentlig kommunikasjon, servicetilbud og andre fasiliteter
*Rommet innredet som kontor er opprinnelig byggemeldt som bod og er ikke godkjent til varig opphold
NB: Knappen for å vise hele beskrivelsen har kun en visuell effekt.
NB: Knappen for å vise hele beskrivelsen har kun en visuell effekt.
Salgsoppgaven beskriver vesentlig og lovpålagt informasjon om eiendommen
Se komplett salgsoppgaveNyttige lenker
Nærområdet
Krogsveen Hasle
Verdien av en god megler.
Annonseinformasjon
| FINN-kode | 393488290 |
|---|---|
| Sist endret | 01. mars 2025 15:59 |
| Referanse | KR37.2541 |
Annonsene kan være mangelfulle i forhold til lovpålagt opplysningsplikt. Før bindende avtale inngås oppfordres interessenter til å innhente komplett informasjon fra meglerforetaket, selger eller utleier.















































