Bildegalleri

PrivatMegleren NyeBoliger Jessheim har gleden av å presentere Gardermovegen 36 - leilighet H0407!
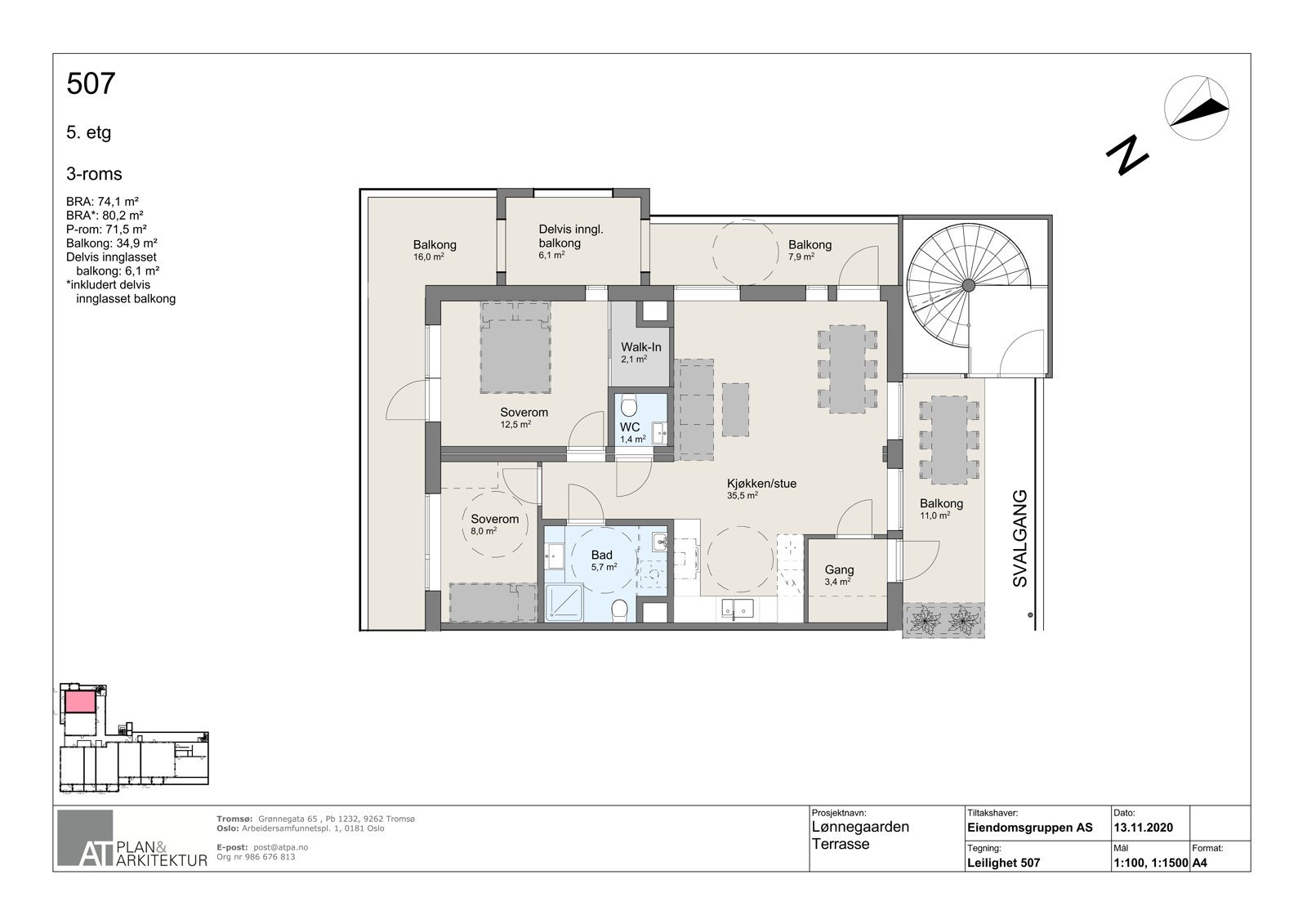
Lønnegaarden Terrasse
Nyoppført og ferdigstilt 3-roms endeleilighet - Garasjeplass - 4 balkonger (delvis innglasset) tot. 41 kvm
Prisantydning5 900 000 kr
Nøkkelinfo
- Boligtype
- Leilighet
- Eieform
- Eier (Selveier)
- Soverom
- 2
- Internt bruksareal
- 74 m² (BRA-i)
- Bruksareal
- 79 m²
- Eksternt bruksareal
- 5 m² (BRA-e)
- Balkong/Terrasse
- 41 m² (TBA)
- Etasje
- 4
- Byggeår
- 2023
- Rom
- 3
- Tomteareal
- 2 363 m² (eiet)
Fasiliteter
Balkong/Terrasse
Heis
Kabel-TV
Garasje/P-plass
Utsikt
Bredbåndstilknytning
Visning
Alle våre visninger har påmelding. På denne måten sikrer vi at megler har god oversikt og tid til å imøtekomme alle interessenter på beste måte. Dette er veldig verdifullt for boligkjøpere og for oss. Det er enkelt å melde seg på, og du kan like enkelt melde deg av.
Kontakt også gjerne megler i forkant av visning dersom du har spørsmål.
VisningspåmeldingOm boligen
Lys og innbydende 3-roms selveier endeleilighet med høy standard beliggende i nyoppført bygg fra 2023! Leiligheten har store vinduer, samt en lys og romslig planløsning. Inneholder en stilren kjøkkenløsning, delikat flislagt bad, separat toalett, 2 gode soverom, garderoberom samt en stor og innbydende stue. Bod på 5 kvm
Kort fortalt:
- Høy standard
- Garasjeplass medfølger (verdi kr. 350 000,-)
- 3 balkonger på til sammen 35 kvm
- 1 delvis innglasset balkong på 6,1 kvm
- Lave felleskostnader
- Akonto varmtvann og oppvarming
- Stilrent kjøkken
- Pent flislagt bad
- Vannbåren varme i gulv
- Balansert ventilasjon
- Stor felles takterrasse med utsikt
- Felles drivhus i indre gårdsrom
- Felles besøksleilighet til gjester
- Felles forsamlingsrom med kjøkken og WC
- Sykkelparkering
- Kort vei til Jessheim sentrum med alle fasiliteter
Velkommen!
NB: Knappen for å vise hele beskrivelsen har kun en visuell effekt.
NB: Knappen for å vise hele beskrivelsen har kun en visuell effekt.
Salgsoppgaven beskriver vesentlig og lovpålagt informasjon om eiendommen
Se komplett salgsoppgaveNyttige lenker
Nærområdet
Privatmegleren Nye boliger Jessheim
Kun det beste på dine vegne
Annonseinformasjon
| FINN-kode | 393200524 |
|---|---|
| Sist endret | 08. mai 2025 00:10 |
| Referanse | 123220024 |
Annonsene kan være mangelfulle i forhold til lovpålagt opplysningsplikt. Før bindende avtale inngås oppfordres interessenter til å innhente komplett informasjon fra meglerforetaket, selger eller utleier.























