Bildegalleri

Velkommen til Heimdals gate 5 - en flott 2-romsleilighet i øverste etasje!
Moderne og sentrumsnær leilighet i 8.etasje - baderom fra 2023 - utsikt - heis - innglasset balkong - nær NTNU!
Prisantydning2 600 000 kr
Nøkkelinfo
- Boligtype
- Leilighet
- Eieform
- Andel
- Soverom
- 1
- Internt bruksareal
- 59 m² (BRA-i)
- Bruksareal
- 73 m²
- Eksternt bruksareal
- 8 m² (BRA-e)
- Innglasset balkong
- 6 m² (BRA-b)
- Etasje
- 8
- Byggeår
- 1970
- Energimerking
- E - Rød
- Rom
- 2
- Tomteareal
- 3 048 m² (eiet)
Fasiliteter
Balkong/Terrasse
Bredbåndstilknytning
Garasje/P-plass
Heis
Ingen gjenboere
Offentlig vann/kloakk
Sentralt
Utsikt
Visning
Ønsker du å delta på visningen ber vi deg melde deg på slik at vi vet at du kommer. Da kan vi bistå alle best mulig og gi deg tiden du trenger på visningen. Visningen avholdes bare dersom det er påmeldte senest kl: 12.00 på visningsdagen. Ta gjerne kontakt med megler før visning hvis du har noen spørsmål. Velkommen!
VisningspåmeldingOm boligen
Velkommen til visning i Heimdals gate 5.
En moderne 2-roms leilighet i Briskebakken borettslag med nærhet og gangavstand til Gjøvik sentrum.
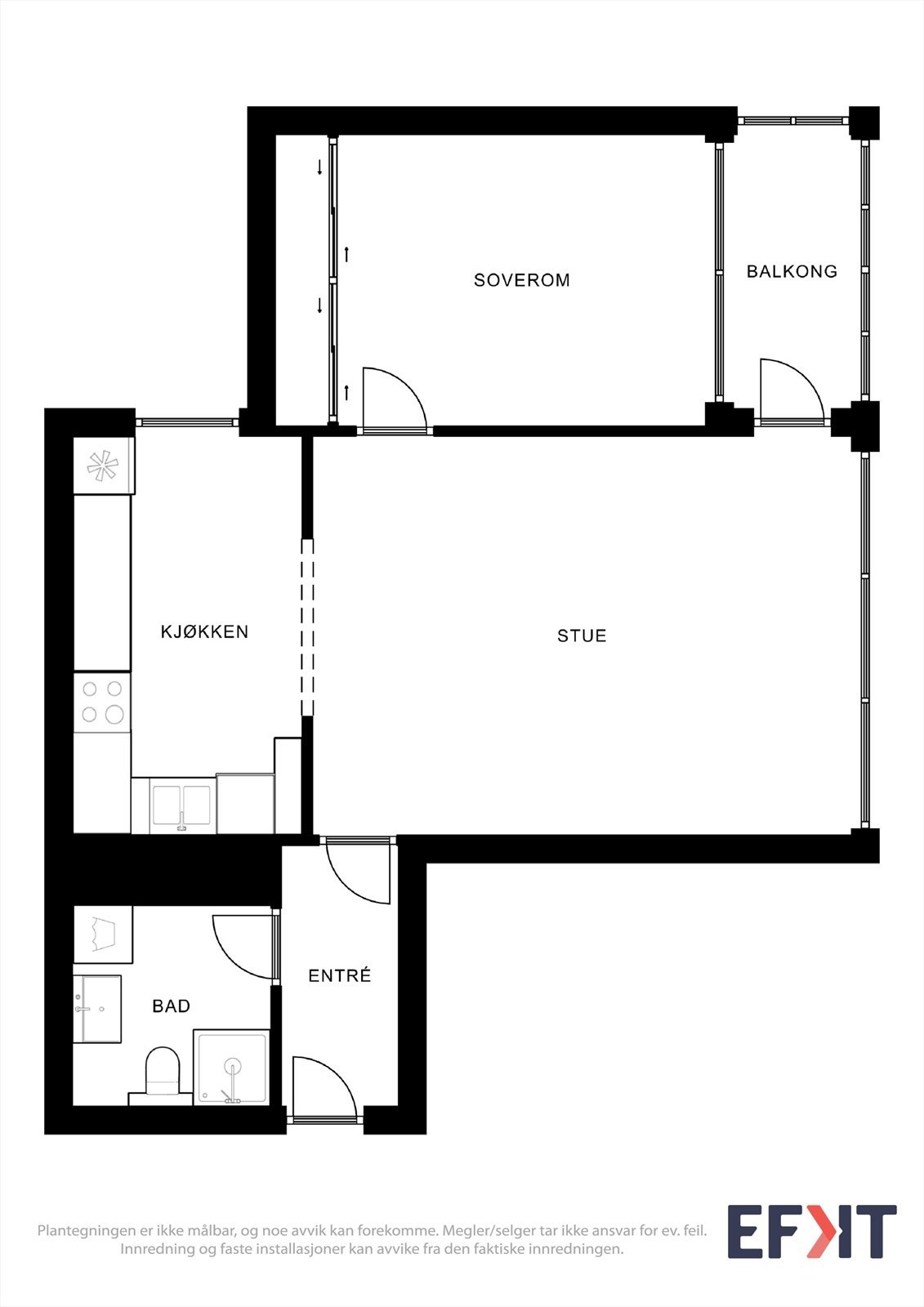
Leiligheten ligger i byggets øverste etasje og inneholder entré, ett soverom, baderom fra 2023, kjøkken og stue med adkomst til innglasset balkong. Bod i kjeller.
Høyskolemiljøet på NTNU er i nærheten.
Fjellhallen og Røverdalen ligger rett nedenfor. Samtidig er det fine friluftsmuligheter med kort avstand til Fastland.
En moderne 2-roms leilighet i Briskebakken borettslag med nærhet og gangavstand til Gjøvik sentrum.
Leiligheten ligger i byggets øverste etasje og inneholder entré, ett soverom, baderom fra 2023, kjøkken og stue med adkomst til innglasset balkong. Bod i kjeller.
Høyskolemiljøet på NTNU er i nærheten.
Fjellhallen og Røverdalen ligger rett nedenfor. Samtidig er det fine friluftsmuligheter med kort avstand til Fastland.
NB: Knappen for å vise hele beskrivelsen har kun en visuell effekt.
NB: Knappen for å vise hele beskrivelsen har kun en visuell effekt.
Salgsoppgaven beskriver vesentlig og lovpålagt informasjon om eiendommen
Se komplett salgsoppgaveNyttige lenker
Nærområdet
Eiendomsmegler 1 Gjøvik
Vi loser deg trygt gjennom hele boligsalget
Annonseinformasjon
| FINN-kode | 393178461 |
|---|---|
| Sist endret | 22. jan. 2026 12:45 |
| Referanse | 6017260035 |
Annonsene kan være mangelfulle i forhold til lovpålagt opplysningsplikt. Før bindende avtale inngås oppfordres interessenter til å innhente komplett informasjon fra meglerforetaket, selger eller utleier.
























