Bildegalleri

Velkommen til Nordleiret og Sven Morens veg 11C!
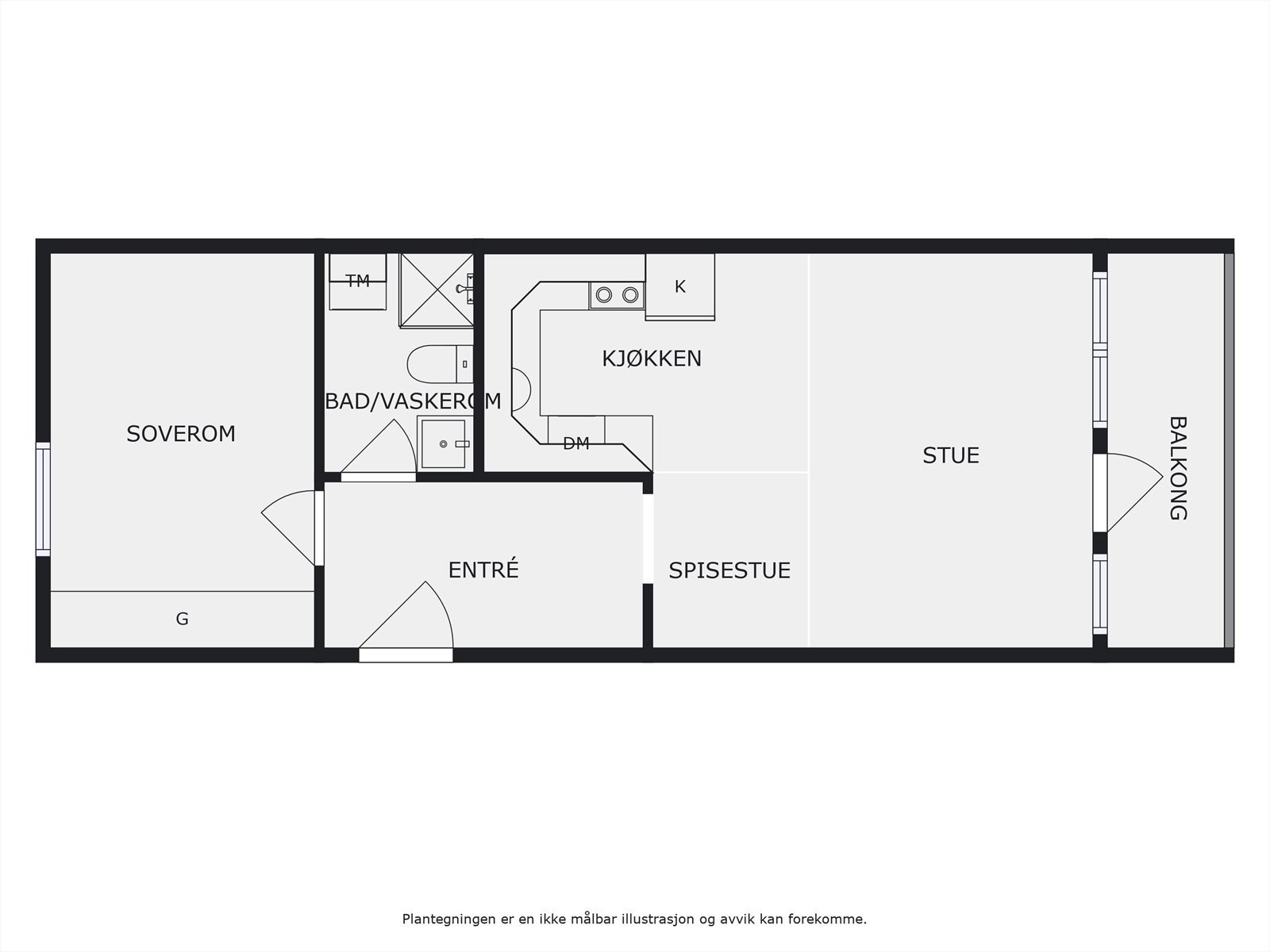
Pen, lettstelt og meget sentralt beliggende 2-roms leilighet i høy 1.etasje. Nytt bad i 2023. Solrik vestvendt balkong.
Prisantydning1 550 000 kr
Nøkkelinfo
- Boligtype
- Leilighet
- Eieform
- Andel
- Soverom
- 1
- Internt bruksareal
- 46 m² (BRA-i)
- Bruksareal
- 50 m²
- Eksternt bruksareal
- 4 m² (BRA-e)
- Balkong/Terrasse
- 5 m² (TBA)
- Etasje
- 1
- Byggeår
- 1965
- Rom
- 2
- Tomteareal
- 2 394 m² (eiet)
Fasiliteter
Balkong/Terrasse
Barnevennlig
Garasje/P-plass
Offentlig vann/kloakk
Rolig
Sentralt
Vaktmester-/vektertjeneste
Turterreng
Om boligen
Velkommen til Nordleiret og Sven Morens veg 11 C!
En lys, moderne og lettstelt 2-roms andelsleilighet med sentral beliggenhet. Leiligheten som ligger i byggets 1.etasje har en godt utnyttet planløsning og en solrik vestvendt balkong på ca. 5 kvm. Badet ble pusset opp i 2023 og leiligheten for øvrig er malt i fine, lyse farger. Åpen stue/kjøkkenløsning, med kjøkkeninnredning fra 2020. Stort soverom med integrerte garderobeskap. Privat bod i felles kjeller. Mulighet for garasjeleie etter ventelisteprinsippet. Felles el-billader for hele borettslaget.
Leiligheten ligger et steinkast fra Elverum sentrum, med alt av byfasiliteter som torget, kjøpesentre, matbutikker og restauranter. Kort vei også til Glomma, Sagtjernet og fine turområder i Stavåsen.
En lys, moderne og lettstelt 2-roms andelsleilighet med sentral beliggenhet. Leiligheten som ligger i byggets 1.etasje har en godt utnyttet planløsning og en solrik vestvendt balkong på ca. 5 kvm. Badet ble pusset opp i 2023 og leiligheten for øvrig er malt i fine, lyse farger. Åpen stue/kjøkkenløsning, med kjøkkeninnredning fra 2020. Stort soverom med integrerte garderobeskap. Privat bod i felles kjeller. Mulighet for garasjeleie etter ventelisteprinsippet. Felles el-billader for hele borettslaget.
Leiligheten ligger et steinkast fra Elverum sentrum, med alt av byfasiliteter som torget, kjøpesentre, matbutikker og restauranter. Kort vei også til Glomma, Sagtjernet og fine turområder i Stavåsen.
NB: Knappen for å vise hele beskrivelsen har kun en visuell effekt.
NB: Knappen for å vise hele beskrivelsen har kun en visuell effekt.
Salgsoppgaven beskriver vesentlig og lovpålagt informasjon om eiendommen
Se komplett salgsoppgaveNærområdet
Aktiv Innlandet
Annonseinformasjon
| FINN-kode | 393012826 |
|---|---|
| Sist endret | 13. jan. 2026 13:18 |
| Referanse | 1211240470 |
Annonsene kan være mangelfulle i forhold til lovpålagt opplysningsplikt. Før bindende avtale inngås oppfordres interessenter til å innhente komplett informasjon fra meglerforetaket, selger eller utleier.






















