Bildegalleri

Velkommen til Stensgata 4A! Dette er en klassisk og stilren 3-roms leilighet med en rolig og idyllisk beliggenhet på Adamstuen, like ved Stensparken. Her bor du i et fredelig og naturskjønt område, samtidig som du har byens fasiliteter like i nærheten.
Solgt
ADAMSTUEN
Klassisk og stilren 3-R m/vestvendt balkong | Oppusset i 2017 | Originale stukkatur og rosetter | Stensparken som nabo
Prisantydning7 650 000 kr
Nøkkelinfo
- Boligtype
- Leilighet
- Eieform
- Selveier
- Soverom
- 2
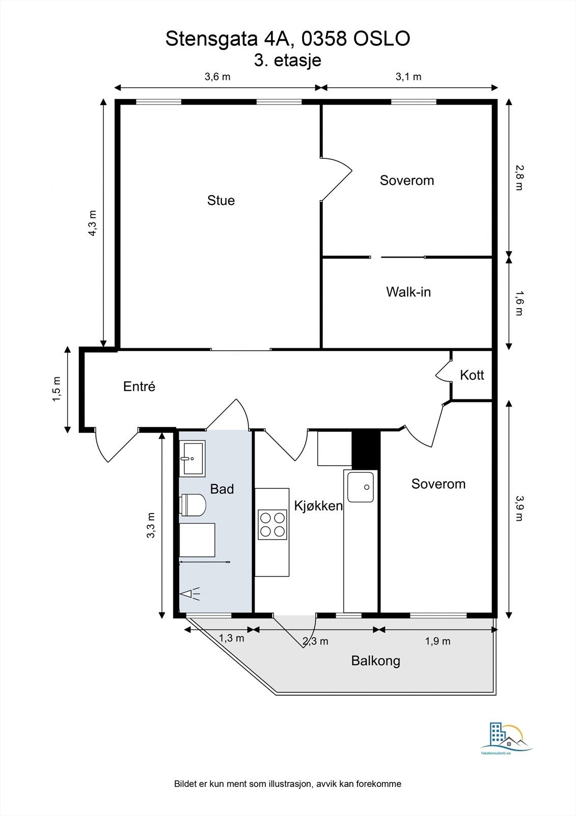
- Internt bruksareal
- 63 m² (BRA-i)
- Bruksareal
- 70 m²
- Eksternt bruksareal
- 7 m² (BRA-e)
- Balkong/Terrasse
- 6 m² (TBA)
- Etasje
- 3
- Byggeår
- 1895
- Energimerking
- F - Rød
- Rom
- 3
- Tomteareal
- 692 m² (eiet)
Fasiliteter
Balkong/Terrasse
Barnevennlig
Bredbåndstilknytning
Kjæledyr tillatt
Kabel-TV
Offentlig vann/kloakk
Parkett
Rolig
Sentralt
Turterreng
Om boligen
VELKOMMEN TIL STENSGATA 4A!
Leiligheten ligger rolig og idyllisk til på Adamstuen, med Stensparken som nærmeste nabo, og tilbyr en fredelig og naturskjønn beliggenhet.
Fremtredende kvaliteter:
- Innbydende 3-roms med godt utnyttet planløsning
- Vestvendt balkong på ca. 5,6 m² med sol fra ettermiddag til kveld
- Flere nøye gjennomførte oppgraderinger utført i 2017
- Bevarte originale detaljer som stukkatur og rosetter
- Generøs takhøyde og store vindusflater
- Karakteristisk original teglsteinsvegg i entré
- Lekker 1-stavs parkett
- Spesialbygd bokhylle i stue
- Klassisk bygård fra 1895 med sjarm og historisk preg
- Sentralt og barnevennlig område
- Kort vei til offentlig transport, som gir enkel tilgang til resten av byen
- Ettertraktet beliggenhet på Adamstuen
Leiligheten ligger rolig og idyllisk til på Adamstuen, med Stensparken som nærmeste nabo, og tilbyr en fredelig og naturskjønn beliggenhet.
Fremtredende kvaliteter:
- Innbydende 3-roms med godt utnyttet planløsning
- Vestvendt balkong på ca. 5,6 m² med sol fra ettermiddag til kveld
- Flere nøye gjennomførte oppgraderinger utført i 2017
- Bevarte originale detaljer som stukkatur og rosetter
- Generøs takhøyde og store vindusflater
- Karakteristisk original teglsteinsvegg i entré
- Lekker 1-stavs parkett
- Spesialbygd bokhylle i stue
- Klassisk bygård fra 1895 med sjarm og historisk preg
- Sentralt og barnevennlig område
- Kort vei til offentlig transport, som gir enkel tilgang til resten av byen
- Ettertraktet beliggenhet på Adamstuen
NB: Knappen for å vise hele beskrivelsen har kun en visuell effekt.
NB: Knappen for å vise hele beskrivelsen har kun en visuell effekt.
Salgsoppgaven beskriver vesentlig og lovpålagt informasjon om eiendommen
Se komplett salgsoppgaveNyttige lenker
Nærområdet
Nordvik Nydalen
Annonseinformasjon
| FINN-kode | 392730834 |
|---|---|
| Sist endret | 19. juni 2025 11:50 |
| Referanse | 20-0039/25 |
Annonsene kan være mangelfulle i forhold til lovpålagt opplysningsplikt. Før bindende avtale inngås oppfordres interessenter til å innhente komplett informasjon fra meglerforetaket, selger eller utleier.















































