Bildegalleri

Sisilie Berg v/Nordvik Frogner har gleden av å presentere Magnus Bergs gate7. En attraktivt beliggende 3-roms med balkong, heis og garasjeplass.
Solgt
Frogner
Lys og gjennomgående 3-roms selveier med ettertraktet beliggenhet - Balkong - Garasje - Heis - V.vann og fyring inkl.
Prisantydning7 500 000 kr
Nøkkelinfo
- Boligtype
- Leilighet
- Eieform
- Eier (Selveier)
- Soverom
- 2
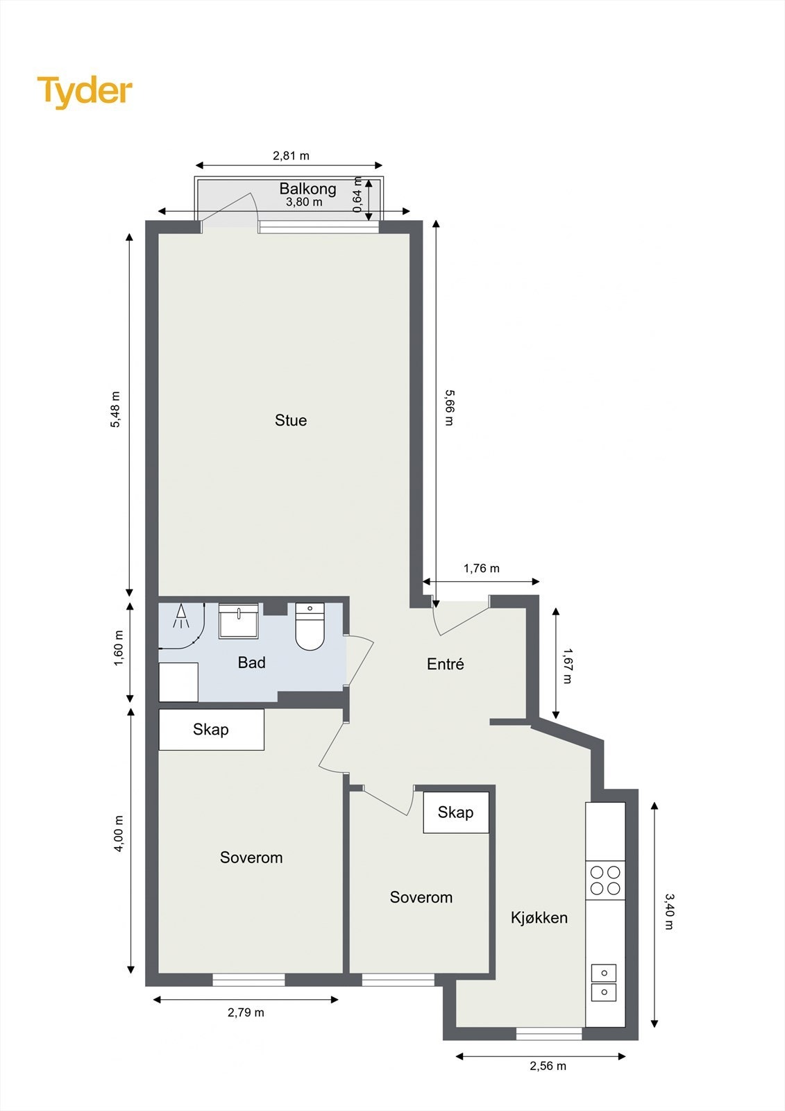
- Internt bruksareal
- 60 m² (BRA-i)
- Bruksareal
- 62 m²
- Eksternt bruksareal
- 2 m² (BRA-e)
- Balkong/Terrasse
- 2 m² (TBA)
- Etasje
- 3
- Byggeår
- 1955
- Energimerking
- F - Mørkegrønn
- Rom
- 3
- Tomteareal
- 457 m² (eiet)
Fasiliteter
Balkong/Terrasse
Barnevennlig
Fellesvaskeri
Garasje/P-plass
Heis
Kabel-TV
Offentlig vann/kloakk
Parkett
Rolig
Sentralt
Turterreng
Om boligen
Velkommen til Magnus Bergs gate 7. Denne lyse og gjennomgående 3-roms leiligheten har en flott beliggenhet på attraktive Frogner. Leiligheten er godt vedlikeholdt, men trenger noe modernisering for å få et mer tidsriktig preg. Med umiddelbar nærhet til alt du trenger i hverdagen, tilbyr denne boligen en perfekt kombinasjon av sentral beliggenhet og rolig atmosfære i et sjarmerende og svært ettertraktet nabolag.
- Heis
- Romslig baderom
- To disponible boder
- Balkong på ca. 2 kvm
- Varmtvann og fyring inkl.
- God takhøyde på ca. 2,51m i stuen
- Bruksrett til garasjeplass i bakgården
- Stue med god takhøyde og store vindusflater
- En rekke restauranter, caféer og butikker i nærområdet
- Umiddelbar nærhet til Frognerparken og offentlig kommunikasjon
NB: Knappen for å vise hele beskrivelsen har kun en visuell effekt.
NB: Knappen for å vise hele beskrivelsen har kun en visuell effekt.
Salgsoppgaven beskriver vesentlig og lovpålagt informasjon om eiendommen
Se komplett salgsoppgaveNyttige lenker
Nærområdet
Nordvik Frogner
Annonseinformasjon
| FINN-kode | 392437862 |
|---|---|
| Sist endret | 20. feb. 2025 12:04 |
| Referanse | 14-0049/25 |
Annonsene kan være mangelfulle i forhold til lovpålagt opplysningsplikt. Før bindende avtale inngås oppfordres interessenter til å innhente komplett informasjon fra meglerforetaket, selger eller utleier.




































