Bildegalleri

Velkommen til Freserveien 47 - Presentert av Line Johansson v/EIE eiendomsmegling
Solgt
Gjennomgående og pen 4-roms selveier | To balkonger | Garasjeplass | V.v/fyring og Tv/bredbånd inkl I Sentralt | Heis
Prisantydning6 700 000 kr
Nøkkelinfo
- Boligtype
- Leilighet
- Eieform
- Selveier
- Soverom
- 3
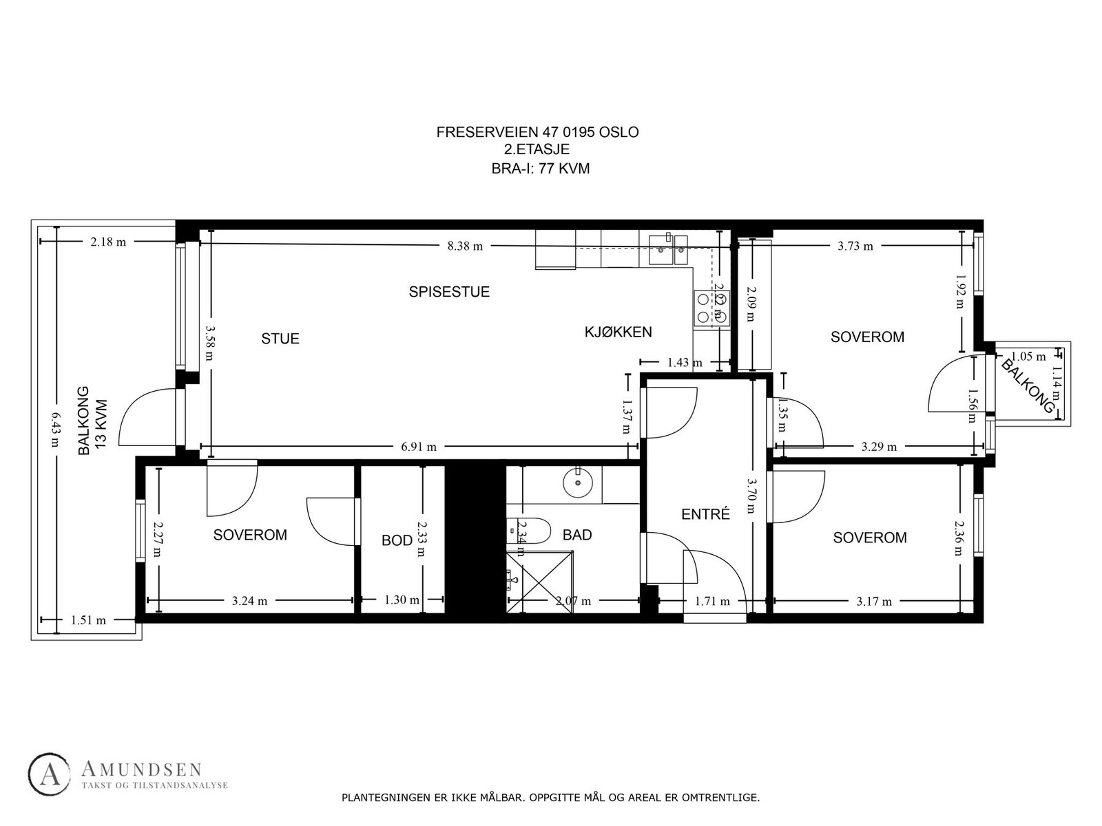
- Internt bruksareal
- 77 m² (BRA-i)
- Bruksareal
- 83 m²
- Eksternt bruksareal
- 6 m² (BRA-e)
- Balkong/Terrasse
- 14 m² (TBA)
- Etasje
- 2
- Byggeår
- 2016
- Energimerking
- B - Mørkegrønn
- Rom
- 4
- Tomteareal
- 8 952 m² (eiet)
Fasiliteter
Barnevennlig
Balkong/Terrasse
Garasje/P-plass
Kabel-TV
Heis
Offentlig vann/kloakk
Parkett
Turterreng
Utsikt
Vaktmester-/vektertjeneste
Sentralt
Bredbåndstilknytning
Moderne
Rolig
Balansert ventilasjon
Om boligen
Velkommen til Freserveien 47 - Presentert av Line S. Johansson v/Eie Eiendomsmegling. Leiligheten er en attraktiv og gjennomgående 4-roms selveierleilighet i 2.etasje med heis. Boligen er beliggende i en urban bydel med alt du trenger rett i nærheten. Leiligheten er ny fra 2016 og har tidsriktige overflater, innredning og utstyr deretter. Planløsningen og den gode standarden i rommene gjør det enkelt å innrede etter eget ønske og behov. Her kan du flytte rett inn.
Kvaliteter:
- Romslig 4-roms med to balkonger.
- Garasjeplass felles garasjeanlegg.
- Leiligheten har meget god intern beliggenhet.
- Gjennomgående planløsning
- Hyggelig utsyn over pent opparbeidet fellesområde og meget gode sol- og lysforhold.
- Heisadkomst.
- Bod i kjeller på ca. 6kvm.
- A-konto fyring og varmtvann inkludert i felleskostnader.
- Kabel-tv og bredbånd inkludert i felleskostnader.
- Balansert ventilasjon.
- Perfekt utleieobjekt.
- Kort vei til "alt".
Kvaliteter:
- Romslig 4-roms med to balkonger.
- Garasjeplass felles garasjeanlegg.
- Leiligheten har meget god intern beliggenhet.
- Gjennomgående planløsning
- Hyggelig utsyn over pent opparbeidet fellesområde og meget gode sol- og lysforhold.
- Heisadkomst.
- Bod i kjeller på ca. 6kvm.
- A-konto fyring og varmtvann inkludert i felleskostnader.
- Kabel-tv og bredbånd inkludert i felleskostnader.
- Balansert ventilasjon.
- Perfekt utleieobjekt.
- Kort vei til "alt".
NB: Knappen for å vise hele beskrivelsen har kun en visuell effekt.
NB: Knappen for å vise hele beskrivelsen har kun en visuell effekt.
Salgsoppgaven beskriver vesentlig og lovpålagt informasjon om eiendommen
Se komplett salgsoppgaveNyttige lenker
Nærområdet
EIE eiendomsmegling Ensjø
Annonseinformasjon
| FINN-kode | 392273381 |
|---|---|
| Sist endret | 13. nov. 2025 09:51 |
| Referanse | 91241009 |
Annonsene kan være mangelfulle i forhold til lovpålagt opplysningsplikt. Før bindende avtale inngås oppfordres interessenter til å innhente komplett informasjon fra meglerforetaket, selger eller utleier.









































