Bildegalleri

På vegne av eier og Eiendomsmegler 1 I Z-eiendom ved eiendomsmegler Jesper Snekkestad ønskes du velkommen.
Vear/Tønsberg
Omfattende modernisert enebolig I Vestvendt & sen kveldssol I Rolig og barnevennlig I Svært sentralt!
Prisantydning4 850 000 kr
Nøkkelinfo
- Boligtype
- Enebolig
- Eieform
- Eier (Selveier)
- Soverom
- 3
- Internt bruksareal
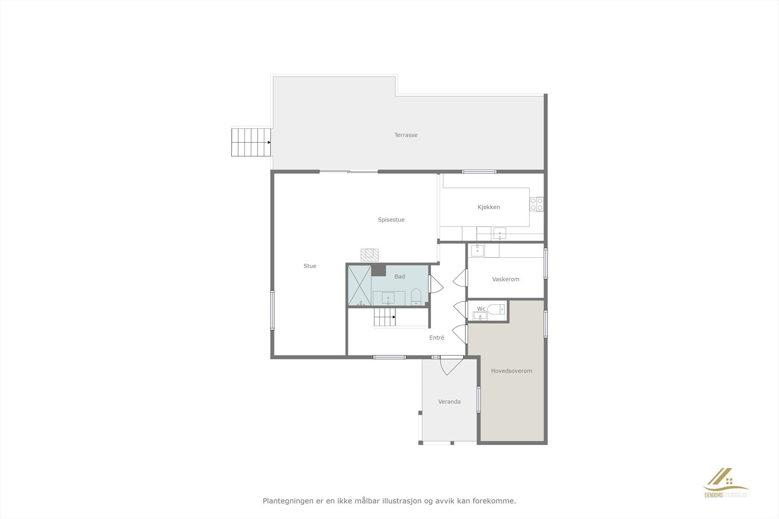
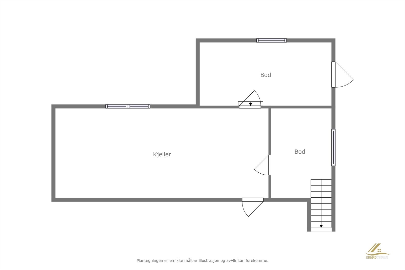
- 169 m² (BRA-i)
- Bruksareal
- 169 m²
- Balkong/Terrasse
- 37 m² (TBA)
- Byggeår
- 1955
- Tomteareal
- 708 m² (eiet)
Fasiliteter
Balkong/Terrasse
Barnevennlig
Bredbåndstilknytning
Kabel-TV
Offentlig vann/kloakk
Peis/Ildsted
Rolig
Sentralt
Turterreng
Om boligen
Velkommen til Liaveien 12b og denne omfattende oppussede eneboligen sentralt, solrikt og fredelig beliggende på attraktive Vear. Huset ligger i kort avstand fra Vestfjorden, avskjermet på en solrik selveiertomt.
Innen gangavstand ligger Rakkevik småbåthavn, badeplasser og turstier langs sjøen. Eiendommen ligger samtidig innen gangavstand til skoler, barnehager, idrettsanlegg og enkelte forretninger på Vear.
Huset er innvendig nærmest totaloppusset i 1. og 2. etasje i perioden 2022 til 2024. I samme periode er det utvendig blant annet lagt ny takstein, installert nye vinduer i 1. og 2. etasje og huset er utvendig nymalt.
Innen gangavstand ligger Rakkevik småbåthavn, badeplasser og turstier langs sjøen. Eiendommen ligger samtidig innen gangavstand til skoler, barnehager, idrettsanlegg og enkelte forretninger på Vear.
Huset er innvendig nærmest totaloppusset i 1. og 2. etasje i perioden 2022 til 2024. I samme periode er det utvendig blant annet lagt ny takstein, installert nye vinduer i 1. og 2. etasje og huset er utvendig nymalt.
NB: Knappen for å vise hele beskrivelsen har kun en visuell effekt.
NB: Knappen for å vise hele beskrivelsen har kun en visuell effekt.
Salgsoppgaven beskriver vesentlig og lovpålagt informasjon om eiendommen
Se komplett salgsoppgaveNyttige lenker
Nærområdet
EiendomsMegler 1 Tønsberg
En del av Sparebank 1 Sør-Norge
Annonseinformasjon
| FINN-kode | 392271332 |
|---|---|
| Sist endret | 17. des. 2025 08:31 |
| Referanse | 2871250033 |
Annonsene kan være mangelfulle i forhold til lovpålagt opplysningsplikt. Før bindende avtale inngås oppfordres interessenter til å innhente komplett informasjon fra meglerforetaket, selger eller utleier.















































































