Bildegalleri

Torbjørn Skjelde v/Nordvik Majorstuen har gleden av å presentere Herslebs gate 17B.
Solgt
Moderne og lys 3-roms leilighet med sydvendt balkong, garasjeplass*, heis og felles takterrasse. Oppvarming inkludert
Prisantydning7 050 000 kr
Nøkkelinfo
- Boligtype
- Leilighet
- Eieform
- Eier (Selveier)
- Soverom
- 2
- Internt bruksareal
- 75 m² (BRA-i)
- Bruksareal
- 81 m²
- Eksternt bruksareal
- 6 m² (BRA-e)
- Balkong/Terrasse
- 8 m² (TBA)
- Etasje
- 4
- Byggeår
- 2007
- Energimerking
- C - Mørkegrønn
- Rom
- 3
- Tomteareal
- 2 413 m² (eiet)
Fasiliteter
Takterrasse
Balkong/Terrasse
Bredbåndstilknytning
Garasje/P-plass
Heis
Kabel-TV
Parkett
Sentralt
Utsikt
Vaktmester-/vektertjeneste
Turterreng
Lademulighet
Om boligen
Torbjørn Skjelde v/Nordvik Majorstuen har gleden av å presentere Herslebs gate 17B.
Dette er en lekker og romslig 3-roms leilighet med gulv, nymalte vegger og ny belysning fra 2022. Leiligheten ligger attraktivt plassert i et nyere og veletablert sameie på Wexels Plass med kort vei til alt av servicetilbud og kollektivtransport.
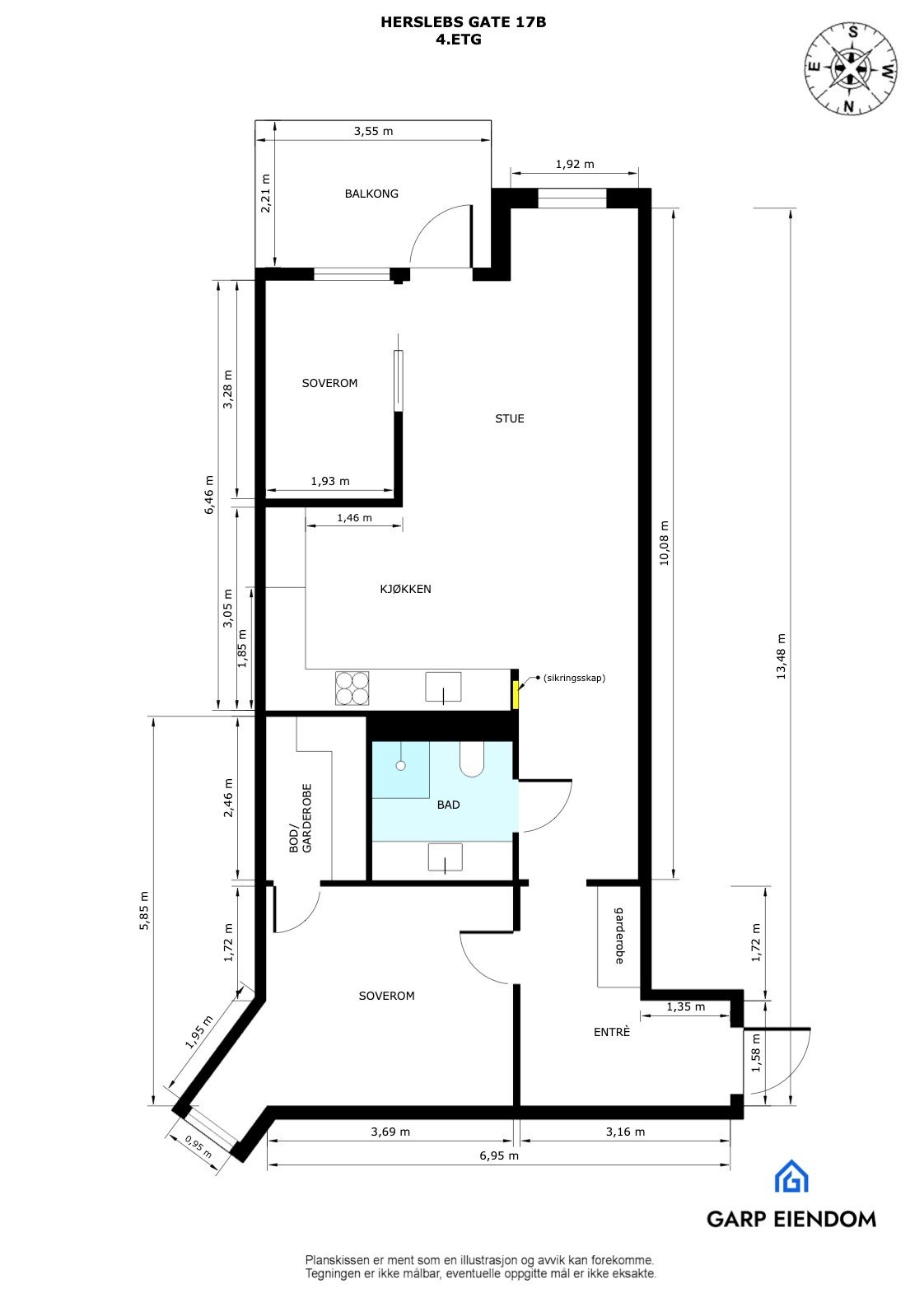
Planløsningen er optimal og består av entré, stue/kjøkken, to soverom og bad. Fra stuen er det utgang til sydvendt balkong med gode solforhold.
Følgende er verdt å fremheve:
- Felles takterrasse
- Praktisk planløsning med to soverom og walk in closet
- Stilrent kjøkken pusset opp i 2022
- Varmtvann, fyring og Tv/nett inkludert i felleskostnad
- Garasjeplass med lader kan kjøpes i tillegg for kr. 450 000
- Heisadkomst og bod i kjeller
- 3 min til buss/trikk
Dette er en lekker og romslig 3-roms leilighet med gulv, nymalte vegger og ny belysning fra 2022. Leiligheten ligger attraktivt plassert i et nyere og veletablert sameie på Wexels Plass med kort vei til alt av servicetilbud og kollektivtransport.
Planløsningen er optimal og består av entré, stue/kjøkken, to soverom og bad. Fra stuen er det utgang til sydvendt balkong med gode solforhold.
Følgende er verdt å fremheve:
- Felles takterrasse
- Praktisk planløsning med to soverom og walk in closet
- Stilrent kjøkken pusset opp i 2022
- Varmtvann, fyring og Tv/nett inkludert i felleskostnad
- Garasjeplass med lader kan kjøpes i tillegg for kr. 450 000
- Heisadkomst og bod i kjeller
- 3 min til buss/trikk
NB: Knappen for å vise hele beskrivelsen har kun en visuell effekt.
NB: Knappen for å vise hele beskrivelsen har kun en visuell effekt.
Salgsoppgaven beskriver vesentlig og lovpålagt informasjon om eiendommen
Se komplett salgsoppgaveNyttige lenker
Nærområdet
Nordvik Majorstuen
Annonseinformasjon
| FINN-kode | 392260947 |
|---|---|
| Sist endret | 19. juni 2025 08:40 |
| Referanse | 8-0013/25 |
Annonsene kan være mangelfulle i forhold til lovpålagt opplysningsplikt. Før bindende avtale inngås oppfordres interessenter til å innhente komplett informasjon fra meglerforetaket, selger eller utleier.






























