Bildegalleri

Sørmegleren ved Henrik Lossius ønsker deg velkommen til Dronningens gate 48!
Solgt
Kvadraturen
Flott 2-roms leilighet(2019) med en gjennomgående standard. Balkong. Heistilgang. Stor felles takterrasse.
Prisantydning3 590 000 kr
Nøkkelinfo
- Boligtype
- Leilighet
- Eieform
- Eier (Selveier)
- Soverom
- 1
- Internt bruksareal
- 46 m² (BRA-i)
- Bruksareal
- 51 m²
- Eksternt bruksareal
- 5 m² (BRA-e)
- Balkong/Terrasse
- 6 m² (TBA)
- Etasje
- 4
- Byggeår
- 2019
- Energimerking
- B - Gul
- Tomteareal
- 699 m² (eiet)
Fasiliteter
Balkong/Terrasse
Heis
Parkett
Sentralt
Balansert ventilasjon
Om boligen
Sørmegleren ved Henrik Lossius ønsker deg velkommen til Dronningens gate 48B!
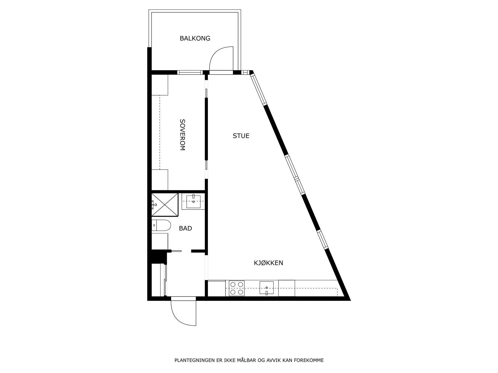
Dette er en innbydende 2-roms leilighet med en beliggenhet midt i sentrum. Leiligheten ligger i byggets 4.etasje med heistilgang.
Du kommer inn i en gang/entré med skyvedørsgarderobe til oppbevaring. Vider inn til en lys og fin stue/kjøkkendel. Malte flater og parkett på gulv. Stue med plass til sofagruppe og spisebord. Utgang til balkong fra stue. Praktisk åpen stue/kjøkkenløsning. Flott Strai kjøkken med integrerte hvitevarer som kjøleskap, komfyr og oppvaskmaskin. Soverom med to innganger fra stue. Praktisk oppbevaringsløsning på soverom. Pent flislagt bad med dusjhjørne, servant, wc og opplegg for vaskemaskin. Vannbåren gulvvarme i bad og stue/kjøkken. Stor felles takterrasse. Bod i kjeller.
Velkommen!
Dette er en innbydende 2-roms leilighet med en beliggenhet midt i sentrum. Leiligheten ligger i byggets 4.etasje med heistilgang.
Du kommer inn i en gang/entré med skyvedørsgarderobe til oppbevaring. Vider inn til en lys og fin stue/kjøkkendel. Malte flater og parkett på gulv. Stue med plass til sofagruppe og spisebord. Utgang til balkong fra stue. Praktisk åpen stue/kjøkkenløsning. Flott Strai kjøkken med integrerte hvitevarer som kjøleskap, komfyr og oppvaskmaskin. Soverom med to innganger fra stue. Praktisk oppbevaringsløsning på soverom. Pent flislagt bad med dusjhjørne, servant, wc og opplegg for vaskemaskin. Vannbåren gulvvarme i bad og stue/kjøkken. Stor felles takterrasse. Bod i kjeller.
Velkommen!
NB: Knappen for å vise hele beskrivelsen har kun en visuell effekt.
NB: Knappen for å vise hele beskrivelsen har kun en visuell effekt.
Salgsoppgaven beskriver vesentlig og lovpålagt informasjon om eiendommen
Se komplett salgsoppgaveNyttige lenker
Nærområdet
Eiendomsmegler Norge Kristiansand
Best der du bor
Annonseinformasjon
| FINN-kode | 391950398 |
|---|---|
| Sist endret | 13. mai 2025 13:20 |
| Referanse | SORM11.251 |
Annonsene kan være mangelfulle i forhold til lovpålagt opplysningsplikt. Før bindende avtale inngås oppfordres interessenter til å innhente komplett informasjon fra meglerforetaket, selger eller utleier.





























