Bildegalleri

Velkommen til Strandgata 10!
Solgt
Innbydende og koselig andelsleilighet - 2 soverom - innglasset veranda - utebod - parkeringskjeller - heis - sentralt i
Prisantydning2 690 000 kr
Nøkkelinfo
- Boligtype
- Leilighet
- Eieform
- Andel
- Soverom
- 2
- Internt bruksareal
- 77 m² (BRA-i)
- Bruksareal
- 101 m²
- Eksternt bruksareal
- 6 m² (BRA-e)
- Innglasset balkong
- 18 m² (BRA-b)
- Etasje
- 2
- Byggeår
- 2006
- Energimerking
- E - Rød
- Tomteareal
- 2 709 m² (eiet)
Om boligen
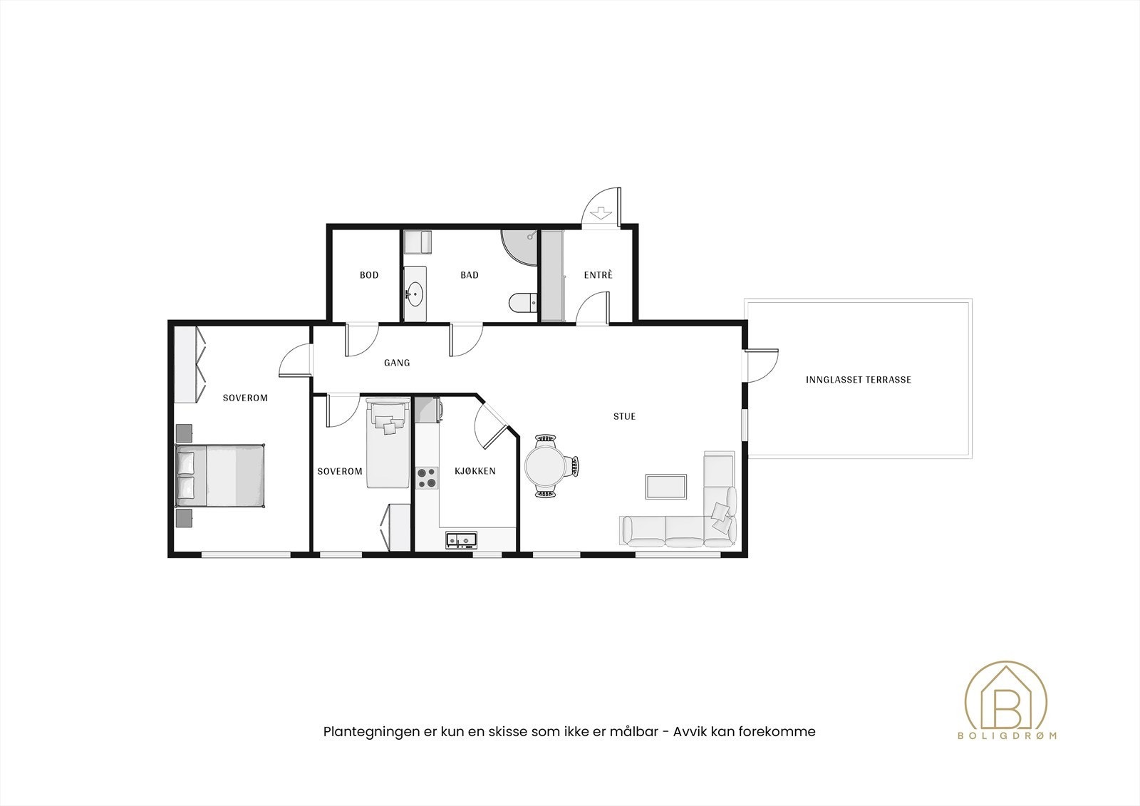
Koselig andelsleilighet i 2. etasje i Mustadhagen II Borettslag. Bygget har heis.
EIendommen har sentral beliggenhet i Gjøvik med gangavstand til alle byens fasiliteter.
Romslig stue som har plass til både spisebord og sofa.
Her er det godt med naturlig lys inn, og utgang til innglasset veranda hvor man kan nyte lange sommerkvelder.
Lyst kjøkken med innredning i vinkel.
Inneholder 2 soverom og bad med opplegg for vaskemaskin.
Bod for lagringsplass.
1 biloppstillingsplass i felles parkeringskjeller.
Tomten er pent opparbeidet med plen og beplantning.
EIendommen har sentral beliggenhet i Gjøvik med gangavstand til alle byens fasiliteter.
Romslig stue som har plass til både spisebord og sofa.
Her er det godt med naturlig lys inn, og utgang til innglasset veranda hvor man kan nyte lange sommerkvelder.
Lyst kjøkken med innredning i vinkel.
Inneholder 2 soverom og bad med opplegg for vaskemaskin.
Bod for lagringsplass.
1 biloppstillingsplass i felles parkeringskjeller.
Tomten er pent opparbeidet med plen og beplantning.
NB: Knappen for å vise hele beskrivelsen har kun en visuell effekt.
NB: Knappen for å vise hele beskrivelsen har kun en visuell effekt.
Salgsoppgaven beskriver vesentlig og lovpålagt informasjon om eiendommen
Se komplett salgsoppgaveNærområdet
Aktiv Gjøvik Land Toten
Prisstatistikk
Strandgata 10
2 002 klikk
på annonsen
42 090 kr
prisantydning per kvadratmeter
Prisfordeling
Pris per m² ligger 910 kr under snittet for leiligheter i Gjøvik.
Grafen viser antall leiligheter solgt i Gjøvik siste året fordelt på pris per m² - totalt 219 leiligheter
Antall boliger
Kvadratmeterpris tilsvarer prisantydning pluss fellesgjeld per kvadratmeter (p-rom eller BRA-i). Prisene i grafen er avrundet til nærmeste 1000 kr.
Annonseinformasjon
| FINN-kode | 391570790 |
|---|---|
| Sist endret | 17. juni 2025 20:07 |
| Referanse | 1209240096 |
Annonsene kan være mangelfulle i forhold til lovpålagt opplysningsplikt. Før bindende avtale inngås oppfordres interessenter til å innhente komplett informasjon fra meglerforetaket, selger eller utleier.

























