Bildegalleri

Peter Hørte Lunde v/ PrivatMegleren Aksept ønsker deg velkommen til General Birchs gate 7A - En utsøkt leilighet med arkitekttegnede løsninger og fantastisk beliggenhet!
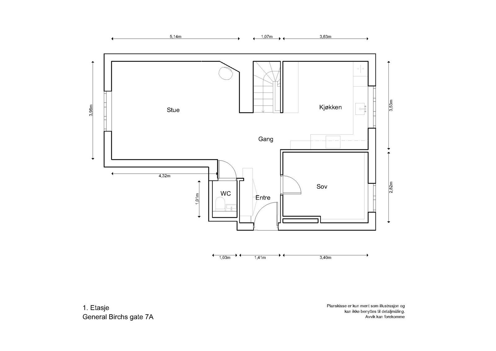
Unik og eksklusiv 4-roms over to plan | Arkitekttegnede løsninger | Vesentlig oppusset | Bad + wc | Idylliske omgivelser
Nøkkelinfo
- Boligtype
- Leilighet
- Eieform
- Andel
- Soverom
- 3
- Internt bruksareal
- 104 m² (BRA-i)
- Bruksareal
- 112 m²
- Eksternt bruksareal
- 8 m² (BRA-e)
- Etasje
- 1
- Byggeår
- 1921
- Energimerking
- G - Rød
- Rom
- 4
- Tomteareal
- 1 131 m²
- Boligselgerforsikring
- Ja
Fasiliteter
Om boligen
Velkommen til General Birchs gate 7A - en utsøkt leilighet med arkitekttegnede løsninger og fantastisk beliggenhet!
Boligen er plassert i populære Lindern Hageby, kjent for sine idylliske og barnevennlige omgivelser. Leiligheten har en fantastisk intern beliggenhet i 1. etasje, med kort vei ut til en grønn bakgård og vakre omgivelser.
Boligen er stor, lys og gjennomgående, med en fantastisk romfølelse. Boligen har blitt vesentlig oppusset siden 2018.
Kvaliteter:
- Høy standard
- Solide materialvalg
- Arkitekttegnede løsninger
- Utmerket beliggenhet
- Barn kan gå "rett ut" i bakgården
- Lys og gjennomgående
- Tre romslige soverom, hovedsoverom med walk-in
- Stort bad med vaskenisje og eget toalettrom
- Separat wc
- Plassbygde løsninger, mye oppbevaring
- Stor bod rett utenfor
- Stor og idyllisk felleshage
- Ingen dokumentavgift
Salgsoppgaven beskriver vesentlig og lovpålagt informasjon om eiendommen
Se komplett salgsoppgaveNyttige lenker
Nærområdet

PrivatMegleren Aksept
Annonseinformasjon
| FINN-kode | 391514410 |
|---|---|
| Sist endret | 14. feb. 2025 16:49 |
| Referanse | 92240602 |
Annonsene kan være mangelfulle i forhold til lovpålagt opplysningsplikt. Før bindende avtale inngås oppfordres interessenter til å innhente komplett informasjon fra meglerforetaket, selger eller utleier.

































