Bildegalleri

Velkommen til Sven Morens veg 11 A!
Sentrum
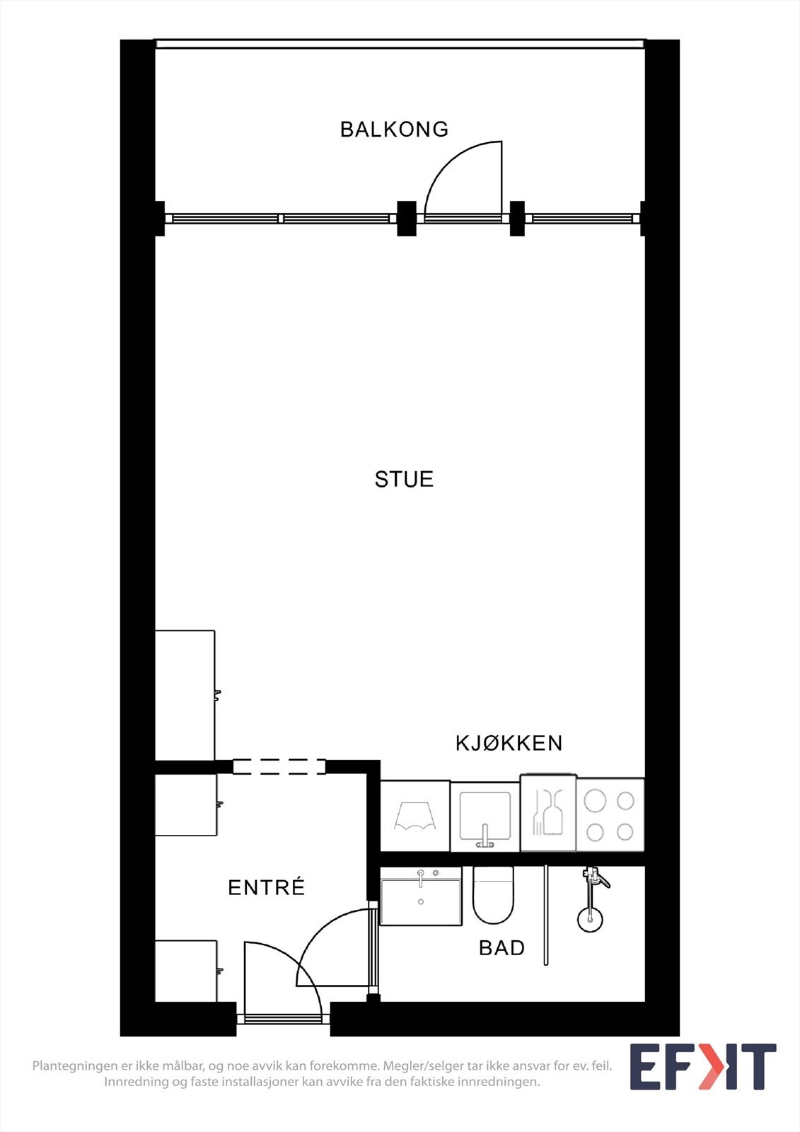
Lys og pen 1-roms leilighet - Sentral beliggenhet - Nytt flott bad - Vestvendt balkong
Prisantydning790 000 kr
Nøkkelinfo
- Boligtype
- Leilighet
- Eieform
- Andel
- Soverom
- 0
- Internt bruksareal
- 28 m² (BRA-i)
- Bruksareal
- 32 m²
- Eksternt bruksareal
- 4 m² (BRA-e)
- Balkong/Terrasse
- 6 m² (TBA)
- Etasje
- 2
- Byggeår
- 1965
- Energimerking
- G - Rød
- Rom
- 1
- Tomteareal
- 2 394 m² (eiet)
Fasiliteter
Balkong/Terrasse
Bredbåndstilknytning
Garasje/P-plass
Kabel-TV
Sentralt
Visning
Ønsker du å delta på visningen ber vi deg melde deg på slik at vi vet at du kommer. Da kan vi bistå alle best mulig og gi deg tiden du trenger på visningen. Visningen avholdes bare dersom det er påmeldte. Ta gjerne kontakt med megler før visning hvis du har noen spørsmål. Velkommen!
VisningspåmeldingOm boligen
Velkommen til Sven Morens veg 11 A!
Lys og pen 1-roms leilighet med god planløsning. Nytt og flott baderom fra høsten 2023. Vestvendt balkong med fine lys- og solforhold.
Alle hvitevarer medfølger. Leiligheten fremstår som innflyttingsklar og står ledig for kjøper.
Sentral beliggenhet rett nord for Elverum sentrum med gangavstand til alle typer forretninger, servicetilbud, offentlig kommunikasjon m.m. Ca 400 m til Amfi kjøpesenter.
Velkommen på visning! Visning som annonsert eller etter avtale med megler Kjetil Jordet, tlf. 95 21 75 83.
Lys og pen 1-roms leilighet med god planløsning. Nytt og flott baderom fra høsten 2023. Vestvendt balkong med fine lys- og solforhold.
Alle hvitevarer medfølger. Leiligheten fremstår som innflyttingsklar og står ledig for kjøper.
Sentral beliggenhet rett nord for Elverum sentrum med gangavstand til alle typer forretninger, servicetilbud, offentlig kommunikasjon m.m. Ca 400 m til Amfi kjøpesenter.
Velkommen på visning! Visning som annonsert eller etter avtale med megler Kjetil Jordet, tlf. 95 21 75 83.
NB: Knappen for å vise hele beskrivelsen har kun en visuell effekt.
NB: Knappen for å vise hele beskrivelsen har kun en visuell effekt.
Salgsoppgaven beskriver vesentlig og lovpålagt informasjon om eiendommen
Se komplett salgsoppgaveNyttige lenker
Nærområdet
EiendomsMegler 1 Elverum
Vi loser deg trygt gjennom hele boligsalget
Annonseinformasjon
| FINN-kode | 391509155 |
|---|---|
| Sist endret | 10. feb. 2026 08:57 |
| Referanse | 6014260026 |
Annonsene kan være mangelfulle i forhold til lovpålagt opplysningsplikt. Før bindende avtale inngås oppfordres interessenter til å innhente komplett informasjon fra meglerforetaket, selger eller utleier.























